We use cookies and other technologies for functionality, security, and to provide you with a personalized experience on our online services. By continuing to use our online services, you agree to our Privacy Policy and Terms of Use. For information on how to adjust your privacy settings, visit our Cookie Policy.
Dismiss
Home AB Greater Edmonton Division No. 11 Edmonton Wild Rose
3772 30 ST NW
Directions Print
3772 30 ST NW $550,000
$550,000
Hide
Favourite

3772 30 ST NW
Edmonton, Alberta T6T1H6

MLS® Number: E4465094
4
Bedrooms
3
Bathrooms
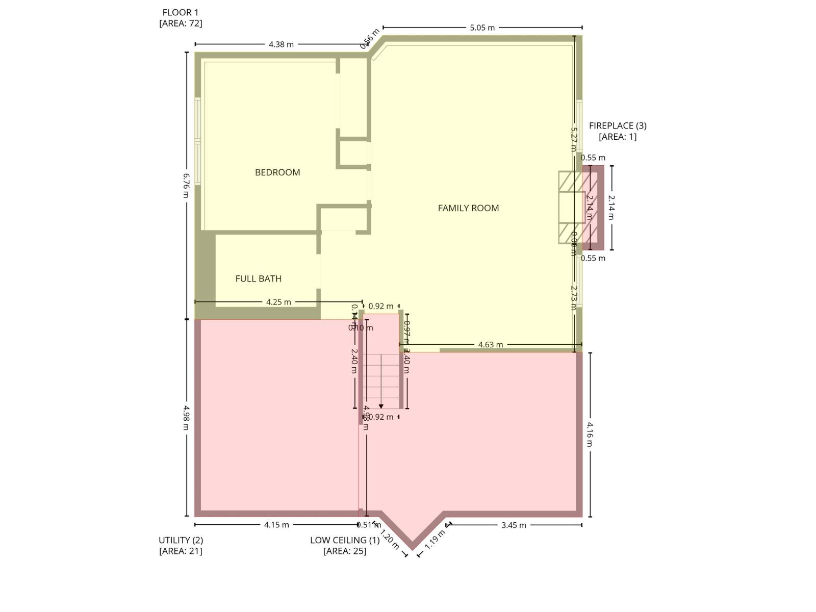
1367
Square Feet

Listing Description

Welcome to your dream family retreat! This well-maintained 3 Bed, 3 Bath, bi-level home offers over 1,360 sq ft of comfortable living space, with inviting outdoor features. Nestled in the desirable Larkspur community, it's an ideal spot for families seeking convenience and natural beauty. A spacious layout of 3 generous bedrooms and 3 full bathrooms, including a primary suite with a private sunroom – your personal oasis for morning coffee or evening relaxation. For entertainment or family fun enjoy the expansive family room designed for gatherings, movie nights, and everyday fun. If that is not enough a beautifully landscaped yard with a large area for BBQs and summer evenings sitting around on the patio furniture and soaking in the sunshine. This well-maintained home features newer appliances, furnace, and hot water tank ensure worry-free living and energy efficiency. Just steps from Meadowbrook Lake or Wild Rose Park for leisurely walks and playground adventures. (33546002)

Property Summary

Property Type
Single Family
Building Type
House
Square Footage
1367 sqft
Neighbourhood Name
Wild Rose
Title
Freehold
Land Size
666.85 m2
Built in
1990
Parking Type
Attached Garage
Time on REALTOR.ca
35 days

Legal Description

Plan :- 8922229 Block :- 39 Lot :- 4

Building

Bathrooms
Total
3
Interior Features
Appliances Included
Dishwasher, Dryer, Garage door opener, Hood Fan, Oven - Built-In, Microwave, Stove, Washer, Refrigerator
Basement Type
Full (Finished)
Building Features
Features
No back lane, Exterior Walls- 2x6", No Animal Home, No Smoking Home
Style
Detached
Architecture Style
Bi-level
Fire Protection
Smoke Detectors
Building Amenities
Vinyl Windows
Structures
Deck
Heating & Cooling
Heating Type
Forced air
Neighbourhood Features
Amenities Nearby
Schools, Shopping
Parking
Parking Type
Attached Garage
Total Parking Spaces
4

Measurements

Square Footage
1367 sqft

Rooms

MetricImperial
Main level
Living room
Dining room
Primary Bedroom
Bedroom 4
Sunroom
Above
Bedroom 2
Basement
Kitchen
Family room
Bedroom 3

Land

Lot Features
Fencing
Fence
Are you interested in touring this listing?
Request a showing

Similar Listings

Dwight L. Hayes