We use cookies and other technologies for functionality, security, and to provide you with a personalized experience on our online services. By continuing to use our online services, you agree to our Privacy Policy and Terms of Use. For information on how to adjust your privacy settings, visit our Cookie Policy.
Dismiss
Home AB Division No. 6 Didsbury
1430 22 Avenue
Directions Print
1430 22 Avenue $319,000
$319,000
Hide
Favourite

1430 22 Avenue
Didsbury, Alberta T0M0W0

MLS® Number: A2269116
3
Bedrooms
3
Bathrooms
1530
Square Feet

Listing Description

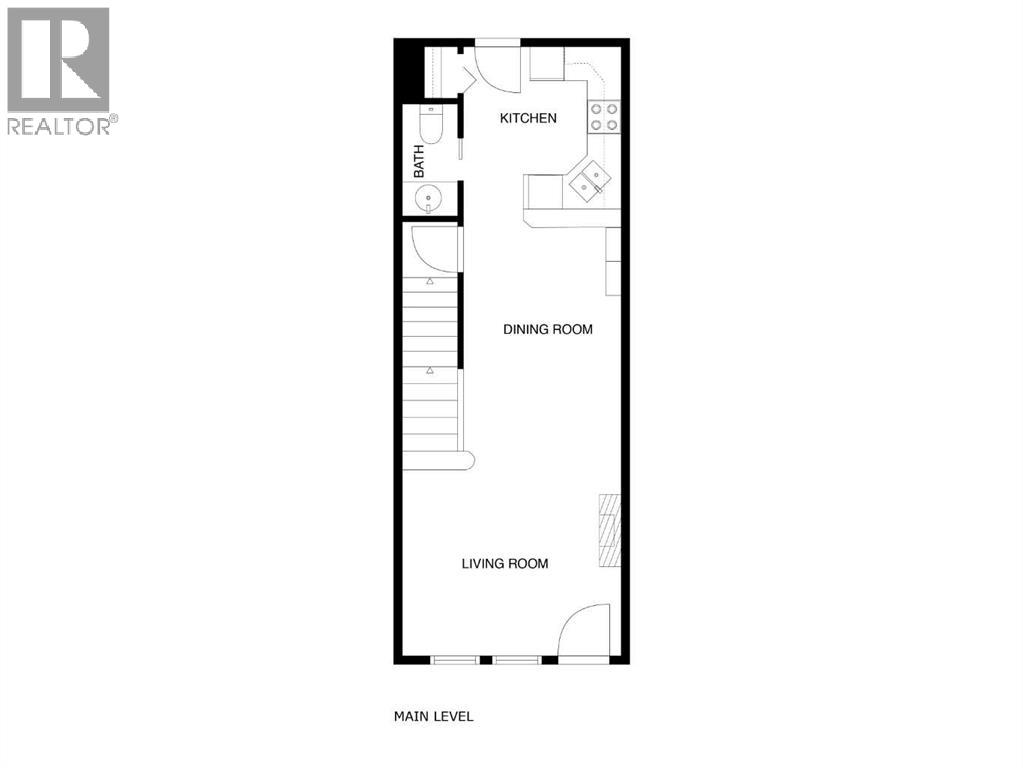
THIS COULD BE YOUR NEXT HOME!! If you are looking for an affordable, modern and ready to move into home in Didsbury check out this townhouse! You will appreciate it is on a quiet street and has an attached single garage. Inside you will find an open floor plan and spacious main and upper levels that will accommodate your family. The main has an open kitchen with nice wood cabinets, tiled backsplash/floors, black appliances and lots of space to create that next meal. There is also a dining area, living room and half bath. Head upstairs and you will find a large primary bedroom with 4 pc ensuite, 2 secondary bedrooms, laundry closet and a full bathroom. The basement is partially finished but has more space that could be used as a gym or a family room. This home has a front porch-a great place to relax, and aggregate sidewalks; you will also appreciate that this home does have great curb appeal. This is a really decent place for a really great price! Call today to book a viewing! (31345465)

Property Summary

Property Type
Single Family
Building Type
Row / Townhouse
Storeys
2
Square Footage
1530 sqft
Title
Freehold
Land Size
2424 sqft|0-4,050 sqft
Built in
2010
Annual Property Taxes
$2,753
Parking Type
Other, Attached Garage (1)
Time on REALTOR.ca
36 days

Building

Bedrooms
Above Grade
3
Bathrooms
Total
3
Partial
1
Interior Features
Appliances Included
Washer, Refrigerator, Dishwasher, Stove, Dryer
Flooring
Carpeted, Hardwood, Tile
Basement Type
Full (Partially finished)
Building Features
Features
Back lane
Foundation Type
Poured Concrete
Style
Attached
Construction Material
Wood frame
Heating & Cooling
Cooling
None
Heating Type
Forced air, (Natural gas)
Exterior Features
Exterior Finish
Vinyl siding
Neighbourhood Features
Community Features
Golf Course Development
Amenities Nearby
Golf Course, Park, Playground, Recreation Nearby, Schools, Shopping
Parking
Parking Type
Other, Attached Garage (1)
Total Parking Spaces
2

Measurements

Square Footage
1530 sqft
Total Finished Area
1530 sqft

Rooms

MetricImperial
Main level
Living room
Dining room
Kitchen
2pc Bathroom
Upper Level
Primary Bedroom
4pc Bathroom
4pc Bathroom
Laundry room
Bedroom
Bedroom

Land

Lot Features
Fencing
Fence
Frontage
6.45 m
Land Depth
36.58 m
Other Property Information
Zoning Description
R-2
Data provided by: Pillar 9™
Are you interested in touring this listing?
Request a showing

Similar Listings

Cindy Tippe