We use cookies and other technologies for functionality, security, and to provide you with a personalized experience on our online services. By continuing to use our online services, you agree to our Privacy Policy and Terms of Use. For information on how to adjust your privacy settings, visit our Cookie Policy.
Dismiss
Home ON Greater Toronto Area Toronto Scarborough Clairlea-Birchmount
373A DANFORTH ROAD
Directions Print
373A DANFORTH ROAD $1,850,800
$1,850,800
Hide
Favourite

373A DANFORTH ROAD
Toronto (Clairlea-Birchmount), Ontario M1L3X8

MLS® Number: E12496206

Listing Description

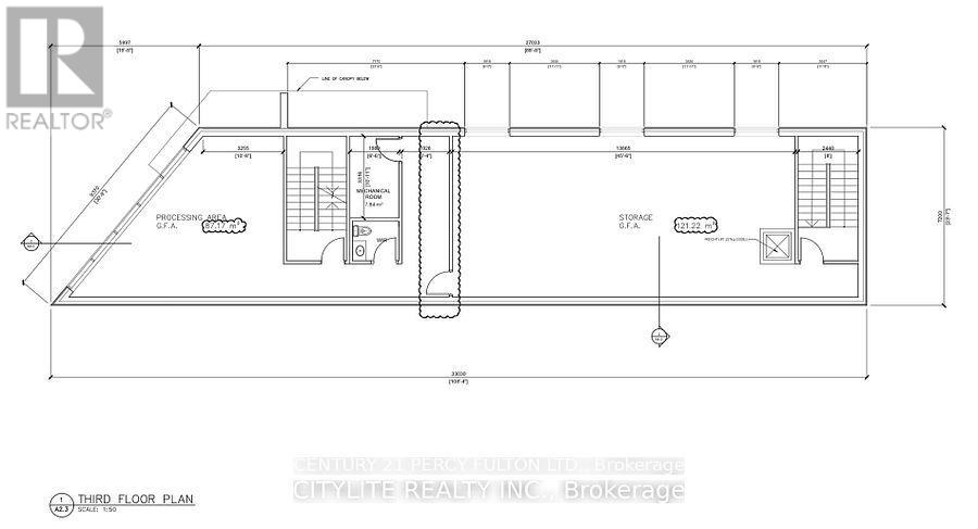
Location! Location!! Opportunity To Buy An Investment Property For Multiple Use. One Of The BestLocation In Toronto With Potential Of Land Development Or Establishing Your Own Business. Threestory building permit in process. Design is attached. Don't miss it. (41549719)

Location Description

Danforth Rd. and Birchmount Rd

Property Summary

Property Type
Vacant Land
Community Name
Clairlea-Birchmount
Land Size
149.57 x 168.37 FT ; Irregular
Annual Property Taxes
$9,810.47
Time on REALTOR.ca
120 days

Building

Heating & Cooling
Cooling
None
Heating Type
No heat

Measurements

Square Footage
11761 sqft

Land

Lot Features
Frontage
149 ft ,6 in
Land Depth
168 ft ,4 in
Other Property Information
Zoning Description
Vacant Industrial Commercial Land
Are you interested in touring this listing?
Request a showing

Similar Listings

A. AZIM DEWAN