We use cookies and other technologies for functionality, security, and to provide you with a personalized experience on our online services. By continuing to use our online services, you agree to our Privacy Policy and Terms of Use. For information on how to adjust your privacy settings, visit our Cookie Policy.
Dismiss
Home ON Greater Hamilton Niagara Region Grimsby Grimsby Mountain
55 RIDGE ROAD E
Directions Print
55 RIDGE ROAD E $449,000
Price Change on 11/25/2025
$449,000
-$50,000
$499,000
Hide
Favourite

55 RIDGE ROAD E
Grimsby (Grimsby Escarpment), Ontario L3M4E7

MLS® Number: X12495144
0
Bathrooms
-
Square Feet

Listing Description

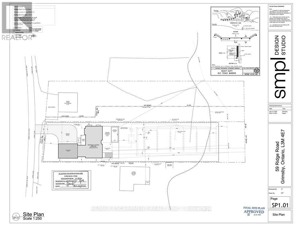
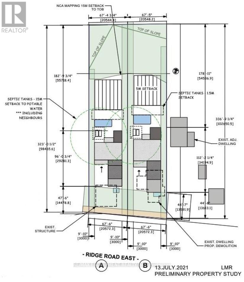
Welcome to 55 Ridge Road East, Grimsby - a rare and remarkable opportunity to build your dream home on a breathtaking lot perched on the sought-after Ridge Road, overlooking the Niagara Escarpment. Through the forest take in the serene views of Lake Ontario, CN Tower, Toronto skyline, and downtown Grimsby. The Seller is motivated. On the adjacent property the NEC has granted a permit for a custom 3,600+ sq ft modern home. That site plan provides room for a pool and an area to create a backyard oasis. The same could be done on this property. The lot backs onto mature trees and the Bruce Trail, with no front or rear neighbours - offering total privacy and serenity just minutes from the downtown core. Hydro, natural gas, and cable are at the road. This is a builder's or end-user's dream-perfect for those looking to create a one-of-a-kind residence on the ridge in one of Grimsby's most coveted locations. Whether you're an investor, developer, or someone ready to build a forever home surrounded by nature, this offering delivers unmatched value. Enjoy country-like living just minutes from the QEW, future Grimsby GO Station, schools, marinas, vineyards, shops, and the hospital. With sweeping views this is an extraordinary opportunity not to be missed. (41547699)

Location Description

Cross Streets: Mountain St & Ridge Rd E. ** Directions: QEW Exit Christie St, head South Mountain St turn East on Ridge Rd E.

Property Summary

Property Type
Vacant Land
Community Name
055 - Grimsby Escarpment
Land Size
67.6 x 319.59 FT|under 1/2 acre
Annual Property Taxes
$4,379
Time on REALTOR.ca
42 days

Building

Bathrooms
Total
0
Building Features
Features
Flat site, Conservation/green belt
Utilities
Utility Type
Cable (Available), Electricity (Available)
Neighbourhood Features
Amenities Nearby
Beach, Hospital, Marina, Place of Worship

Land

Lot Features
Frontage
67 ft ,7 in
Land Depth
319 ft ,7 in
Other Property Information
Zoning Description
NEC
Are you interested in touring this listing?
Request a showing

Similar Listings

DAVID BOERSMA