We use cookies and other technologies for functionality, security, and to provide you with a personalized experience on our online services. By continuing to use our online services, you agree to our Privacy Policy and Terms of Use. For information on how to adjust your privacy settings, visit our Cookie Policy.
Dismiss
Home QC Greater Rimouski Rimouski-Neigette Rimouski Rimouski-Est
153 Rue Égide-Jean
Directions Print
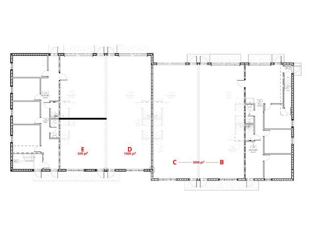
153 Rue Égide-Jean + GST + QST $18.50/Yearly/square feet
+ GST + QST $18/Yearly/square feet
Hide
Favourite

153 Rue Égide-Jean
Rimouski, Quebec G5M0G3

MLS® Number: 28946813

Listing Description

Jusqu'à 3 grands espaces disponibles en location dans un bâtiment de 2 étages présentement en construction et prêt pour janvier 2026. Superficie de 500 pi² à 2000 pi². Usage des lieux industriel ou commercial. GST/QST must be added to the asking price (57997660)

Property Summary

Property Type
Retail
Building Type
Retail
Storeys
2
Neighbourhood Name
Rimouski-Est
Land Size
3715 m2
Built in
2025
Time on REALTOR.ca
52 days

Building

Building Features
Style
Detached
Total Units
3
Heating & Cooling
Heating Type
(Electric)
Utilities
Utility Sewer
Municipal sewage system
Water
Municipal water
Business
Loading Doors
2
Neighbourhood Features
Amenities Nearby
Highway, Public Transit

Land

Other Property Information
Zoning Type
Mixed
Farm Features
Farm Type
Other
Are you interested in touring this listing?
Request a showing

Simon Bélanger