We use cookies and other technologies for functionality, security, and to provide you with a personalized experience on our online services. By continuing to use our online services, you agree to our Privacy Policy and Terms of Use. For information on how to adjust your privacy settings, visit our Cookie Policy.
Dismiss
Home AB Division No. 7 Castor
5006 52 Street
Directions Print
5006 52 Street $189,900
$189,900
Hide
Favourite

5006 52 Street
Castor, Alberta T0C0X0

MLS® Number: A2267094
2
Bedrooms
2
Bathrooms
1094
Square Feet

Listing Description

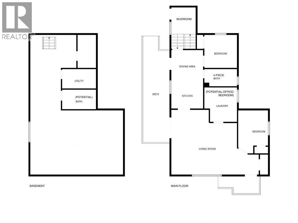
Situated on a generous 125’ x 115’ lot, this property offers excellent potential for those seeking comfortable small-town living with room to grow. Enjoy the convenience of main-floor living, complete with a laundry room on the same level which could easily be converted into a third bedroom if desired. The bright, eat-in kitchen provides access to a deck, perfect for morning coffee or quiet relaxation. A large living room also opens onto the same deck through sliding doors, making indoor-outdoor living a breeze. The main floor includes a 4-piece bathroom, while the basement features the start of a second bathroom (toilet already installed) and offers unfinished space ready for your finishing ideas. With the potential for a separate basement entry, this home could be configured for additional living options. A heated 2-car detached garage with a concrete floor provides excellent space for parking, storage, or hobbies with plenty of room for your tools and toys. Located within walking distance to the school and downtown Castor, this property blends practicality, space, and potential in one great package. (31309496)

Property Summary

Property Type
Single Family
Building Type
House
Storeys
1
Square Footage
1094 sqft
Title
Freehold
Land Size
14375 sqft|10,890 - 21,799 sqft (1/4 - 1/2 ac)
Built in
1957
Annual Property Taxes
$2,290.25
Parking Type
Detached Garage (2), Garage, Heated Garage
Time on REALTOR.ca
122 days

Building

Bedrooms
Above Grade
2
Bathrooms
Total
2
Partial
1
Interior Features
Appliances Included
Refrigerator, Stove, Washer & Dryer
Flooring
Concrete, Laminate, Vinyl Plank
Basement Type
Full (Unfinished)
Building Features
Features
Back lane, No Smoking Home
Foundation Type
Poured Concrete
Style
Detached
Architecture Style
Bungalow
Structures
Deck
Heating & Cooling
Cooling
None
Heating Type
Forced air
Exterior Features
Exterior Finish
Vinyl siding, Wood siding
Neighbourhood Features
Community Features
Golf Course Development, Lake Privileges
Amenities Nearby
Airport, Golf Course, Park, Playground, Recreation Nearby, Schools, Shopping, Water Nearby
Parking
Parking Type
Detached Garage (2), Garage, Heated Garage
Total Parking Spaces
5

Measurements

Square Footage
1094 sqft
Total Finished Area
1094 sqft

Rooms

MetricImperial
Main level
4pc Bathroom
Other
Eat in kitchen
Bedroom
Laundry room
Living room
Bedroom
Basement
1pc Bathroom

Land

Lot Features
Fencing
Not fenced
Frontage
38.1 m
Land Depth
35.05 m
Other Property Information
Zoning Description
R1
Data provided by: Pillar 9™
Are you interested in touring this listing?
Request a showing

Similar Listings

Annelie Breugem