We use cookies and other technologies for functionality, security, and to provide you with a personalized experience on our online services. By continuing to use our online services, you agree to our Privacy Policy and Terms of Use. For information on how to adjust your privacy settings, visit our Cookie Policy.
Dismiss
Home ON Greater Toronto Area Peel Region Mississauga Streetsville
317 QUEEN STREET S
Directions Print
317 QUEEN STREET S $1,400,000
$1,400,000
Hide
Favourite

317 QUEEN STREET S
Mississauga (Streetsville), Ontario L5M1M3

MLS® Number: W12485239

Listing Description

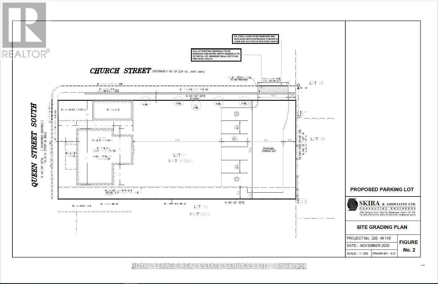
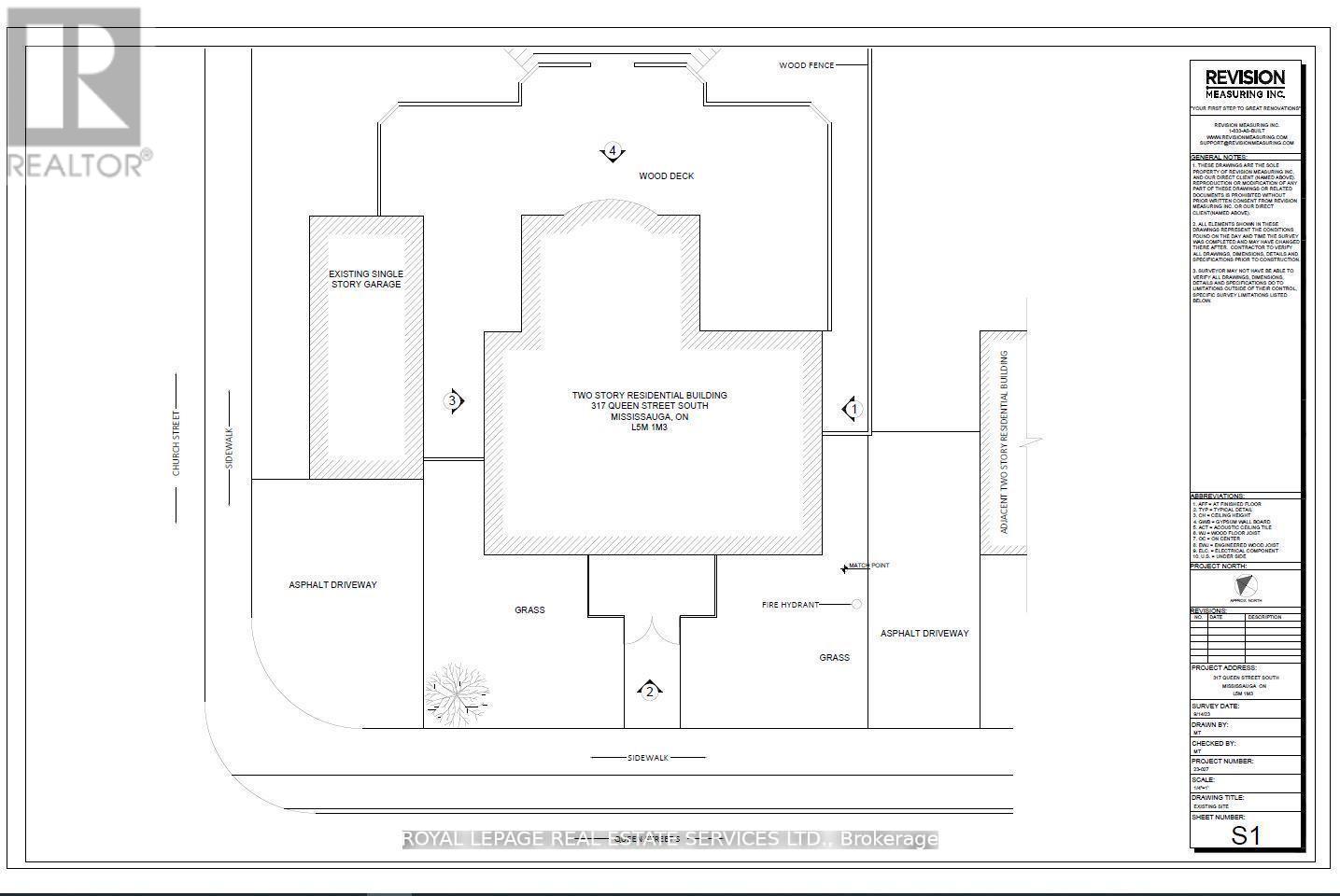
Great Opportunity for Investment/Live/Work Property Located at the Corner of Queens St S & Church St in Famous Destination Olde Village of Streetsville. Residence with Commercial Unit, Zoning R3 with Permit Issued on 2002-09-05 for Private Office within Single Family Dwelling (No Employees) Described as Commercial Office - Single User. Classic Georgian Centre Hall Style - Known as the McKeith Home Built in 1852 and it is Designated Under the Terms of the Ontario Heritage Act as Part of the Streetsville Heritage Conservation District, Refer to Heritage Impact Assessment on File. Potential to Convert Entire Home to Commercial Office Space, Proposed Sketch for Additional Parking is on File. See Sketch of Former Kitchen, Now a Blank Slate for Your Dream Kitchen. Newly Renovated Interior, Generous Size Principal Rooms, 2218 sq ft of Living Space. Was Used as a Chiropractor Clinic, Great Street Exposure. Backs onto Green Space and the Credit River Ravine, Gentle Slope with Panoramic View. Newly Renovated Interior, Carpet Free. Updated Furnace & Owned Hot Water Tank in 2017. Washer & Dryer. New Gas Fireplace in Living Room. Attachments: Survey, Pre-Listing Inspection Report, Heritage Impact Assessment Report, Letter from Streetsville Heritage Conservation with FAQ for Future Potential, 2024 Tax Bill, Letter from Credit Valley Conseration Authority, Floor Plan Garden Suite (Independent Building) or Addition to the Main Building with Number of Additional Parking in the Back Yard Would be Possible. Also 100% Commercial Use Would be Possible upon City's Approval. (41524208)

Location Description

Mississauga Road (Queen St S) & Church

Property Summary

Property Type
Office
Building Type
Offices
Community Name
Streetsville
Land Size
63 x 154 FT
Age Of Building
100+ years
Annual Property Taxes
$7,314.47
Total Parking Spaces
2
Time on REALTOR.ca
48 days

Building

Building Features
Features
Conservation/green belt
Heating & Cooling
Cooling
Fully air conditioned
Heating Type
Forced air (Natural gas)
Utilities
Utility Sewer
Sanitary sewer
Water
Municipal water
Business
Business Type
Other (Professional office(s))
Neighbourhood Features
Amenities Nearby
Public Transit
Parking
Total Parking Spaces
2

Measurements

Square Footage
2238 sqft

Land

Lot Features
Frontage
63 ft
Land Depth
154 ft
Other Property Information
Zoning Description
R3 Current use: Commercial and Residential Mixed
Are you interested in touring this listing?
Request a showing

416-407-7353
416-407-7353
REALTOR® Website
MANUEL CHOI