We use cookies and other technologies for functionality, security, and to provide you with a personalized experience on our online services. By continuing to use our online services, you agree to our Privacy Policy and Terms of Use. For information on how to adjust your privacy settings, visit our Cookie Policy.
Dismiss
Home ON Greater Toronto Area York Region Markham Vinegar Hill
52B NELSON STREET
Directions Print
52B NELSON STREET $3,500,000
$3,500,000
Hide
Favourite

52B NELSON STREET
Markham (Vinegar Hill), Ontario L3P3K1

MLS® Number: N12482729
0
Bathrooms
-
Square Feet

Listing Description

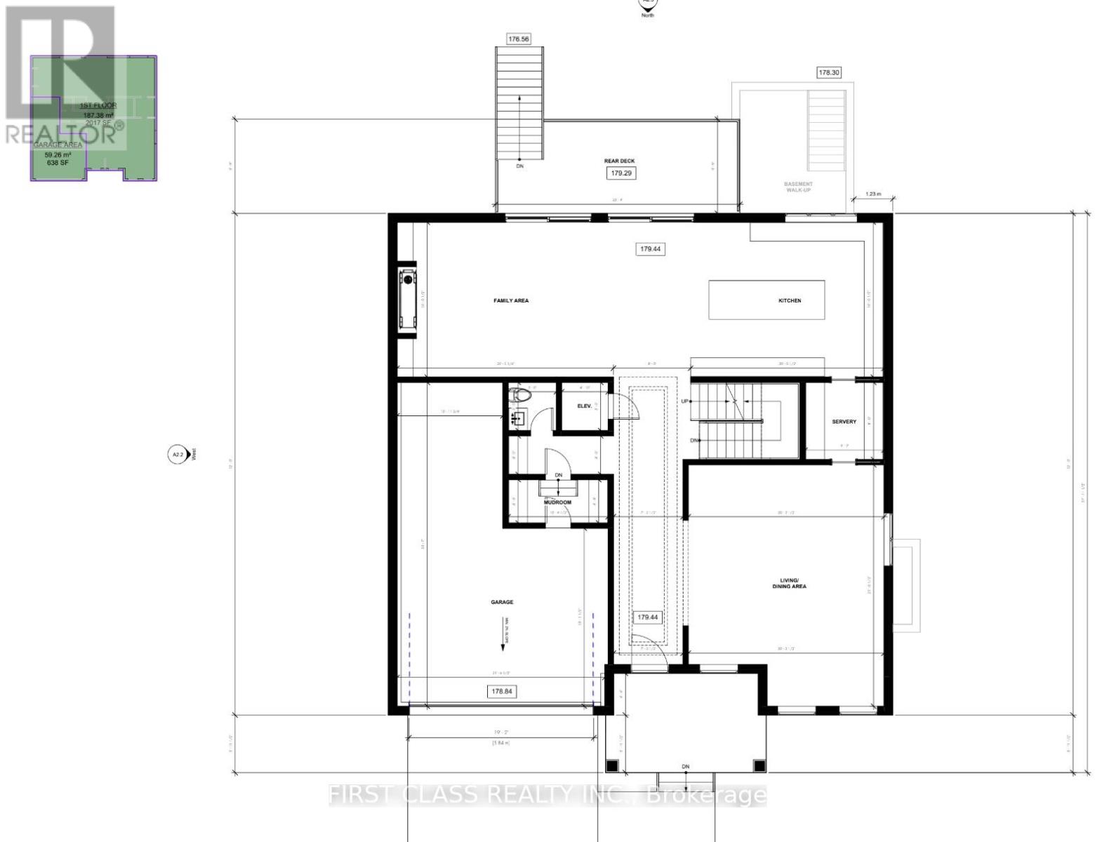
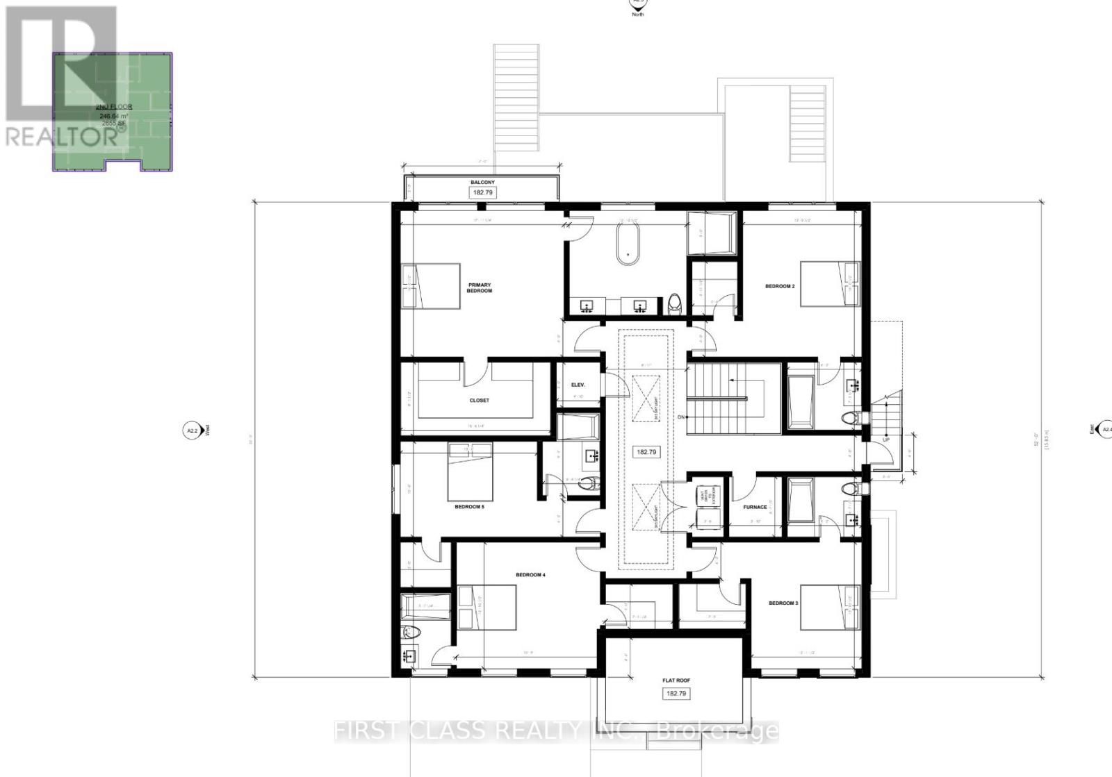
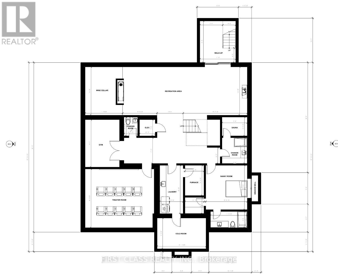
Ravine Lot in Markham - Rarely Approved Rooftop Terrace on Your Dream Home. Rarely approved custom build detached house with rooftop terraceSteps to Rouge Valley & Milne Dam parks1.7 km to GO Station, fast highway access 66 x 435 ft deep lot backing onto the Rouge RiverClose to CF Markville, Markham Village, and top schoolPurchase the land and manage your own build, or secure a fully custom-built home with only 5% down. (41516393)

Location Description

Cross Streets: Markham Rd/Hwy 7/Hwy 407. ** Directions: Rouge St / Markham Rd.

Property Summary

Property Type
Vacant Land
Community Name
Vinegar Hill
Land Size
66 x 437 FT|1/2 - 1.99 acres
Annual Property Taxes
$8,718
Time on REALTOR.ca
124 days

Building

Bathrooms
Total
0
Utilities
Utility Type
Cable (Installed), Electricity (Installed), Sewer (Installed)

Land

Lot Features
Frontage
66 ft
Land Depth
437 ft
Are you interested in touring this listing?
Request a showing

Similar Listings

SHAN FENG