We use cookies and other technologies for functionality, security, and to provide you with a personalized experience on our online services. By continuing to use our online services, you agree to our Privacy Policy and Terms of Use. For information on how to adjust your privacy settings, visit our Cookie Policy.
Dismiss
Home ON Greater Toronto Area York Region Markham Catchet
108 & 109 - 197 CACHET WOODS COURT
Directions Print
108 & 109 - 197 CACHET WOODS COURT $25/square feet
$25/square feet
Hide
Favourite

108 & 109 - 197 CACHET WOODS COURT
Markham (Cachet), Ontario L6C0Z8

MLS® Number: N12478906

Listing Description

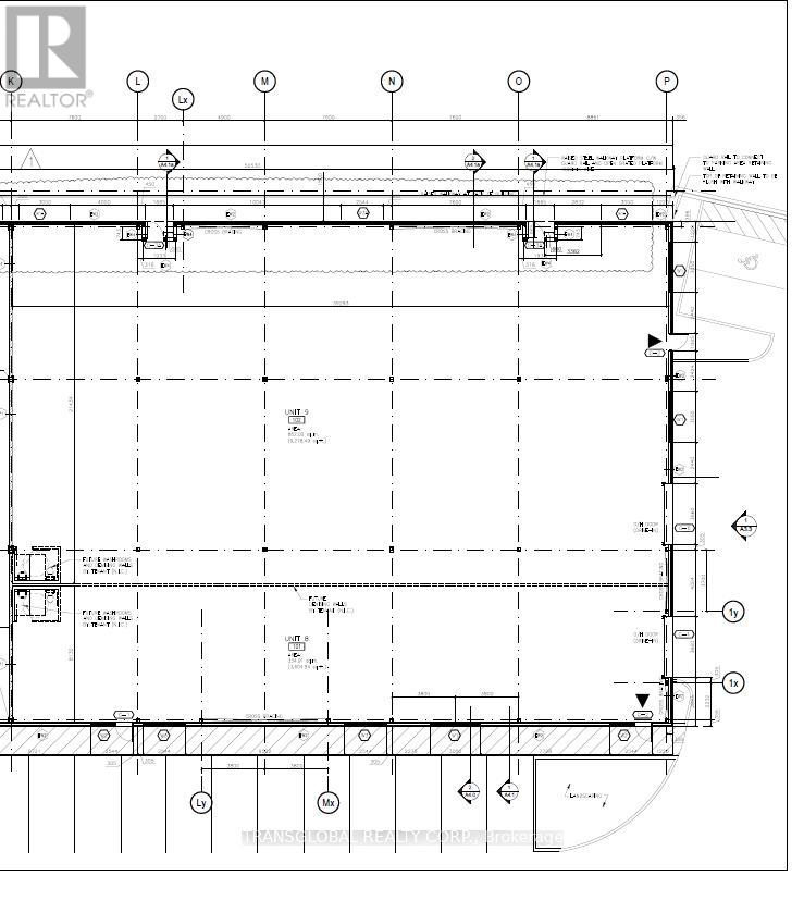
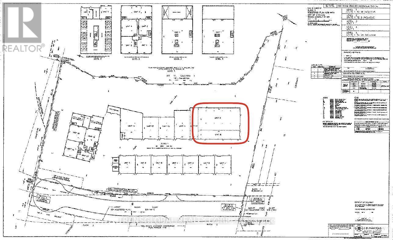
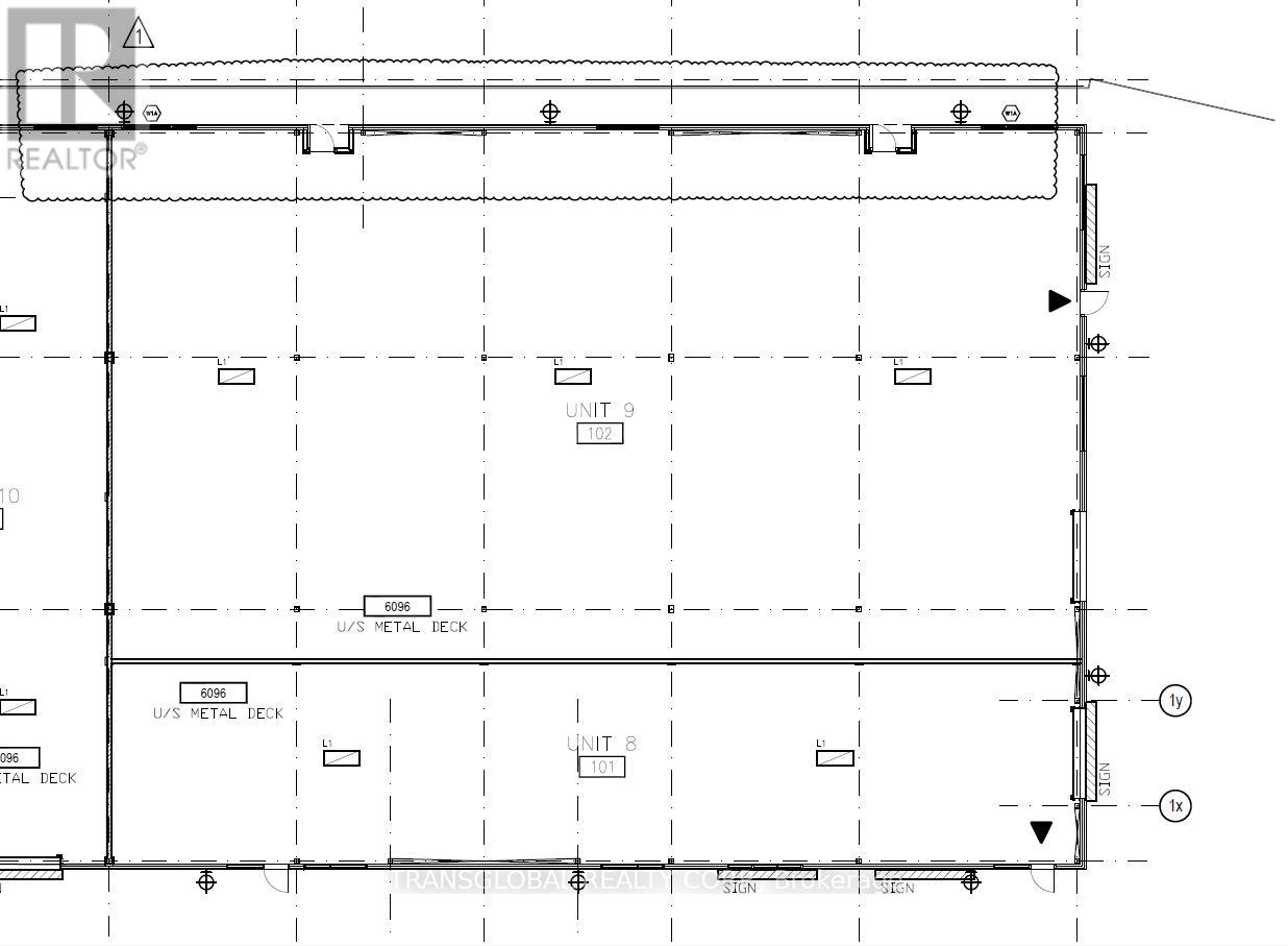
Excellent Location! Central Markham! Salford Business Campus! Cachet WOODS Court! Close to highways 404 and Woodbine Ave, highway 407. Beautiful surroundings with greenbelt and Rouge River. Rare opportunity to lease Brand new Industrial unit of 12,883.50 SqFt With Very High ceiling (height 22.5'). Two drive-in doors 12'x 12'. Space can be divided into two separate smaller units of 9,278.50 Sqft and 3,605 SqFt. (41504633)

Location Description

Cross Streets: 16th Ave and Woodbine Ave. ** Directions: 16th Ave and Cachet Woods Crt/ East of HWY 404.

Property Summary

Property Type
Industrial
Building Type
Warehouse
Community Name
Cachet
Age Of Building
New building
Annual Property Taxes
$0
Time on REALTOR.ca
58 days

Building

Building Features
Features
Conservation/green belt
Heating & Cooling
Cooling
None
Heating Type
Radiant heat
Utilities
Water
Municipal water
Business
Business Type
Industrial (Warehouse)
Neighbourhood Features
Amenities Nearby
Highway

Measurements

Square Footage
12884 sqft

Land

Other Property Information
Zoning Description
Employment - Business Park
Lease Type
Net
Are you interested in touring this listing?
Request a showing

JULIA TOPALA