We use cookies and other technologies for functionality, security, and to provide you with a personalized experience on our online services. By continuing to use our online services, you agree to our Privacy Policy and Terms of Use. For information on how to adjust your privacy settings, visit our Cookie Policy.
Dismiss
Home ON Greater Toronto Area Toronto Old Toronto South Hill Casa Loma
493 DAVENPORT ROAD
Directions Print
493 DAVENPORT ROAD $3,950/Monthly
$3,950/Monthly
Hide
Favourite

493 DAVENPORT ROAD
Toronto (Casa Loma), Ontario M4V1B7

MLS® Number: C12474533

Listing Description

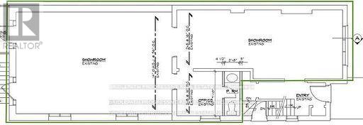
Office/Professional/Showroom/Workshop space in a unique standalone building located in the heart of Casa Loma / South Hill area, with 3 car parking. Superb Access Auto/Foot/Transit and excellent proximity to Yorkville/Bloor/St. Clair areas. Full ground floor level of mixed-use Building on Davenport. Natural light from Large Windows & Doors. Hardwood throughout, Open Ceiling, and Spacious Rear with Back Doors. The Rear Outdoor area could be a sitting area. Current use is a condo sales office. Zoning permits uses that are Office/Showroom/Workshop. List is Net Rent Portion/ Month. Realty Taxes, Insurance & Maintenance extra. (41490452)

Location Description

Davenport/Dupont/Spadina

Property Summary

Property Type
Retail
Community Name
Casa Loma
Annual Property Taxes
$15,783.24
Total Parking Spaces
3
Time on REALTOR.ca
60 days

Building

Heating & Cooling
Cooling
Fully air conditioned
Heating Type
Forced air (Natural gas)
Utilities
Water
Municipal water
Business
Business Type
Service (Miscellaneous services)
Parking
Total Parking Spaces
3

Measurements

Square Footage
1100 sqft
Exterior Building Size
1100 sqft

Land

Other Property Information
Zoning Description
Commercial Residential- CR
Lease Type
Net
Are you interested in touring this listing?
Request a showing

CAMERON CHRISTOPHER AZIZ