We use cookies and other technologies for functionality, security, and to provide you with a personalized experience on our online services. By continuing to use our online services, you agree to our Privacy Policy and Terms of Use. For information on how to adjust your privacy settings, visit our Cookie Policy.
Dismiss
Home AB Greater Lethbridge Division No. 2 Lethbridge Sherring Industrial Park
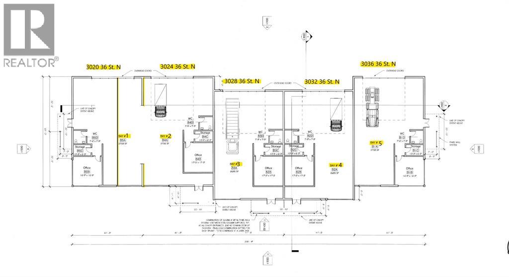
3036 36 Street N
Directions Print
3036 36 Street N $10.50/Yearly/square feet
$10/Yearly/square feet
Hide
Favourite

3036 36 Street N
Lethbridge, Alberta T1H7B5

MLS® Number: A2265919

Listing Description

The subject property is part of a desirable development and offers an energy-efficient design, a paved yard and driveway, with great visibility. The unit features a large open shop space in the rear with 20’ ceiling height, one 14’x16’ OHD, and a make-up air unit. Located at the intersection of 36 Street and 32 Avenue North, the property is surrounded by successful businesses and anchored by Wal-Mart and the Lethbridge Sports Park. With easy corner access, the property is a great fit for warehousing, general trades, light manufacturing, and other light industrial users. The location offers convenient and easy access for large vehicles with an exceptional highway infrastructure corridor.- 3-Phase, 200 AMP electrical- 20’ clear span ceilings- One 14’x16’ OHD- Energy efficient design- Desirable location (31279462)

Property Summary

Property Type
Industrial
Community Name
Sherring Industrial Park
Subdivision Name
Sherring Industrial Park
Title
Freehold
Land Size
1.13 ac|1 - 1.99 acres
Built in
2014
Annual Property Taxes
$47,136
Time on REALTOR.ca
60 days

Building

Interior Features
Ceiling Height
240 in
Business
Loading Doors
1

Measurements

Square Footage
2900 sqft
Total Finished Area
2900 sqft
Exterior Building Size
2900 sqft

Land

Other Property Information
Zoning Description
I-B
Lease Type
Triple Net
Data provided by: Pillar 9™
Are you interested in touring this listing?
Request a showing

DOUG MERESKA