We use cookies and other technologies for functionality, security, and to provide you with a personalized experience on our online services. By continuing to use our online services, you agree to our Privacy Policy and Terms of Use. For information on how to adjust your privacy settings, visit our Cookie Policy.
Dismiss
Home ON St. Catharines - Niagara Niagara Region St. Catharines Port Dalhousie
14 LAKEPORT ROAD
Directions Print
14 LAKEPORT ROAD $1,600,000
$1,600,000
Hide
Favourite

14 LAKEPORT ROAD
St. Catharines (Port Dalhousie), Ontario L2N4P5

MLS® Number: X12472975

Listing Description

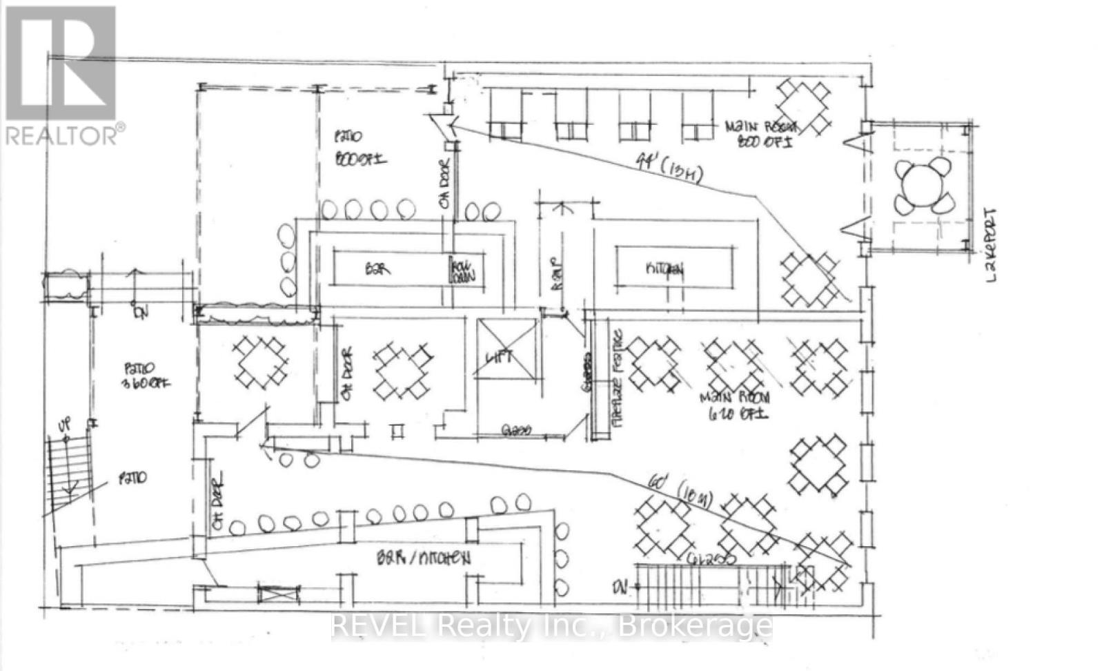
Exceptional investment opportunity in the heart of historic Port Dalhousie. This landmark brick building, said to be one of the oldest storefronts in Ontario, stands prominently on bustling Lakeport Road. With rare street access on all sides and at both levels, offering unmatched exposure and flexibility, plus exceptional water & harbour views. The current 2-storey setup provides the opportunity for potentially 4 or even 5 separate units plus outdoor patios. Perfect for restaurants, retail, boutique shops, or an inspiring mixed-use commercial/residential conversion, the property combines heritage charm with endless potential. Positioned within the city's Port Dalhousie Commercial Core and Harbour Area Secondary Plan, this address sits at the centre of the area's revitalization, surrounded by multi-million-dollar residential and mixed-use developments that are transforming the waterfront into one of Niagara's most vibrant lifestyle destinations. With major private investment, increased density, and improved public realm initiatives already underway, the growth trajectory here is undeniable. Port Dalhousie's walkable waterfront, boutique atmosphere, vibrant active group of engaged residents, and year-round tourism make it a magnet for locals and visitors alike. As residential projects rise nearby, so does demand for quality dining, retail, and live-work spaces, placing this property in the perfect position to capitalize on both steady local traffic and booming seasonal activity. Offering flexibility for future intensification, multi-tenancy, or redevelopment, this character-filled building represents a truly rare chance to own a cornerstone property in one of the region's fastest-evolving commercial corridors. 14 Lakeport Road is more than real estate; it's a front-row investment into the future of Port Dalhousie, and an unmatched opportunity for the savvy investor/entrepreneur with vision to create something profound that is undoubtedly a legacy-defining opportunity. (41485794)

Location Description

Cross Streets: Lakeport Road & Lock Street. ** Directions: Lock & Lakeport.

Property Summary

Property Type
Retail
Community Name
438 - Port Dalhousie
Land Size
Bldg=58 x 72 FT
Annual Property Taxes
$0
Time on REALTOR.ca
55 days

Building

Heating & Cooling
Cooling
None
Heating Type
No heat
Utilities
Water
Municipal water
Neighbourhood Features
Amenities Nearby
Public Transit, Recreation

Measurements

Square Footage
5500 sqft
Exterior Building Size
5500 sqft

Land

Lot Features
Frontage
58 ft
Land Depth
72 ft
Other Property Information
Zoning Description
C2
Are you interested in touring this listing?
Request a showing

Raiana Schwenker