We use cookies and other technologies for functionality, security, and to provide you with a personalized experience on our online services. By continuing to use our online services, you agree to our Privacy Policy and Terms of Use. For information on how to adjust your privacy settings, visit our Cookie Policy.
Dismiss
Home MB Greater Winnipeg Division No. 10 Macdonald
38 SOUTH LANDING Drive
Directions Print
38 SOUTH LANDING Drive $24.50/square feet
$24/square feet
Hide
Favourite

38 SOUTH LANDING Drive
Macdonald Rm, Manitoba R4G0C4

MLS® Number: 202526836
0
Bathrooms
-
Square Feet

Listing Description

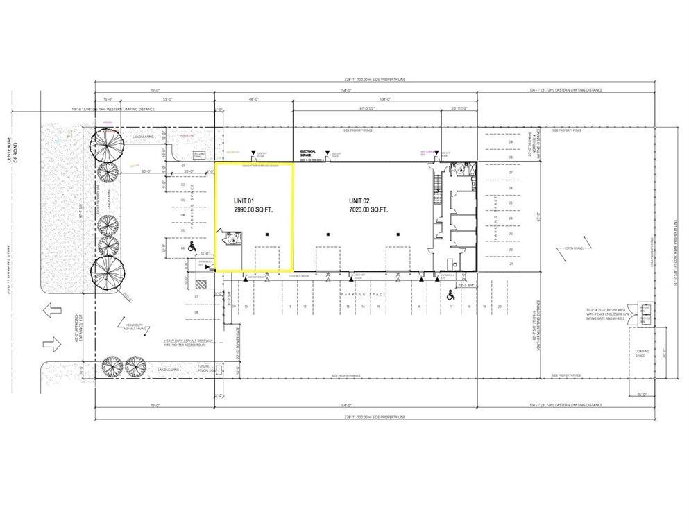
R08//Macdonald Rm/Welcome to 38 South Landing Drive Business Park, Located within the RM of MacDonald. The area benefits from low property taxes and no business tax. The building will feature a 2,990 SF unit with 20 clear ceiling heights, equipped with one 14X14 grade-level overhead door, Electrical power to the unit has two panels, one rated at 100A 347/600V and another rated at 200A 120/208V; both 3-phase, a washroom, and office space, Floor drains in the warehouse, Security cameras on the exterior of the building, and Fenced compound space also available. This unit is clean, functional, and move-in ready perfect for light industrial, manufacturing, or warehousing operations at a strategic and prime location and excellent access to major transportation routes. Pylon signage & ample parking are available. Net Rent $17.00+Additional Rent*(est) $7.50 (231532697)

Property Summary

Property Type
Industrial
Building Type
Commercial Mix
Community Name
RM of MacDonald
Neighbourhood Name
RM of MacDonald
Title
Leasehold
Land Size
48351 sqft
Built in
2025
Parking Type
Surfaced
Time on REALTOR.ca
59 days

Building

Bathrooms
Total
0
Building Features
Total Units
2
Heating & Cooling
Heating Type
Electric baseboard units
Parking
Parking Type
Surfaced
Are you interested in touring this listing?
Request a showing

Behnam Soltani Alasvand