We use cookies and other technologies for functionality, security, and to provide you with a personalized experience on our online services. By continuing to use our online services, you agree to our Privacy Policy and Terms of Use. For information on how to adjust your privacy settings, visit our Cookie Policy.
Dismiss
Home MB Division No. 13 Selkirk
541 Vaughan Avenue
Directions Print
541 Vaughan Avenue $519,900
$519,900
Hide
Favourite

541 Vaughan Avenue
Selkirk, Manitoba R1A0T2

MLS® Number: 202526791
0
Bathrooms
-
Square Feet

Listing Description

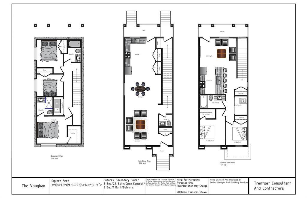
R14//Selkirk/To Be Build - Introducing two story house with approximately 2235 SF include fully finished basement. This investment property will build two suits with two separate entrance as shown in plan. This house will be build with 5 bedrooms, 3.5 washrooms , 2 kitchens, laundries and more. Any questions please feel free to contact LA. (231530906)

Property Summary

Property Type
Vacant Land
Building Type
No Building
Storeys
2
Community Name
R14
Neighbourhood Name
R14
Title
Freehold
Land Size
Unknown
Built in
2026
Annual Property Taxes
$0
Time on REALTOR.ca
113 days

Building

Bathrooms
Total
0
Partial
0
Are you interested in touring this listing?
Request a showing

204-671-2000
204-261-1488

Similar Listings

Navtar Brar