We use cookies and other technologies for functionality, security, and to provide you with a personalized experience on our online services. By continuing to use our online services, you agree to our Privacy Policy and Terms of Use. For information on how to adjust your privacy settings, visit our Cookie Policy.
Dismiss
Home ON Ottawa - Gatineau United Counties of Prescott and Russell Clarence-Rockland
4 - 3748 CHAMPLAIN STREET
Directions Print
4 - 3748 CHAMPLAIN STREET $399,900
$399,900
Hide
Favourite

4 - 3748 CHAMPLAIN STREET
Clarence-Rockland, Ontario K0A1E0

MLS® Number: X12466458
0
Bathrooms
0 - 699
Square Feet

Listing Description

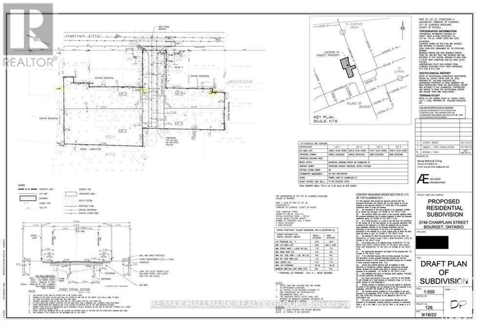
Ready to consider building? This building lot in the heart of charming Bourget is the one for you! No rear neighbours and directly across from the french elementary school. Potential to build up to 20 unit residential building on this lot. Centrally located lot within walking distance to all the villages amenities such as schools, library, shops, grocery store and more. (41464525)

Location Description

North of Laval St from Russell Rd. to Champlain St.

Property Summary

Property Type
Vacant Land
Square Footage
0 - 699 sqft
Community Name
607 - Clarence/Rockland Twp
Land Size
132 x 368 FT ; 0|under 1/2 acre
Annual Property Taxes
$0
Parking Type
No Garage
Time on REALTOR.ca
94 days

Building

Bathrooms
Total
0
Utilities
Utility Type
Cable (Available), Electricity (Available), Sewer (Available)
Parking
Parking Type
No Garage
Total Parking Spaces
0

Measurements

Square Footage
0 - 699 sqft

Land

Lot Features
Frontage
132 ft
Land Depth
368 ft
Other Property Information
Zoning Description
Residential
Data provided by: Ottawa Real Estate Board
Are you interested in touring this listing?
Request a showing

Similar Listings

Sean Tasse