We use cookies and other technologies for functionality, security, and to provide you with a personalized experience on our online services. By continuing to use our online services, you agree to our Privacy Policy and Terms of Use. For information on how to adjust your privacy settings, visit our Cookie Policy.
Dismiss
Home ON Greater Toronto Area Toronto Old Toronto North Toronto
405 - 234 EGLINTON AVENUE E
Directions Print
405 - 234 EGLINTON AVENUE E $14/square feet
$14/square feet
Hide
Favourite

405 - 234 EGLINTON AVENUE E
Toronto (Mount Pleasant West), Ontario M4P1K5

MLS® Number: C12464615

Listing Description

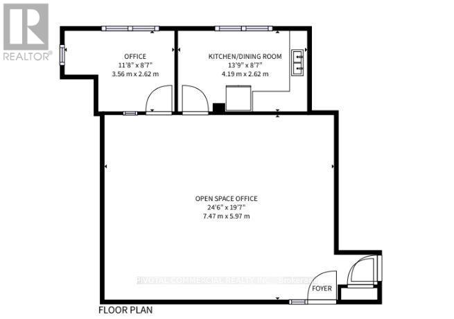
Approx. 923 Sq. Ft. of built-out office space on the 5th Floor is available for lease in midtown Toronto and minutes away from the Yonge and Eglinton subway line. Five private offices and open area. Great for medical and professional uses. **EXTRAS** Parking: $180/Month/Stall (41459362)

Location Description

Cross Streets: Eglinton & Mt. Pleasant. ** Directions: Eglinton Ave. E. & Mt. Pleasant.

Property Summary

Property Type
Office
Building Type
Offices
Community Name
Mount Pleasant West
Land Size
74.59 x 286.13 FT
Annual Property Taxes
$14.06
Time on REALTOR.ca
66 days

Building

Building Features
Features
Elevator
Heating & Cooling
Cooling
Fully air conditioned
Heating Type
Forced air (Electric)
Utilities
Water
Municipal water
Neighbourhood Features
Amenities Nearby
Public Transit

Measurements

Square Footage
718 sqft

Land

Lot Features
Frontage
74 ft ,7 in
Land Depth
286 ft ,1 in
Other Property Information
Zoning Description
Commercial
Lease Type
Net
Are you interested in touring this listing?
Request a showing

SHAWN ABRAMOVITZ