We use cookies and other technologies for functionality, security, and to provide you with a personalized experience on our online services. By continuing to use our online services, you agree to our Privacy Policy and Terms of Use. For information on how to adjust your privacy settings, visit our Cookie Policy.
Dismiss
Home ON Greater London Middlesex County London Hyde Park
101 - 1584 NORTH ROUTLEDGE PARK
Directions Print
101 - 1584 NORTH ROUTLEDGE PARK $4,250/Monthly
$4,250/Monthly
Hide
Favourite

101 - 1584 NORTH ROUTLEDGE PARK
London North (North E), Ontario N6H5L6

MLS® Number: X12452571
1
Bathrooms
2417
Square Feet

Listing Description

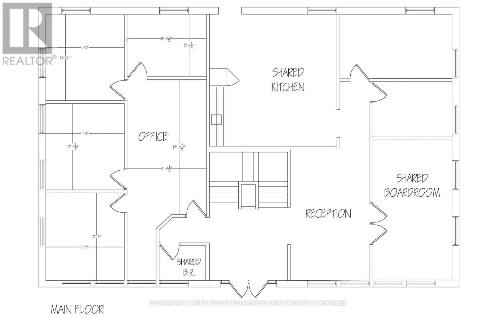
Contemporary office space available for lease in the sought-after Hyde Park area of London, ON. This well-appointed space boasts ample natural light, a welcoming reception area, private offices, open workspaces, a modern kitchen, a boardroom and FREE onsite parking. The gross lease rate includes utilities. Don't miss out! (41420080)

Location Description

Cross Streets: Hyde Park Rd. ** Directions: Located on the south side of North Routledge Park just west of Hyde Park Rd.

Property Summary

Property Type
Office
Building Type
Offices
Square Footage
2417 sqft
Community Name
North E
Land Size
99.26 x 197.99 FT
Age Of Building
31 to 50 years
Annual Property Taxes
$0
Time on REALTOR.ca
72 days

Building

Bathrooms
Total
1
Heating & Cooling
Cooling
Fully air conditioned
Heating Type
Forced air (Natural gas)
Utilities
Utility Sewer
Sanitary sewer
Water
Municipal water

Measurements

Square Footage
2417 sqft

Land

Lot Features
Frontage
99 ft ,3 in
Land Depth
197 ft ,11 in
Other Property Information
Zoning Description
LI1(3)
Lease Type
Gross
Are you interested in touring this listing?
Request a showing

JAMESON LAKE