We use cookies and other technologies for functionality, security, and to provide you with a personalized experience on our online services. By continuing to use our online services, you agree to our Privacy Policy and Terms of Use. For information on how to adjust your privacy settings, visit our Cookie Policy.
Dismiss
Home ON Greater Kingston Frontenac County Kingston Gardiners - Meadowbrook
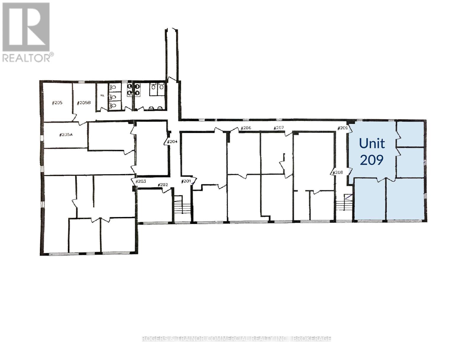
209 - 1724 BATH ROAD
Directions Print
209 - 1724 BATH ROAD $8/Monthly
$8/Monthly
Hide
Favourite

209 - 1724 BATH ROAD
Kingston (South of Taylor-Kidd Blvd), Ontario K7M4Y2

MLS® Number: X12452187

Listing Description

Nice upper unit at the end of the building offering daylight from three directions with huge front windows. A very quiet location. Clean common washrooms for office Tenants. New carpets and freshly painted, ready for occupancy. Ample common parking. The plaza is 100% Tenanted with restaurants and service businesses making it a vibrant environment for an office location. Net lease has a Total Rent of $8.00 base and $9.00 additional. Gas and electric accounts are in addition to rent and separately metered. Easy to show. (41418972)

Location Description

Cross Streets: Bath Road and Days Road. ** Directions: West past Gardiners Road on Bath Road, property located on the north side of Bath Road.

Property Summary

Property Type
Office
Building Type
Offices
Community Name
37 - South of Taylor-Kidd Blvd
Age Of Building
51 to 99 years
Annual Property Taxes
$9
Time on REALTOR.ca
73 days

Building

Heating & Cooling
Cooling
Fully air conditioned
Heating Type
Forced air (Natural gas)
Neighbourhood Features
Amenities Nearby
Highway, Public Transit

Measurements

Square Footage
1381 sqft

Land

Other Property Information
Zoning Description
C2
Lease Type
Net
Are you interested in touring this listing?
Request a showing

PAUL CHAPMAN