We use cookies and other technologies for functionality, security, and to provide you with a personalized experience on our online services. By continuing to use our online services, you agree to our Privacy Policy and Terms of Use. For information on how to adjust your privacy settings, visit our Cookie Policy.
Dismiss
Home ON Dufferin Dufferin County Shelburne
825 COOK CRESCENT
Directions Print
825 COOK CRESCENT $499,900
Price Change on 12/02/2025
$499,900
-$10,000
$509,900
Hide
Favourite

825 COOK CRESCENT
Shelburne, Ontario L0N1S1

MLS® Number: X12446766
3 + 2
Bedrooms
4
Bathrooms
1100 - 1500
Square Feet

Listing Description

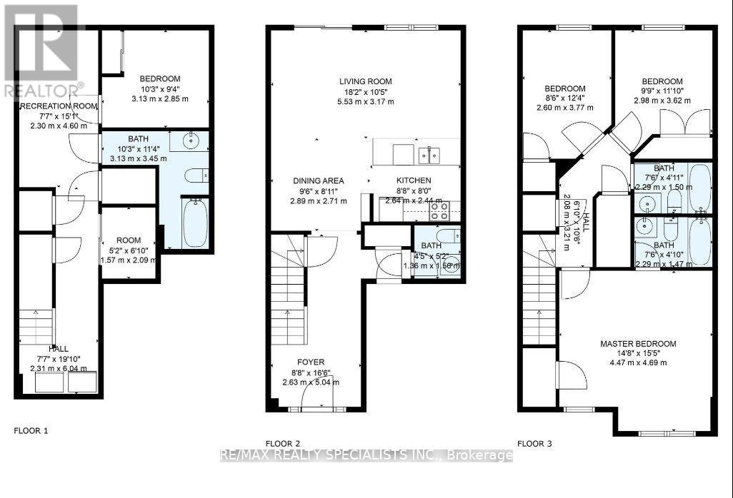
Step into a home where thoughtful design, modern finishes, and everyday functionality come together to create the perfect space for first-time buyers, young families, or anyone seeking a welcoming place to settle in and make their own. This charming property offers an inviting blend of comfort and convenience, beginning with a bright, open-concept main floor that sets the tone the moment you walk through the door.The main living area is designed for effortless daily living and easy entertaining. Whether you're hosting friends for dinner, enjoying a cozy night in, or working from home, the layout provides flexibility to suit your lifestyle. Large windows fill the space with natural sunlight, enhancing the airy feel and making each room warm and inviting.At the heart of the home is a stylish, well-appointed kitchen contemporary finishes that elevate the entire space. Its seamless flow into the adjoining living and dining areas makes cooking, dining, and relaxing truly connected experiences. Sliding glass doors lead directly from the living area to your private backyard, extending your living space outdoors and creating the perfect setting for warm-weather barbecues, gardening, playtime, or simply unwinding at the end of the day.Upstairs, discover three generous bedrooms, each offering a room to rest, recharge, or set up a home office or creative space. The upper level provides comfort and privacy, making it ideal for growing families or shared living arrangements.The backyard is a true highlight-an inviting outdoor extension of the home with plenty of space for kids, pets, gardening, or entertaining. Enjoy unobstructed country views that create a serene and picturesque backdrop, giving you your own private oasis right at home.Please note: Photos do not reflect the current condition of the home and were taken prior to tenant occupancy.Offering great value, a functional layout, 825 Cook Cres.is ready for its next chapter-and ready for you to make it yours. (41402501)

Location Description

HWY 10/COL PHILLIPS/ARMSTRONG

Property Summary

Property Type
Single Family
Building Type
Row / Townhouse
Storeys
2
Square Footage
1100 - 1500 sqft
Community Name
Shelburne
Title
Freehold
Land Size
19.7 x 100 FT ; APRD|under 1/2 acre
Age Of Building
6 to 15 years
Annual Property Taxes
$3,936
Parking Type
Attached Garage, Garage
Time on REALTOR.ca
67 days

Building

Bedrooms
Above Grade
3
Below Grade
2
Bathrooms
Total
4
Partial
1
Interior Features
Appliances Included
Water meter, Dishwasher, Dryer, Stove, Washer, Refrigerator
Flooring
Ceramic, Carpeted, Laminate
Basement Type
Full (Finished)
Building Features
Features
Level lot, Level
Foundation Type
Concrete
Style
Attached
Rental Equipment
Water Heater
Heating & Cooling
Cooling
Central air conditioning
Heating Type
Forced air (Natural gas)
Utilities
Utility Type
Cable (Installed), Electricity (Installed), Sewer (Installed)
Utility Sewer
Sanitary sewer
Water
Municipal water
Exterior Features
Exterior Finish
Brick, Vinyl siding
Neighbourhood Features
Amenities Nearby
Park, Schools
Parking
Parking Type
Attached Garage, Garage
Total Parking Spaces
3

Measurements

Square Footage
1100 - 1500 sqft

Rooms

MetricImperial
Main level
Kitchen
Dining room
Living room
Second level
Laundry room
Primary Bedroom
Bedroom 2
Bedroom 3
Lower level
Bedroom 4
Bedroom 5

Land

Lot Features
Frontage
19 ft ,8 in
Land Depth
100 ft
Other Property Information
Zoning Description
R5-2, R5-1
Are you interested in touring this listing?
Request a showing

Similar Listings

LINDA M. HORNE