We use cookies and other technologies for functionality, security, and to provide you with a personalized experience on our online services. By continuing to use our online services, you agree to our Privacy Policy and Terms of Use. For information on how to adjust your privacy settings, visit our Cookie Policy.
Dismiss
Home QC Montcalm Saint-Roch-de-l'Achigan
1067 Rue Principale
Directions Print
1067 Rue Principale $374,900
$374,900
Hide
Favourite

1067 Rue Principale
Saint-Roch-de-l'Achigan, Quebec J0K3H0

MLS® Number: 10656975
3
Bedrooms
1
Bathrooms
-
Square Feet

Listing Description

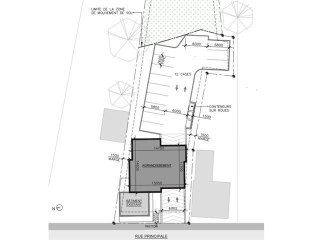
Maison ancestrale au coeur du village, située sur la rue Principale. Vaste terrain de 23 465 pi² bordé par la rivière, avec zonage mixte (commercial et résidentiel). Possibilités : résidence privée, commerce ou projet de multiplex. Une propriété unique alliant cachet, authenticité et potentiel d'investissement. (39602390)

Property Summary

Property Type
Single Family
Building Type
House
Storeys
2
Land Size
2179.9 m2
Built in
1868
Parking Type
Other
Time on REALTOR.ca
71 days

Building

Bathrooms
Total
1
Partial
1
Interior Features
Basement Type
Crawl space
Building Features
Features
Flat site, Double width or more driveway, Paved driveway
Foundation Type
Stone
Style
Detached
Heating & Cooling
Heating Type
(Electric)
Utilities
Utility Sewer
Municipal sewage system
Water
Municipal water
Exterior Features
Roof Style
Asphalt shingle, Steel
Neighbourhood Features
Amenities Nearby
Highway, Schools
Parking
Parking Type
Other
Total Parking Spaces
8

Rooms

MetricImperial
Main level
Kitchen
Dining room
Living room
Bedroom
Partial bathroom
Second level
Bedroom
Other
Bedroom
Bathroom

Land

Lot Features
Frontage
20.15 m
Other Property Information
Zoning Type
Residential/Commercial
Farm Features
Farm Type
Other
Are you interested in touring this listing?
Request a showing

Similar Listings

Raphaelle Boisclair