We use cookies and other technologies for functionality, security, and to provide you with a personalized experience on our online services. By continuing to use our online services, you agree to our Privacy Policy and Terms of Use. For information on how to adjust your privacy settings, visit our Cookie Policy.
Dismiss
Home ON Greater Chatham-Kent Chatham-Kent Blenheim
5 HYLAND DRIVE
Directions Print
5 HYLAND DRIVE $8/square feet
$8/square feet
Hide
Favourite

5 HYLAND DRIVE
Blenheim, Ontario N0P1A0

MLS® Number: 25025028

Listing Description

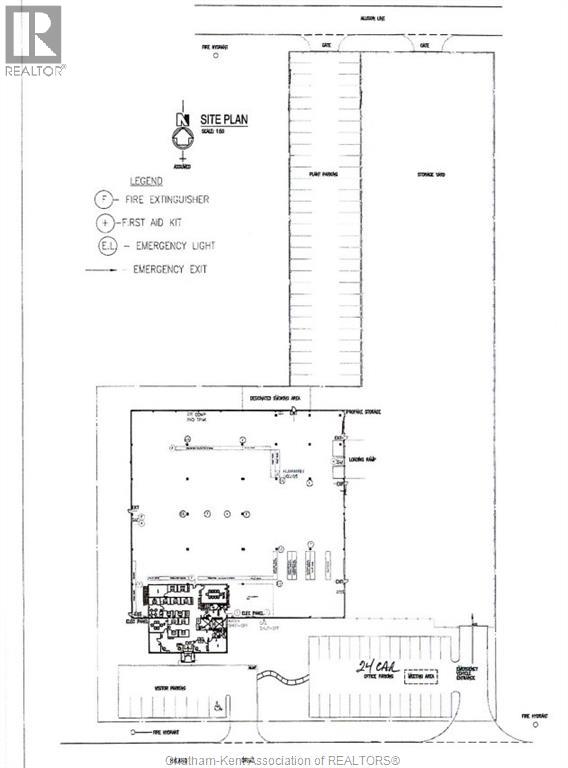
For Lease – Prime Industrial Facility in Blenheim. This outstanding property offers over 38,000 sq. ft. of versatile space, featuring 6,400 sq. ft. of office area and more than 32,000 sq. ft. of shop and warehouse space. Situated on 3.55 acres, the site includes a fully fenced and paved laydown yard, ideal for secure outdoor storage and heavy vehicle maneuvering. The building boasts 20–24 ft. ceiling heights, 2 truck-level docks, and 4 grade-level doors to ensure efficient operations. With 400-amp electrical service, the facility is well equipped to handle demanding industrial requirements. Conveniently located in the Town of Blenheim, the property provides easy access to Highway 401 and major arterial routes, making it an excellent choice for a wide range of industrial and commercial uses. This is a rare opportunity to lease a high-quality industrial space in a prime Southwestern Ontario location. Seller will sub-divide office space from warehouse area. (53965908)

Location Description

FROM HWY 40; EAST ON HYLAND DRIVE; PROPERTY ON NORTH SIDE OF ROAD

Property Summary

Property Type
Industrial
Building Type
Warehouse
Title
Freehold
Land Size
353.28 X IRR / 3.55 AC|3 - 10 acres
Built in
2001
Annual Property Taxes
$53,472.48
Time on REALTOR.ca
79 days

Building

Heating & Cooling
Cooling
Central air conditioning
Heating Type
Forced air, (Natural gas)
Business
Business Type
Industrial (Warehouse), Industrial (Industrial)

Land

Other Property Information
Zoning Description
M1
Are you interested in touring this listing?
Request a showing

519-358-6117
519-352-2489
ANNITA ZIMMERMAN