We use cookies and other technologies for functionality, security, and to provide you with a personalized experience on our online services. By continuing to use our online services, you agree to our Privacy Policy and Terms of Use. For information on how to adjust your privacy settings, visit our Cookie Policy.
Dismiss
Home BC Greater Victoria Capital Sidney
6 2075 Henry Ave
Directions Print
More Photos + 1
6 2075 Henry Ave $12/square feet
$12/square feet
Hide
Favourite

6 2075 Henry Ave
Sidney, British Columbia V8L1T2

MLS® Number: 1015488

Listing Description

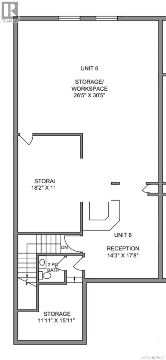
Great opportunity to lease flexible office space, conveniently located adjacent to Victoria International Airport with easy access to the highway, ferries, and into Sidney. 1,525 SF walk-up. Suitable for office, trade school, light storage, and more (M1 Zoning). See supplements for zoning detail and floor plans. Front office/customer service area, 2-piece washroom, electric heat pump heating/cooling, and windows on two sides. 2 on-site reserved parking stalls, visitor stalls, plus ample free street parking along Galaran. Low triple net @ $5.50 includes BC Hydro. Gross monthly rent ~$2,236. Available immediately. Call today for more info. (29955156)

Property Summary

Property Type
Office
Building Type
Offices
Neighbourhood Name
Sidney North-West
Total Parking Spaces
2
Time on REALTOR.ca
79 days

Building

Parking
Total Parking Spaces
2

Measurements

Exterior Building Size
1533 sqft

Land

Other Property Information
Zoning Description
M1
Zoning Type
Unknown
Data provided by: Victoria Real Estate Board
Are you interested in touring this listing?
Request a showing

250-590-5797
604-428-5254
REALTOR® Website
David Boon