We use cookies and other technologies for functionality, security, and to provide you with a personalized experience on our online services. By continuing to use our online services, you agree to our Privacy Policy and Terms of Use. For information on how to adjust your privacy settings, visit our Cookie Policy.
Dismiss
Home MB Greater Winnipeg Division No. 11 Winnipeg Transcona North
310 Emberwell Street
Directions Print
310 Emberwell Street $599,900
$599,900
Hide
Favourite

310 Emberwell Street
Winnipeg, Manitoba R2C5V6

MLS® Number: 202525576
3
Bedrooms
3
Bathrooms
1890
Square Feet

Listing Description

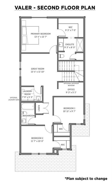
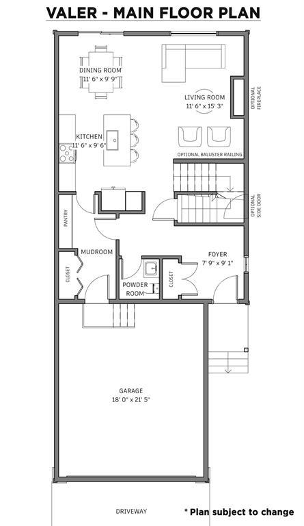
3M//Winnipeg/Welcome to "The Valer"! Experience exceptional design in this stunning 1,890 sqft HOMEBRAND build in desirable Summerlea. Homebrand is a division of AspenGrove Developments, a boutique custom residential builder based in Winnipeg. Offering high quality craftsmanship and luxury options, this well-appointed 2-storey home features an open-concept main floor w/ 9ft ceilings and large windows that create bright and inviting living areas. Gourmet kitchen offering quartz countertops, soft close drawers & generous walk-in pantry/mudroom. Well laid out main floor plan with additional 2-pc powder room and inviting front foyer. Spacious upper floor offering family room area, 3 bdrms + office, full 4-pc bath, laundry, walk-in closets and 4-pc primary ensuite bath. Concrete piled foundation, High efficient furnace, Ecobee Thermostat, Garage door opener all included. Situated on rare HUGE PIE LOT valued at $179,900. Home comes w/ a 1-year builder s warranty and a 5-year structural warranty. Builder has other models/sq footages that can be built on this lot - Plenty of choices for finishing & upgrades available - inquire for details. Don't miss this opportunity to build a fantastic home in a desirable community! (231464867)

Property Summary

Property Type
Single Family
Building Type
House
Storeys
2
Square Footage
1890 sqft
Community Name
Summerlea
Neighbourhood Name
Summerlea
Title
Freehold
Land Size
Unknown
Built in
2025
Annual Property Taxes
$0
Parking Type
Attached Garage
Time on REALTOR.ca
148 days

Building

Bathrooms
Total
3
Partial
1
Interior Features
Flooring
Wall-to-wall carpet, Laminate, Vinyl
Building Features
Features
Flat site, Closet Organizers, Exterior Walls- 2x6", Sump Pump
Heating & Cooling
Heating Type
High-Efficiency Furnace, Forced air (Natural gas)
Utilities
Utility Sewer
Municipal sewage system
Water
Municipal water
Parking
Parking Type
Attached Garage

Measurements

Square Footage
1890 sqft

Rooms

MetricImperial
Main level
Living room
Dining room
Kitchen
Foyer
Upper Level
Family room
Primary Bedroom
Bedroom
Bedroom
Laundry room
Office

Land

Lot Features
Road Type
Paved road
Are you interested in touring this listing?
Request a showing

Similar Listings

Bobby Silman