We use cookies and other technologies for functionality, security, and to provide you with a personalized experience on our online services. By continuing to use our online services, you agree to our Privacy Policy and Terms of Use. For information on how to adjust your privacy settings, visit our Cookie Policy.
Dismiss
Home ON St. Catharines - Niagara Niagara Region Thorold Thorold Proper
13 ST DAVIDS STREET W
Directions Print
13 ST DAVIDS STREET W $1,299,000
$1,299,000
Hide
Favourite

13 ST DAVIDS STREET W
Thorold (Thorold Downtown), Ontario L2V2L1

MLS® Number: X12436040
0
Bathrooms
0 - 699
Square Feet

Listing Description

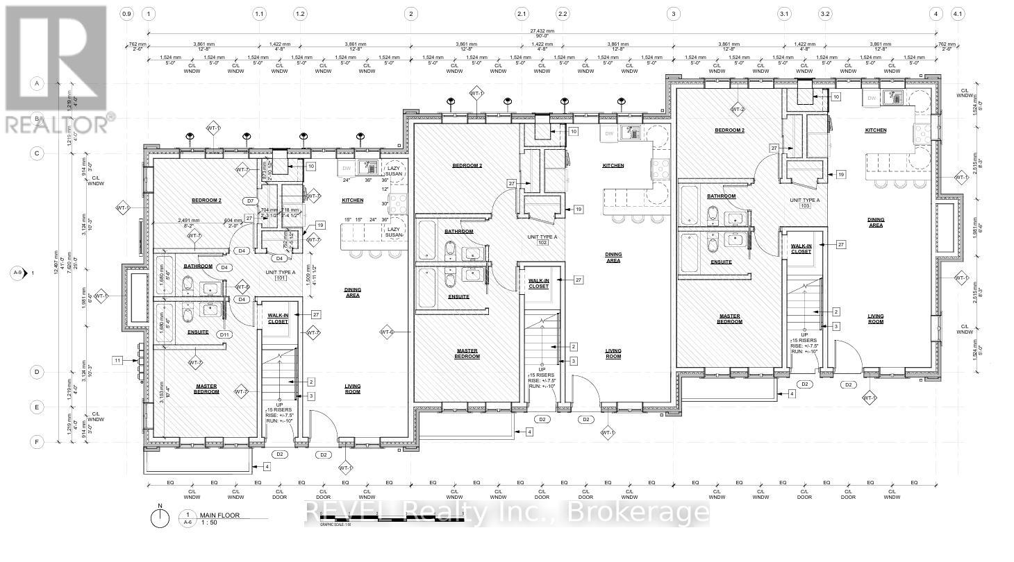
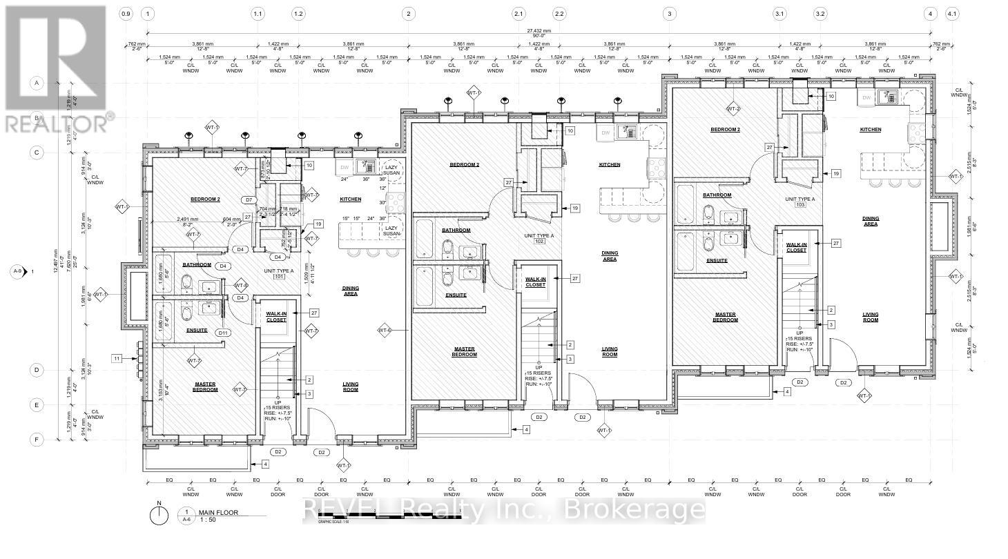
SITE APPROVED for a 9 unit building including 6 residential and 3 commercial units. This is an incredible investment opportunity located in the heart of downtown Thorold. Location is optimal as it is close to all amenities. Preliminary legwork has been done. Nothing to do but obtain a building permit. Buyer to do their due diligence with the City of Thorold for permitted uses. (41368646)

Location Description

Cross Streets: Exit 406 to St. David's Street West. ** Directions: on St. Davids Rd W.

Property Summary

Property Type
Vacant Land
Square Footage
0 - 699 sqft
Community Name
557 - Thorold Downtown
Land Size
87.9 x 212.2 FT|under 1/2 acre
Annual Property Taxes
$1,906
Parking Type
No Garage
Time on REALTOR.ca
149 days

Building

Bathrooms
Total
0
Utilities
Utility Sewer
Sanitary sewer
Water
Municipal water
Parking
Parking Type
No Garage

Measurements

Square Footage
0 - 699 sqft

Land

Lot Features
Frontage
87 ft ,10 in
Land Depth
212 ft ,2 in
Other Property Information
Zoning Description
E1
Are you interested in touring this listing?
Request a showing

Similar Listings

Rosie Araujo