We use cookies and other technologies for functionality, security, and to provide you with a personalized experience on our online services. By continuing to use our online services, you agree to our Privacy Policy and Terms of Use. For information on how to adjust your privacy settings, visit our Cookie Policy.
Dismiss
Home ON Muskoka Muskoka Lakes
9 - 1310 CAMEL LAKE ROAD
Directions Print
9 - 1310 CAMEL LAKE ROAD $795,000
$795,000
Hide
Favourite

9 - 1310 CAMEL LAKE ROAD
Muskoka Lakes (Watt), Ontario P1L1X4

MLS® Number: X12434371
0
Bathrooms
-
Square Feet

Listing Description

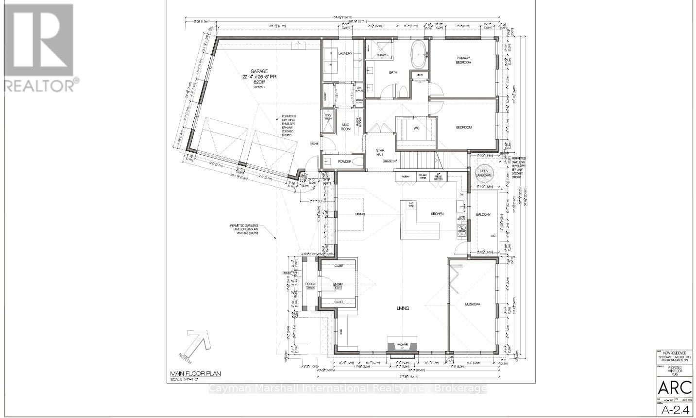
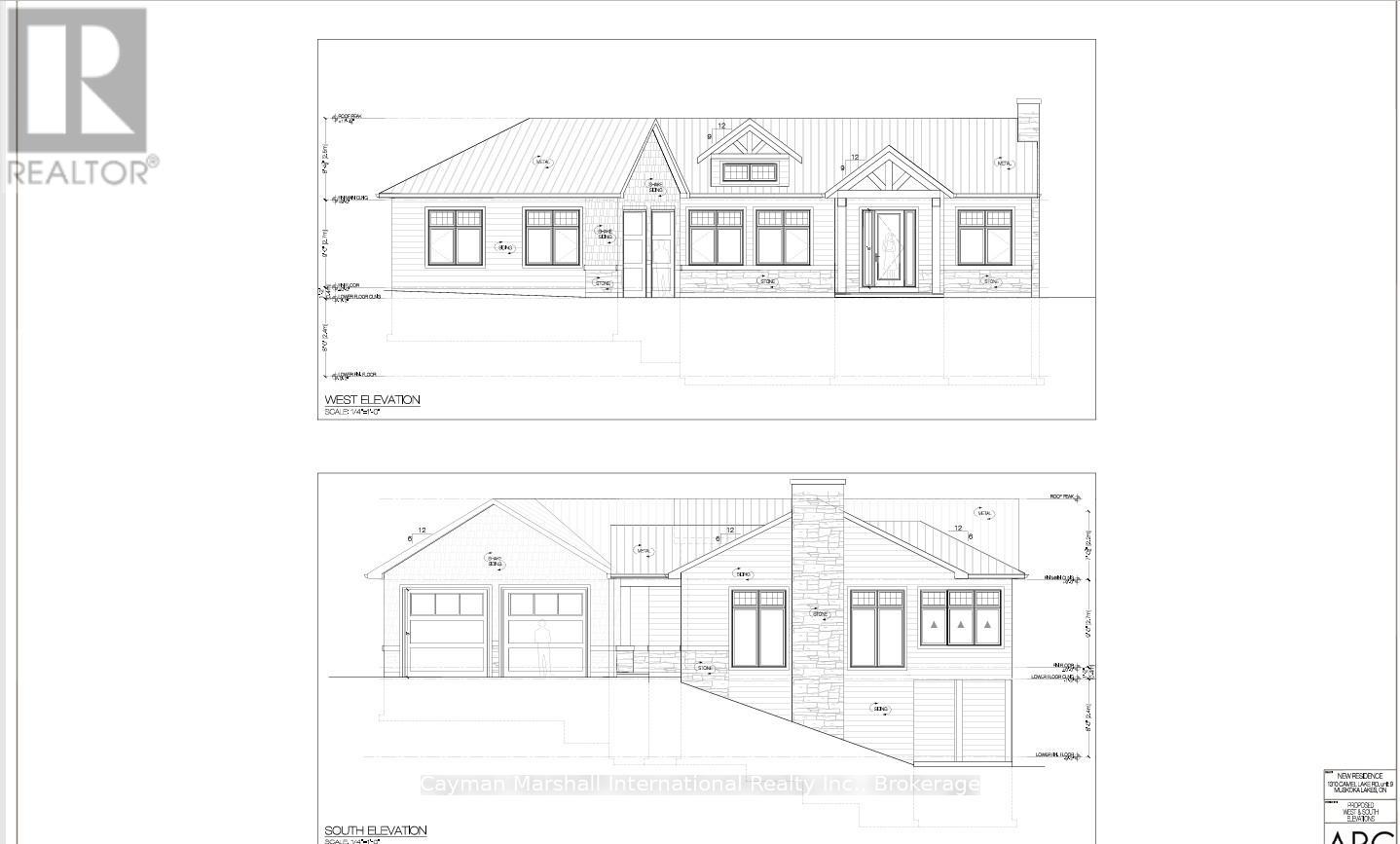
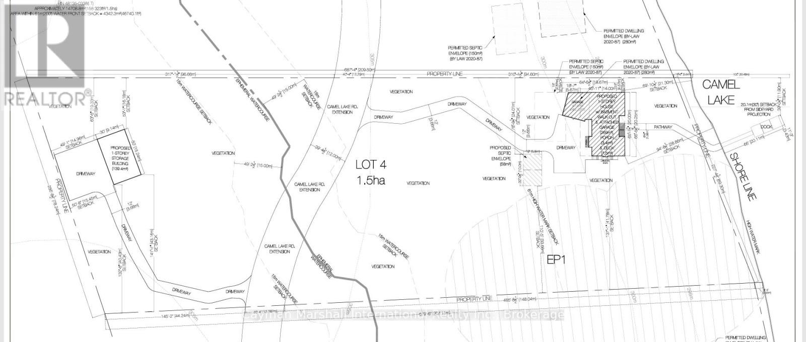
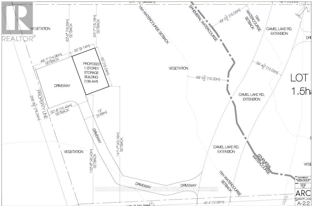
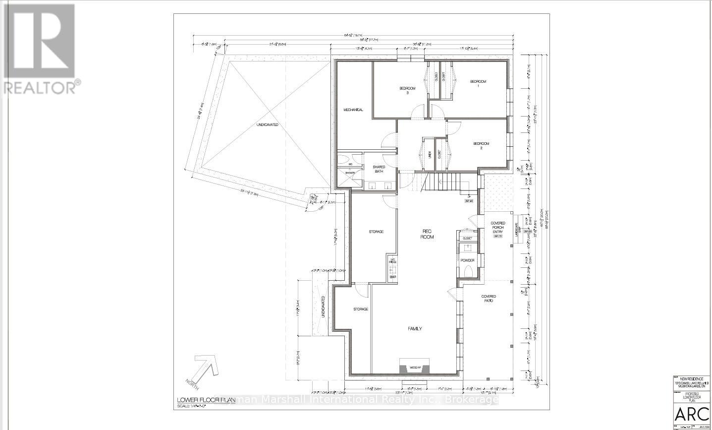
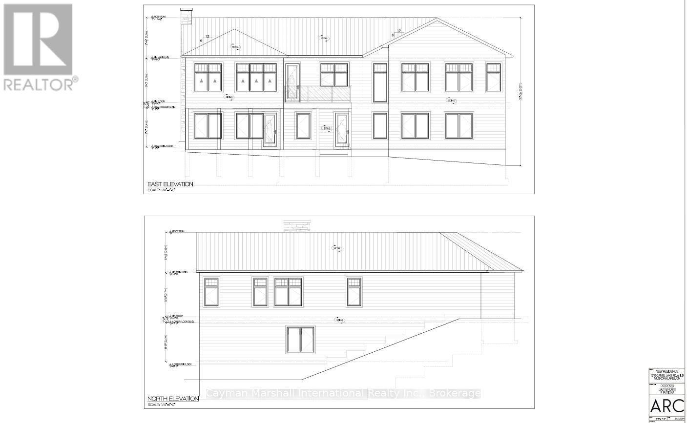
Build your dream cottage in the heart of Muskoka, where endless amenities are just minutes away. This property offers a partially cleared main building site with a gentle slope to the waters edge, plus an installed driveway and a cleared area for a proposed oversized storage building or shop. Significant investments have already been made, including engineered drawings for a spacious 4-5 bedroom, 4 bathroom cottage with a walkout lower level, attached double garage, and back-lot shop/storage building all included in the sale. Set on picturesque Camel Lake, a tranquil 141-acre spring-fed lake with depths of up to 50 feet, the property boasts clear waters, natural beauty, and year-round enjoyment. Swim, fish, and boat in summer, or simply relax among mature forests and granite outcroppings. Conveniently located near downtown Bracebridge, you'll enjoy easy access to shopping, dining, golf, snowmobile trails, parks, and endless outdoor recreation. Buy, build and enjoy! (41363748)

Location Description

Cross Streets: Raymond Road & Camel Lake Rd. ** Directions: Raymond Road to Camel Lake Rd to Camel Lk Ext. Rd ... Follow signs to subject property.

Property Summary

Property Type
Vacant Land
Community Name
Watt
Land Size
225 x 684 FT|2 - 4.99 acres
Annual Property Taxes
$1,424
Parking Type
No Garage
Time on REALTOR.ca
73 days

Building

Bathrooms
Total
0
Building Features
Features
Wooded area, Partially cleared
Utilities
Utility Type
Electricity (Available), Electricity Available (Nearby)
Parking
Parking Type
No Garage

Land

Lot Features
Frontage
225 ft
Land Depth
684 ft
View
Lake view, Direct Water View
Other Property Information
Access
Year-round access
Easements
Easement, None
Waterfront Features
Waterfront
Waterfront
Waterfront Name
Camel Lake
Are you interested in touring this listing?
Request a showing

Similar Listings

JEFF LIDDLE