We use cookies and other technologies for functionality, security, and to provide you with a personalized experience on our online services. By continuing to use our online services, you agree to our Privacy Policy and Terms of Use. For information on how to adjust your privacy settings, visit our Cookie Policy.
Dismiss
Home ON Greater Toronto Area Toronto North York Clanton Park Dublin Heights
A - 799 SHEPPARD AVENUE W
Directions Print
A - 799 SHEPPARD AVENUE W $1/square feet
$1/square feet
Hide
Favourite

A - 799 SHEPPARD AVENUE W
Toronto (Clanton Park), Ontario M3H2T3

MLS® Number: C12433065

Listing Description

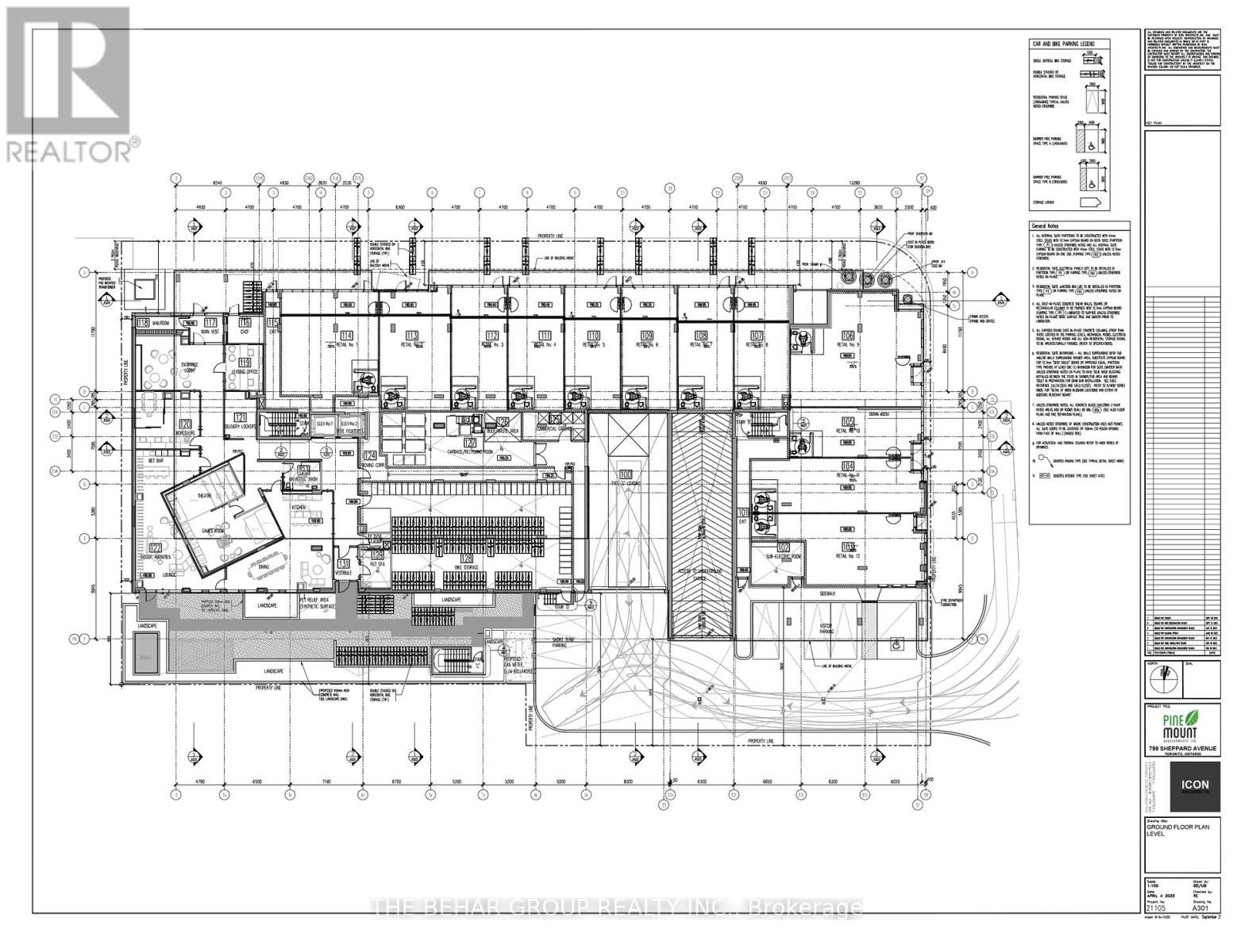
Prime North York location at the intersection of Sheppard Avenue West and Gorman Park Road, conveniently situated between Bathurst St and Wilson Heights. The Hawthorne is a premium purpose-built rental development offering high-class amenities and innovative design, with possession anticipated in late 2026.The project will feature approximately 170 residential units and 11,000 sq. ft. of ground-floor commercial space with flexible demising options. Ideal for financial services, medical services, boutique retail, boutique fitness, pet retail, cafe or specialty food (non-venting).Located just a 10 minute transit ride from Sheppard W station, with strong surrounding demographics and nearly 979 residential units under development in the immediate area. Unit sizes subject to change. (41359901)

Location Description

Sheppard Ave W and Bathurst St

Property Summary

Property Type
Retail
Community Name
Clanton Park
Age Of Building
New building
Annual Property Taxes
$16
Time on REALTOR.ca
82 days

Building

Heating & Cooling
Cooling
Fully air conditioned
Heating Type
Forced air (Natural gas)
Utilities
Water
Municipal water
Business
Business Type
Retail and Wholesale (Retail misc.)

Measurements

Square Footage
1000 sqft

Land

Other Property Information
Zoning Description
Commercial
Lease Type
Net
Are you interested in touring this listing?
Request a showing

Tania Nicoletti