We use cookies and other technologies for functionality, security, and to provide you with a personalized experience on our online services. By continuing to use our online services, you agree to our Privacy Policy and Terms of Use. For information on how to adjust your privacy settings, visit our Cookie Policy.
Dismiss
Home ON Grey County The Blue Mountains
UNIT 1 - 63 ARTHUR STREET W
Directions Print
UNIT 1 - 63 ARTHUR STREET W $1/square feet
$1/square feet
Hide
Favourite

UNIT 1 - 63 ARTHUR STREET W
Blue Mountains, Ontario N0H2P0

MLS® Number: X12432206

Listing Description

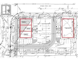
Prime new development commercial parcel available along Arthur St W/Highway 26 in the town of Thornbury. This site is ideally located between Collingwood, Meaford and Owen Sound. This high-exposure corner lot is directly across from major food and liquor retailers, and a gas station. Located just two blocks from Main Street Thornbury, the site is zoned for commercial retail development with potential to build up to approximately 8,000 sq. ft. This flexible new build opportunity is ideal for retail, service, commercial or food uses looking to establish presence in one of Southern Georgian Bay's fastest-growing communities. (41357241)

Location Description

Arthur St W & Victoria St S

Property Summary

Property Type
Retail
Community Name
Blue Mountains
Land Size
0.836 ac
Annual Property Taxes
$12
Time on REALTOR.ca
82 days

Building

Heating & Cooling
Cooling
Fully air conditioned
Heating Type
Forced air (Natural gas)
Utilities
Water
Municipal water
Business
Business Type
Retail and Wholesale (Retail misc.)

Measurements

Square Footage
8000 sqft

Land

Other Property Information
Zoning Description
C2R3
Lease Type
Net
Are you interested in touring this listing?
Request a showing

JOSH HARRIS