We use cookies and other technologies for functionality, security, and to provide you with a personalized experience on our online services. By continuing to use our online services, you agree to our Privacy Policy and Terms of Use. For information on how to adjust your privacy settings, visit our Cookie Policy.
Dismiss
Home ON Lanark County Smiths Falls
154 DOCTOR AGNES CRAINE DRIVE
Directions Print
154 DOCTOR AGNES CRAINE DRIVE $379,900
$379,900
Hide
Favourite

154 DOCTOR AGNES CRAINE DRIVE
Smiths Falls, Ontario K7A0A5

MLS® Number: X12427265
2
Bedrooms
2
Bathrooms
700 - 1100
Square Feet

Listing Description

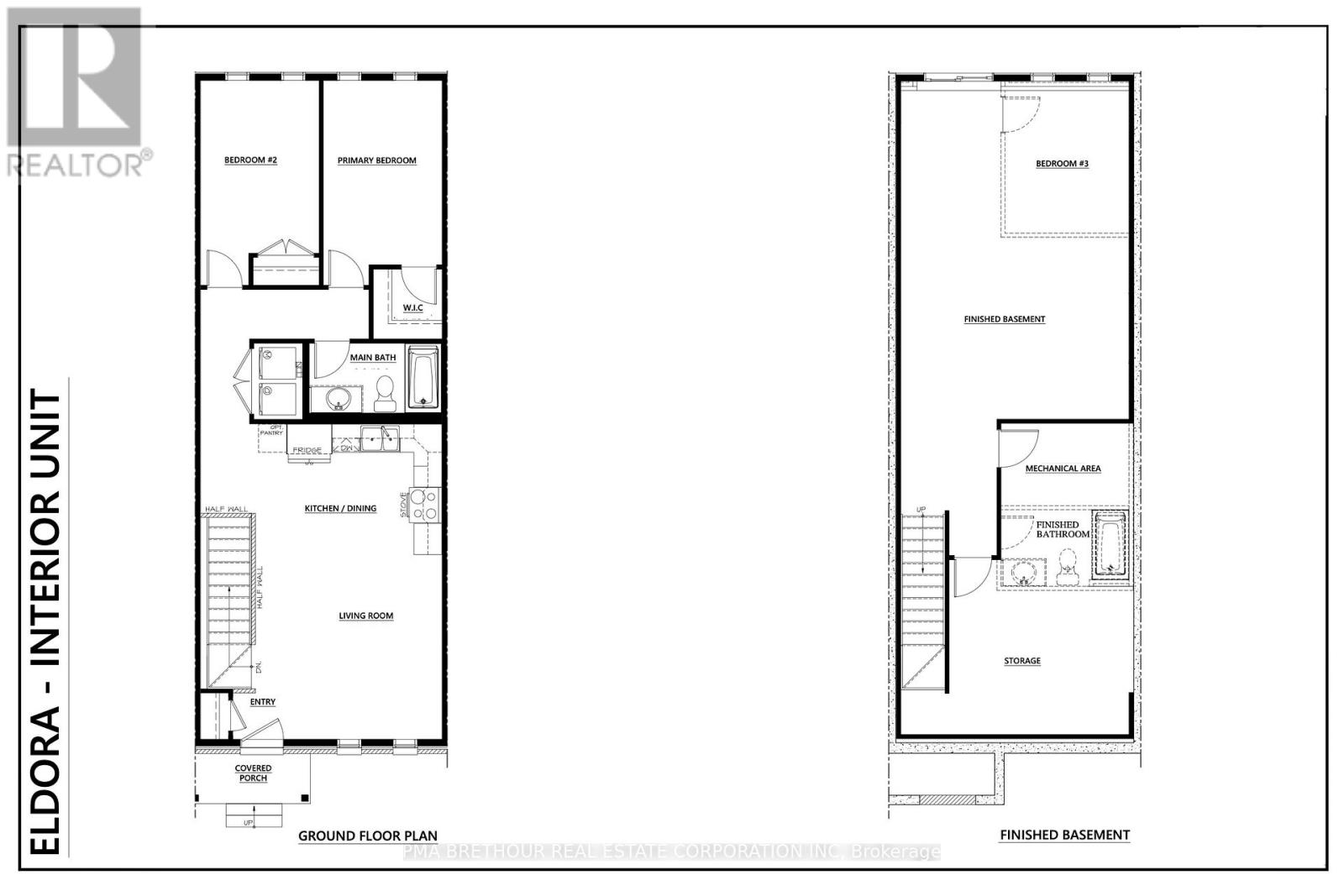
Welcome to the ELDORA, proudly built by Park View Homes a name synonymous with quality craftsmanship, energy efficiency, and thoughtful design. ENERGY STAR-certified home offers beautifully finished living space, perfectly tailored for modern living. The main floor features a bright, open-concept layout that seamlessly blends comfort and functionality. The contemporary kitchen flows into the spacious living and dining areas, creating an inviting atmosphere ideal for both everyday living and entertaining. Two generously sized bedrooms are located on this level, including a primary bedroom complete with a walk-in closet, offering both comfort and ample storage. The finished walkout basement provides incredible flexibility with a large rec room, a third bedroom that can easily serve as a home office, and a full bathroom. This versatile space is perfect for growing families, accommodating guests, or creating a dedicated work-from-home environment. Built with triple-glazed windows and airtightness, this home is designed to deliver long-term energy savings, enhanced comfort, and lasting value. This home is backed by a Tarion warranty for your peace of mind. Experience the benefits of new construction in a thoughtfully designed home that combines style, efficiency, and functionality in every detail. The ELDORA model is ready to welcome you home (41341281)

Location Description

Cross Streets: Broadview st. ** Directions: Head south on Beckwith St N, continue straight onto Brockville Street, turn right onto Broadway, turn right onto Staples and turn left onto Doctor Agnes.

Property Summary

Property Type
Single Family
Building Type
Row / Townhouse
Storeys
1
Square Footage
700 - 1100 sqft
Community Name
901 - Smiths Falls
Title
Freehold
Land Size
5.5 x 30 M
Annual Property Taxes
$0
Parking Type
No Garage
Time on REALTOR.ca
81 days

Building

Bedrooms
Above Grade
2
Bathrooms
Total
2
Interior Features
Appliances Included
Dishwasher, Dryer, Microwave, Stove, Washer, Refrigerator
Basement Type
Partial (Partially finished)
Building Features
Foundation Type
Poured Concrete
Style
Attached
Architecture Style
Bungalow
Heating & Cooling
Cooling
Central air conditioning
Heating Type
Heat Pump (Electric), Not known (Electric)
Utilities
Utility Sewer
Sanitary sewer
Water
Municipal water
Exterior Features
Exterior Finish
Brick
Parking
Parking Type
No Garage
Total Parking Spaces
1

Measurements

Square Footage
700 - 1100 sqft

Rooms

MetricImperial
Main level
Foyer
Living room
Kitchen
Bathroom
Primary Bedroom
Other
Bedroom
Basement
Other
Bedroom
Family room
Bathroom

Land

Lot Features
Frontage
5.5 m
Land Depth
30 m
Data provided by: Ottawa Real Estate Board
Are you interested in touring this listing?
Request a showing

Similar Listings

Andrew Brethour