We use cookies and other technologies for functionality, security, and to provide you with a personalized experience on our online services. By continuing to use our online services, you agree to our Privacy Policy and Terms of Use. For information on how to adjust your privacy settings, visit our Cookie Policy.
Dismiss
Home ON Greater Toronto Area Toronto Scarborough East L'Amoreaux L'Amoureaux
750 HUNTINGWOOD DRIVE
Directions Print
750 HUNTINGWOOD DRIVE $1,899,900
$1,899,900
Hide
Favourite

750 HUNTINGWOOD DRIVE
Toronto (Tam O'Shanter-Sullivan), Ontario M1T2L3

MLS® Number: E12424999
0
Bathrooms
-
Square Feet

Listing Description

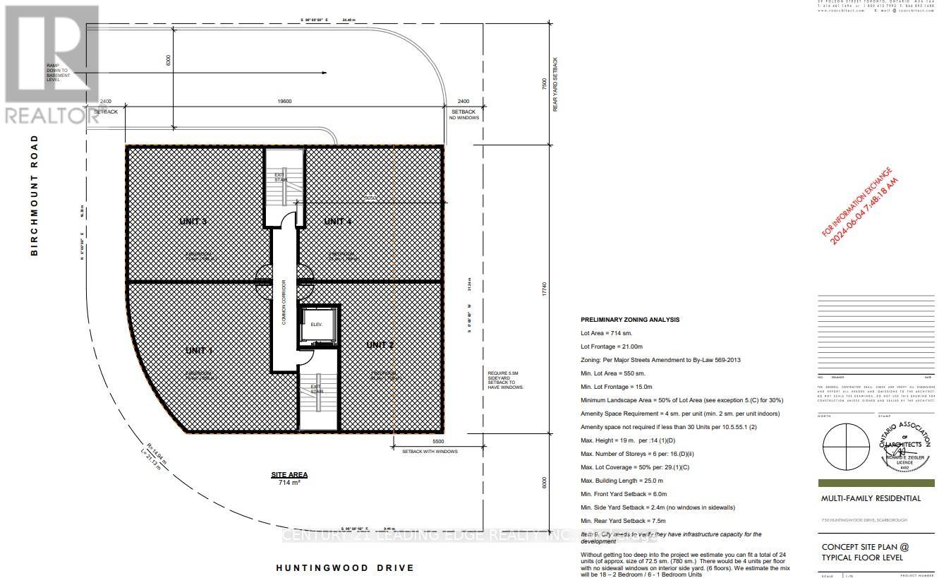
Amazing Development Opportunity in a Highly Desirable Area. Zoned for Townhomes, with the potential to build a 6-storey, 30-unit mid-rise! This exceptional, vacant land is located in a sought-after, family-friendly neighborhood and is currently zoned RD*1121. It has already been approved for five freehold townhomes, each with a legal secondary unit, totaling 10 units. Alternatively, take advantage of the city-approved zoning allowing for the construction of a six-storey, 30-unit mid-rise building. Situated at the intersection of two major streets, this site is in a high-demand rental area, with easy access to public transit, just minutes from Highway 401, shopping centers, restaurants, parks, and all essential amenities. This is a rare, high-potential investment opportunity, whether you're considering townhomes or a mid-rise. Dont miss out this prime site wont last long! (41334294)

Location Description

HUNTINGWOOD DRIVE / BIRCHMOUNT ROAD

Property Summary

Property Type
Vacant Land
Community Name
Tam O'Shanter-Sullivan
Land Size
80.09 x 102.48 FT|under 1/2 acre
Annual Property Taxes
$0
Time on REALTOR.ca
78 days

Building

Bathrooms
Total
0
Interior Features
Basement Type
None
Heating & Cooling
Cooling
None
Heating Type
Other

Land

Lot Features
Frontage
80 ft ,1 in
Land Depth
102 ft ,5 in
Are you interested in touring this listing?
Request a showing

Similar Listings

CHANDRA ARUMUGAM