We use cookies and other technologies for functionality, security, and to provide you with a personalized experience on our online services. By continuing to use our online services, you agree to our Privacy Policy and Terms of Use. For information on how to adjust your privacy settings, visit our Cookie Policy.
Dismiss
Home QC Greater Québec City Lévis Chutes-de-la-Chaudière-Est Saint-Romuald
1990 5e Rue
Directions Print
1990 5e Rue $1/Yearly/square feet
$1/Yearly/square feet
Hide
Favourite

1990 5e Rue
Lévis (Les Chutes-de-la-Chaudière-Est), Quebec G6W5M6

MLS® Number: 27801695

Listing Description

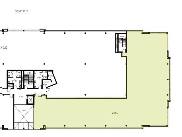
Espace à bureau d'une superficie de 7 017 pi.ca situé à St-Romuald. Cette propriété est idéalement située, bien desservie par l'autoroute 20, et offre un vaste stationnement gratuit sur place. Photos intérieurs à venir. Pour obtenir plus d'informations sur les conditions de location, n'hésitez pas à nous contacter. Notre équipe dédiée est à votre disposition pour répondre à toutes vos questions. (56707624)

Property Summary

Property Type
Office
Building Type
Retail
Neighbourhood Name
Saint-Romuald
Time on REALTOR.ca
88 days

Building

Building Features
Style
Detached
Total Units
1
Heating & Cooling
Heating Type
(Electric)

Land

Other Property Information
Zoning Type
Commercial
Farm Features
Farm Type
Other
Are you interested in touring this listing?
Request a showing

Maxime St-Pierre