We use cookies and other technologies for functionality, security, and to provide you with a personalized experience on our online services. By continuing to use our online services, you agree to our Privacy Policy and Terms of Use. For information on how to adjust your privacy settings, visit our Cookie Policy.
Dismiss
Home ON Greater London Middlesex County Adelaide-Metcalfe
LOT 81 BEER CRESCENT
Directions Print
More Photos + 2
LOT 81 BEER CRESCENT $649,000
$649,000
Hide
Favourite

LOT 81 BEER CRESCENT
Strathroy-Caradoc (NW), Ontario N7G3K5

MLS® Number: X12420273
2 + 2
Bedrooms
3
Bathrooms
1100 - 1500
Square Feet

Listing Description

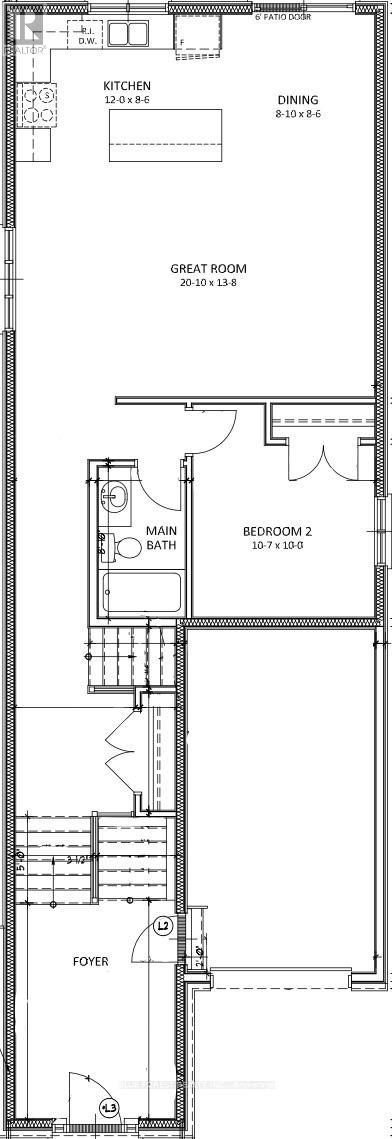
Welcome to "THE GARNET," a stunning raised ranch crafted by Liersche Custom Homes offering 2,118sqft. of finished living space. Be greeted when you walk inside the front foyer by the open-concept main floor features a stylish kitchen with an island overlooking a bright dining and great room. Enjoy a main floor 4pc bathroom plus a versatile bedroom. Upstairs holds the private primary suite with an ensuite and a walk-in closet. The finished basement adds a spacious rec room, two more bedrooms, a full bath, and a dedicated laundry. Complete with an attached garage and a welcoming front porch, this home is the perfect mix of style, comfort, and function, ready for you to move in! TO BE BUILT! Other lots and designs are available. Price based on base lot, premiums extra. Check out more plans at BUCHANANCROSSINGS.COM ** This is a linked property.** (41319135)

Location Description

Cross Streets: MCTAVISH ST. ** Directions: Buchanan Crossings Development.

Property Summary

Property Type
Single Family
Building Type
House
Storeys
1
Square Footage
1100 - 1500 sqft
Community Name
NW
Title
Freehold
Land Size
32 x 104 FT|under 1/2 acre
Age Of Building
New building
Annual Property Taxes
$0
Parking Type
Garage
Time on REALTOR.ca
157 days

Building

Bedrooms
Above Grade
2
Below Grade
2
Bathrooms
Total
3
Interior Features
Basement Features
Walk out
Basement Type
Full (Finished)
Building Features
Features
Sump Pump
Foundation Type
Poured Concrete
Style
Detached
Architecture Style
Raised bungalow
Rental Equipment
Water Heater
Structures
Porch
Heating & Cooling
Cooling
Central air conditioning
Heating Type
Forced air (Natural gas)
Utilities
Utility Sewer
Sanitary sewer
Water
Municipal water
Exterior Features
Exterior Finish
Vinyl siding, Brick
Parking
Parking Type
Garage
Total Parking Spaces
3

Measurements

Square Footage
1100 - 1500 sqft

Land

Lot Features
Frontage
32 ft
Land Depth
104 ft
Are you interested in touring this listing?
Request a showing

Similar Listings

ABBE SHEEDY