We use cookies and other technologies for functionality, security, and to provide you with a personalized experience on our online services. By continuing to use our online services, you agree to our Privacy Policy and Terms of Use. For information on how to adjust your privacy settings, visit our Cookie Policy.
Dismiss
Home BC Metro Vancouver Greater Vancouver Burnaby Douglas-Gilpin
5625 WOODSWORTH STREET
Directions Print
5625 WOODSWORTH STREET $1,498,000
$1,498,000
Hide
Favourite

5625 WOODSWORTH STREET
Burnaby, British Columbia V5G3P6

MLS® Number: R3050783
4
Bedrooms
5
Bathrooms
1632
Square Feet

Listing Description

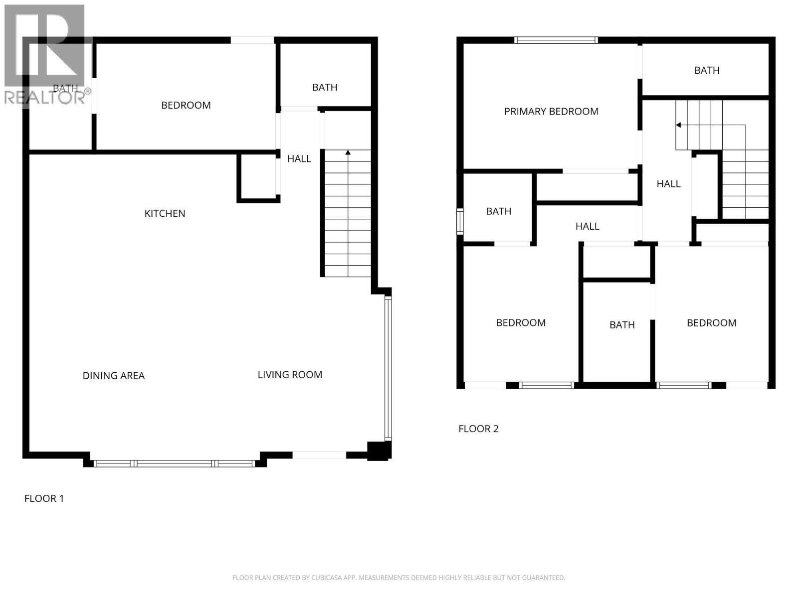
Brand New 2-level Side-by-Side Duplex with 4 bedrooms and 4.5 bathrooms and a total of 1,632 square feet. Features hot-water radiant heating, A/C system, tile and engineered wood floors throughout. There´s also a lock-off studio/nanny´s-quarters-great for rental income or extended family. Centrally located in Burnaby, close to recreation centres, parks (Deer Lake, Burnaby Lake), shopping (Metrotown, Brentwood), and good schools including BCIT & Simon Fraser. All measurements are approx. and must be verified. (31949220)

Property Summary

Property Type
Single Family
Building Type
Duplex
Square Footage
1632 sqft
Title
Strata
Land Size
5712 sqft
Built in
2025
Annual Property Taxes
$4,206
Total Parking Spaces
1
Time on REALTOR.ca
137 days

Building

Bathrooms
Total
5
Interior Features
Basement Features
Unknown
Basement Type
Full (Unknown)
Building Features
Features
Central location
Architecture Style
2 Level
Heating & Cooling
Heating Type
Radiant heat
Parking
Total Parking Spaces
1

Measurements

Square Footage
1632 sqft
Data provided by: Greater Vancouver REALTORS®
Are you interested in touring this listing?
Request a showing

Similar Listings

Fred Choy