We use cookies and other technologies for functionality, security, and to provide you with a personalized experience on our online services. By continuing to use our online services, you agree to our Privacy Policy and Terms of Use. For information on how to adjust your privacy settings, visit our Cookie Policy.
Dismiss
Home QC Greater Montreal Montréal Dorval Strathmore
502 Boul. Graham
Directions Print
502 Boul. Graham $360,000
$360,000
Hide
Favourite

502 Boul. Graham
Dorval, Quebec H9P2B3

MLS® Number: 20222212
4
Bedrooms
4
Bathrooms
-
Square Feet

Listing Description

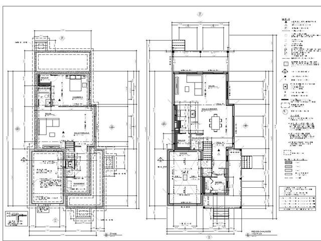
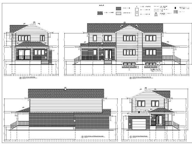
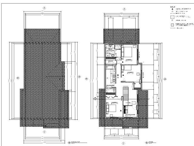
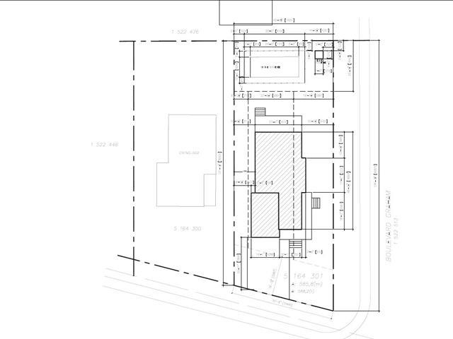
Residential corner lot for sale at 502 Graham Boulevard in Dorval. City-approved plans are in place for a new single-family home featuring four bedrooms, a family room and five bathrooms. The corner exposure offers abundant natural light, strong curb appeal and flexible layout options on a generously sized site. The location is family-oriented and convenient, just minutes to Highways 20 and 520, Dorval Village shopping, parks, schools and public transit, with easy connections across the West Island and toward downtown. Save months on permitting and start building soon after possession. (49106836)

Property Summary

Property Type
Single Family
Building Type
House
Storeys
2
Neighbourhood Name
North
Land Size
585.8 m2
Age Of Building
Age is unknown
Time on REALTOR.ca
85 days

Building

Bathrooms
Total
4
Partial
1
Building Features
Style
Detached
Utilities
Utility Sewer
No sewage system

Rooms

MetricImperial
Main level
Bathroom
Kitchen
Dining room
Living room
Other
Second level
Bathroom
Other
Bedroom
Bedroom
Bedroom
Partial bathroom
Bathroom
Basement
Bedroom
Bathroom
Family room
Living room
Other
Storage

Land

Lot Features
Frontage
40.8 m
Other Property Information
Zoning Type
Residential
Farm Features
Farm Type
Other
Are you interested in touring this listing?
Request a showing

Similar Listings

François Wang