We use cookies and other technologies for functionality, security, and to provide you with a personalized experience on our online services. By continuing to use our online services, you agree to our Privacy Policy and Terms of Use. For information on how to adjust your privacy settings, visit our Cookie Policy.
Dismiss
Home AB Greater Edmonton Division No. 11 Edmonton La Perle
18851 99A AV NW NW
Directions Print
18851 99A AV NW NW $499,900
$499,900
Hide
Favourite

18851 99A AV NW NW
Edmonton, Alberta T5T3M9

MLS® Number: E4458050
6
Bedrooms
4
Bathrooms
1410
Square Feet

Listing Description

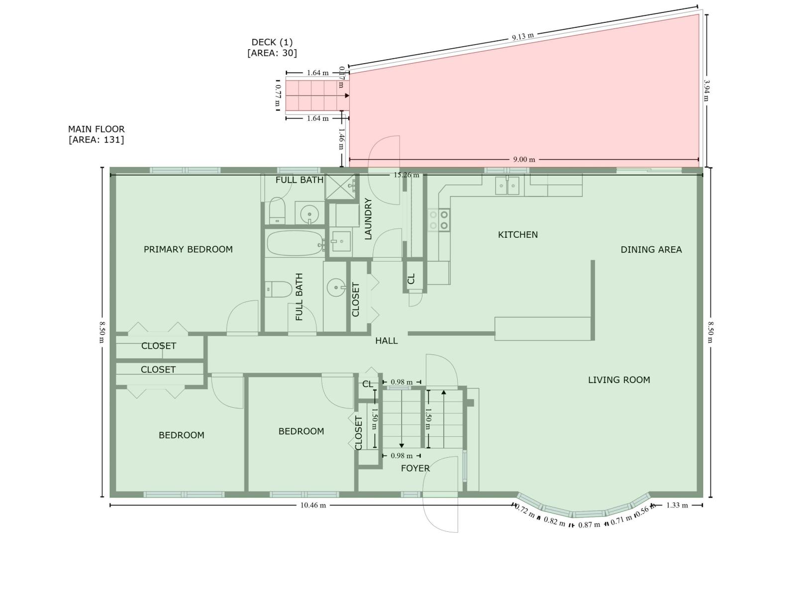
PRIDE OF OWNERSHIP is evident throughout this tastefully updated, fully finished bilevel with SEPARATE ENTRANCE and OVERSIZED double car attached garage on a MASSIVE corner lot! On the main floor you will find over 1400 sq ft of living space, including a massive living room, huge eat-in kitchen, 3 bedrooms, full bath and FULL ensuite in the primary bedroom. Downstairs you have a bright living space with a SECOND KITCHEN, 3 more bedrooms and 2 full baths that is perfect to enjoy with family, friends and guests. Outside you have a SPACIOUS west-facing deck, double car garage, fire pit, RV parking, lots of room for gardening & storage space. New roof, finishings & more! Located near West Edmonton Mall, public transit, and schools with convenient access to the Henday and Whitemud. Make your move today! (33330693)

Property Summary

Property Type
Single Family
Building Type
House
Square Footage
1410 sqft
Neighbourhood Name
La Perle
Title
Freehold
Built in
1983
Parking Type
Attached Garage
Time on REALTOR.ca
86 days

Legal Description

Plan :- 7923032 Block :- 56 Lot :- 14

Building

Bathrooms
Total
4
Interior Features
Appliances Included
Dishwasher, Garage door opener remote(s), Hood Fan, Microwave Range Hood Combo, Oven - Built-In, Washer/Dryer Stack-Up, Refrigerator
Basement Type
Full (Finished)
Building Features
Features
Corner Site, See remarks
Style
Detached
Architecture Style
Bi-level
Structures
Deck, Fire Pit
Heating & Cooling
Heating Type
Forced air
Neighbourhood Features
Amenities Nearby
Golf Course, Playground, Schools, Shopping
Parking
Parking Type
Attached Garage

Measurements

Square Footage
1410 sqft

Rooms

Lower level
Bedroom 4
Bedroom 5
Bedroom 6
Upper Level
Primary Bedroom
Bedroom 2
Bedroom 3

Land

Lot Features
Fencing
Fence
Are you interested in touring this listing?
Request a showing

Similar Listings

Travis Kuhn