We use cookies and other technologies for functionality, security, and to provide you with a personalized experience on our online services. By continuing to use our online services, you agree to our Privacy Policy and Terms of Use. For information on how to adjust your privacy settings, visit our Cookie Policy.
Dismiss
Home ON Greater Hamilton Hamilton Flamborough Waterdown
MAIN LEVEL - 21 MILL STREET N
Directions Print
MAIN LEVEL - 21 MILL STREET N $19.03/square feet
$19/square feet
Hide
Favourite

MAIN LEVEL - 21 MILL STREET N
Hamilton (Waterdown), Ontario L0R2H0

MLS® Number: X12405118

Listing Description

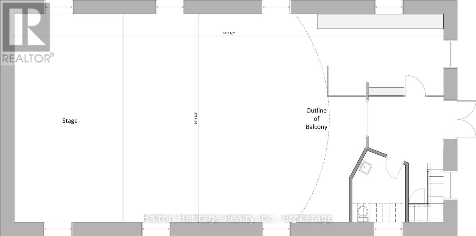
Step into a truly unique commercial opportunity with this 2,541 sq. ft. space located in the front of a beautifully converted stone church circa 1865. Featuring soaring ceilings and a choir loft, this one-of-a-kind property blends historic charm with modern functionality. Zoned C5a, it allows for a wide range of permitted uses including retail, service, commercial, entertainment and more, making it ideal for businesses seeking character, flexibility and visibility. The unit includes 8 dedicated parking spaces, and is situated just steps from bustling local businesses and within walking distance to established residential neighborhoods. Enjoy unbeatable connectivity with easy access to Hwy 403, 407, Hwy 5, and GO/public transit options nearby. Heat and water are included in rent, with tenant responsible for hydro. Don't miss this rare chance to set your business apart in one of the areas most distinctive commercial spaces. Please (41270674)

Location Description

Cross Streets: Dundas Street E. ** Directions: Dundas St E to Mill St N.

Property Summary

Property Type
Retail
Community Name
Waterdown
Land Size
Unit=120.78 x 132 FT
Annual Property Taxes
$8.28
Total Parking Spaces
8
Time on REALTOR.ca
96 days

Building

Heating & Cooling
Cooling
Fully air conditioned
Heating Type
Forced air (Natural gas)
Utilities
Water
Municipal water
Parking
Total Parking Spaces
8

Measurements

Square Footage
2541 sqft

Land

Lot Features
Frontage
120 ft ,9 in
Land Depth
132 ft
Other Property Information
Zoning Description
C5a
Lease Type
Net
Are you interested in touring this listing?
Request a showing

MARCEL LECLERC