We use cookies and other technologies for functionality, security, and to provide you with a personalized experience on our online services. By continuing to use our online services, you agree to our Privacy Policy and Terms of Use. For information on how to adjust your privacy settings, visit our Cookie Policy.
Dismiss
Home MB Greater Winnipeg Division No. 11 Winnipeg Crescentwood
357 Yale Avenue
Directions Print
357 Yale Avenue $1,532,800
$1,532,800
Hide
Favourite

357 Yale Avenue
Winnipeg, Manitoba R3M0L5

MLS® Number: 202522809
5
Bedrooms
3
Bathrooms
2705
Square Feet

Listing Description

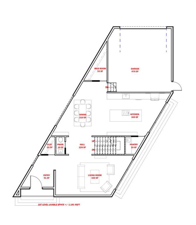
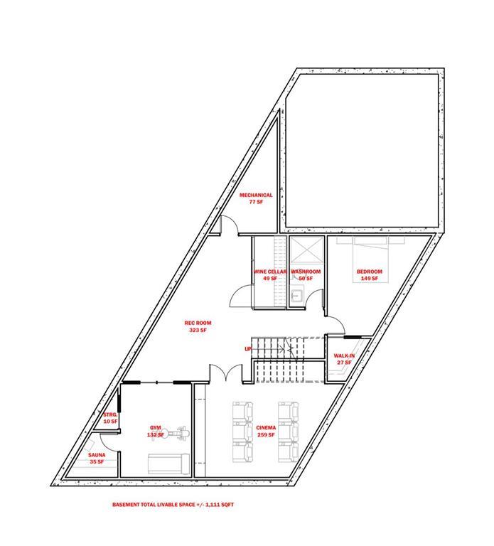
1C//Winnipeg/Dare to dream. If you are someone who loves newly built homes but keep finding yourself being drawn into character neighbourhoods then look no further. Have the best of both worlds at 357 Yale Ave in prestigious old Crescentwood where this to be built masterpiece will surely leave you breathless with its carefully thought design. Boasting over 2,700sf in this two story architectural work of art, not only are you benefiting from the amazing location but there is so much the home has to offer including 5 bedrooms, 3.5 bathrooms, a gym, sauna, wine cellar, and a stunning primary bedroom with a luxurious ensuite bath. The home also showcases an attached double garage with a large mudroom. If you prefer to start from scratch and work a new design then that can be done as well. Whether it s a bungalow, two storey, split level or anything in between, sit with our highly skilled designer to make your dream become a reality with a well thought out plan that is tailored to your needs. Theres no better time then the present, dare to dream, lets make it a reality. (231388300)

Property Summary

Property Type
Single Family
Building Type
House
Storeys
2
Square Footage
2705 sqft
Community Name
Crescentwood
Neighbourhood Name
Crescentwood
Title
Freehold
Land Size
90 x 122
Built in
2025
Annual Property Taxes
$0
Parking Type
Attached Garage
Time on REALTOR.ca
87 days

Building

Bathrooms
Total
3
Partial
1
Interior Features
Appliances Included
Dishwasher, Garage door opener, Garage door opener remote(s), Microwave, Refrigerator, Stove
Flooring
Wall-to-wall carpet, Laminate, Tile, Vinyl Plank, Wood
Building Features
Features
Other, Closet Organizers
Heating & Cooling
Cooling
Central air conditioning
Fireplace Type
Glass Door (Unknown)
Heating Type
High-Efficiency Furnace, Forced air (Natural gas)
Utilities
Utility Sewer
Municipal sewage system
Water
Municipal water
Neighbourhood Features
Amenities Nearby
Public Transit
Parking
Parking Type
Attached Garage

Measurements

Square Footage
2705 sqft

Rooms

MetricImperial
Main level
Kitchen
Living room
Mud room
Dining room
Foyer
Basement
Gym
Recreation room
Bedroom
Upper Level
Primary Bedroom
Laundry room
Bedroom
Bedroom
Bedroom
Den

Land

Lot Features
Frontage
90 ft
Land Depth
122 ft
Are you interested in touring this listing?
Request a showing

Similar Listings

Sean Kirady