We use cookies and other technologies for functionality, security, and to provide you with a personalized experience on our online services. By continuing to use our online services, you agree to our Privacy Policy and Terms of Use. For information on how to adjust your privacy settings, visit our Cookie Policy.
Dismiss
Home ON Lambton County Warwick
420 ERIE STREET
Directions Print
420 ERIE STREET $699,000
Next Open House
Jan
18
$699,000
Hide
Favourite

420 ERIE STREET
Warwick (Watford), Ontario N0M2S0

MLS® Number: X12396408
3
Bedrooms
2
Bathrooms
1500 - 2000
Square Feet

Listing Description

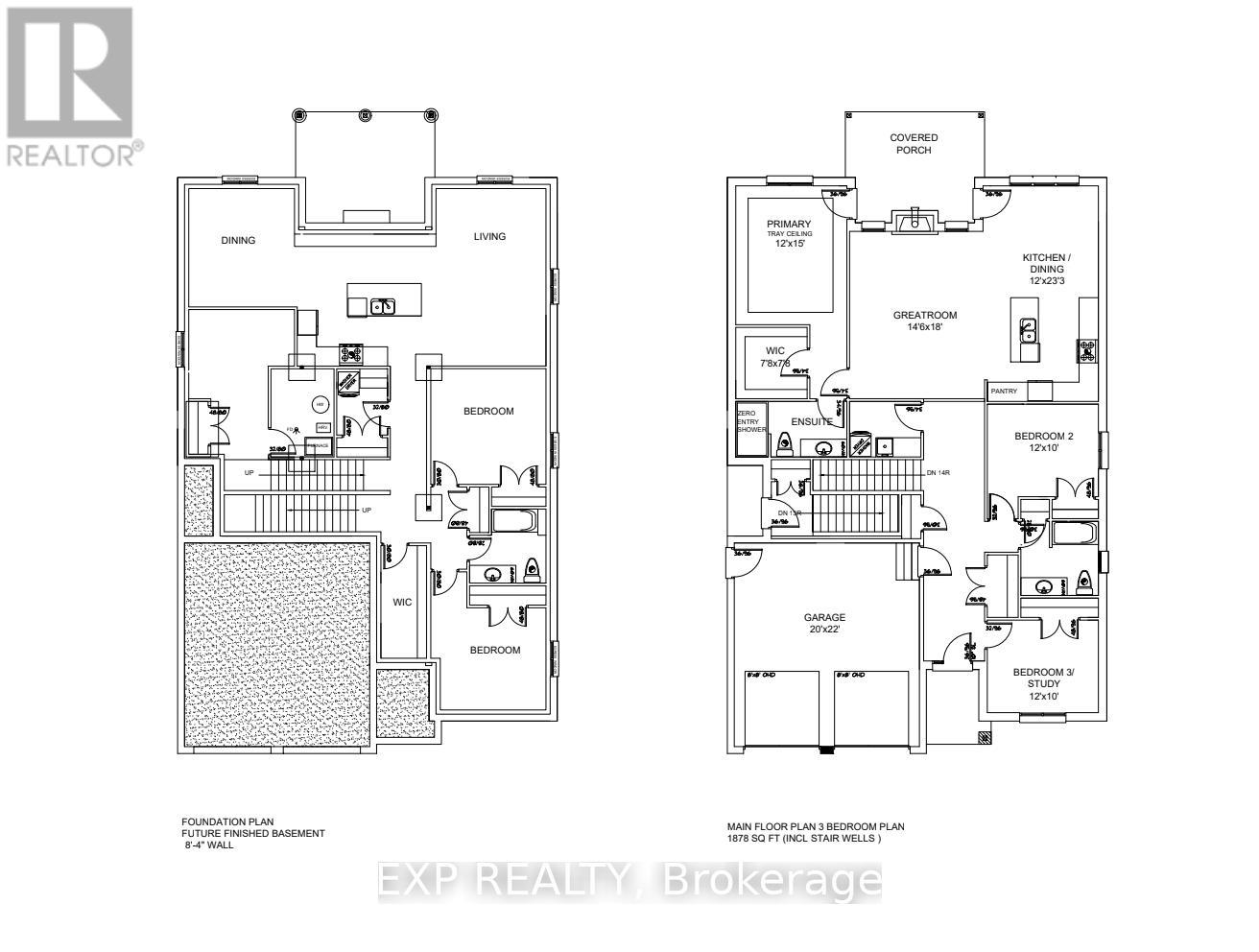
TO BE BUILT - Welcome to the Vivienne, a thoughtfully designed 1,878 sq. ft. bungalow by Branch Homes that combines everyday comfort with modern convenience. This 3-bedroom, 2-bathroom home features an open-concept layout with a bright kitchen that flows into the living area, complete with a cozy gas fireplace, engineered hardwood throughout and access to the covered back deck perfect for entertaining or relaxing outdoors. The eat-in kitchen offers plenty of space for family meals, while the main-floor laundry adds to the easy lifestyle.The primary suite is a true retreat, with a walk-in closet and a spa-inspired ensuite featuring a zero-entry glass shower. Two additional bedrooms and a full bathroom are tucked off on the other side of the home round out the main level. The lower level offers a separate side entrance and is roughed in for a kitchen and bathroom. The floor plans show room for two bedrooms, a living space, and a dining area giving you incredible flexibility for multi-generational living, rental income, or simply making use of a spacious basement that also connects directly to the main floor. Additional features include a concrete driveway and quality finishes throughout, designed with both style and functionality in mind. The Vivienne is a perfect blend of modern living, thoughtful design, and future flexibility. Check out our model at 408 Erie Street, Watford ON currently shown in the photos. (41243578)

Location Description

Cross Streets: Nauvoo Rd. ** Directions: Head south on Main St/Nauvoo Rd/Lambton County Rd 79 S toward McGregor St, Turn right onto Erie St, property will be on the left.

Open Houses

Jan 18
2-4 PM
Add to Calendar

Property Summary

Property Type
Single Family
Building Type
House
Storeys
1
Square Footage
1500 - 2000 sqft
Community Name
Watford
Title
Freehold
Land Size
49.2 x 133 FT|under 1/2 acre
Age Of Building
New building
Annual Property Taxes
$0
Parking Type
Attached Garage, Garage
Time on REALTOR.ca
128 days

Building

Bedrooms
Above Grade
3
Bathrooms
Total
2
Interior Features
Appliances Included
Water Heater - Tankless
Basement Type
Full (Unfinished)
Building Features
Features
Flat site, Sump Pump
Foundation Type
Poured Concrete
Style
Detached
Architecture Style
Bungalow
Building Amenities
Fireplace(s)
Structures
Deck
Heating & Cooling
Cooling
Central air conditioning
Fireplace
1
Heating Type
Forced air (Natural gas)
Utilities
Utility Sewer
Sanitary sewer
Water
Municipal water
Exterior Features
Exterior Finish
Brick, Vinyl siding
Neighbourhood Features
Community Features
Community Centre
Amenities Nearby
Place of Worship
Parking
Parking Type
Attached Garage, Garage
Total Parking Spaces
6

Measurements

Square Footage
1500 - 2000 sqft

Rooms

MetricImperial
Main level
Bedroom
Bedroom 2
Great room
Kitchen
Bedroom 3
Bathroom
Bathroom

Land

Lot Features
Frontage
49 ft ,2 in
Land Depth
133 ft
Other Property Information
Zoning Description
R1
Are you interested in touring this listing?
Request a showing

866-530-7737
519-719-3909

Similar Listings

PAISLEY SMITH