We use cookies and other technologies for functionality, security, and to provide you with a personalized experience on our online services. By continuing to use our online services, you agree to our Privacy Policy and Terms of Use. For information on how to adjust your privacy settings, visit our Cookie Policy.
Dismiss
Home ON St. Catharines - Niagara Niagara Region Thorold Port Robinson West - St. John's - Rural
3471 SCHMON PARKWAY
Directions Print
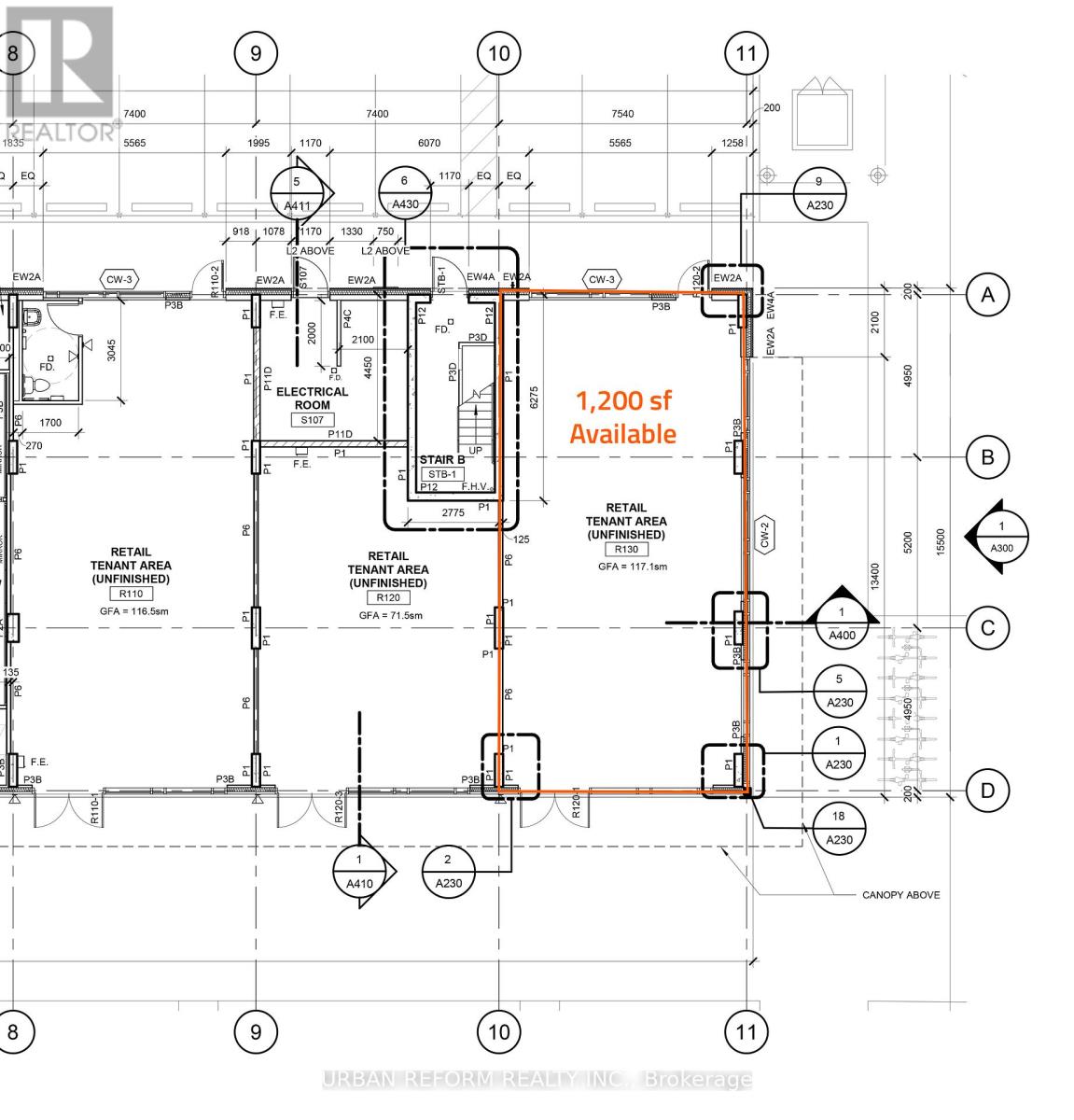
3471 SCHMON PARKWAY $1/square feet
$1/square feet
Hide
Favourite

3471 SCHMON PARKWAY
Thorold (Confederation Heights), Ontario L2V4Y6

MLS® Number: X12395613

Listing Description

Brand new shell unit. Tenant to complete interior fit-out. (41240982)

Location Description

Cross Streets: Sir Isaac Brock Parkway & Schmon Parkway. ** Directions: North of Highway 406 and west of Brock University.

Property Summary

Property Type
Retail
Community Name
558 - Confederation Heights
Land Size
Unit=24.73 x 50.85 FT
Annual Property Taxes
$5
Time on REALTOR.ca
101 days

Building

Heating & Cooling
Cooling
None
Heating Type
No heat
Utilities
Water
Municipal water

Measurements

Square Footage
1200 sqft

Land

Lot Features
Frontage
24 ft ,8 in
Land Depth
50 ft ,10 in
Other Property Information
Zoning Description
Commercial Retail
Are you interested in touring this listing?
Request a showing

TORAN ALISON EGGERT