We use cookies and other technologies for functionality, security, and to provide you with a personalized experience on our online services. By continuing to use our online services, you agree to our Privacy Policy and Terms of Use. For information on how to adjust your privacy settings, visit our Cookie Policy.
Dismiss
Home ON Greater Sudbury Capreol
9 Regional Road 84
Directions Print
9 Regional Road 84 $12/square feet
$12/square feet
Hide
Favourite

9 Regional Road 84
Greater Sudbury, Ontario P0M1H0

MLS® Number: 2124380

Listing Description

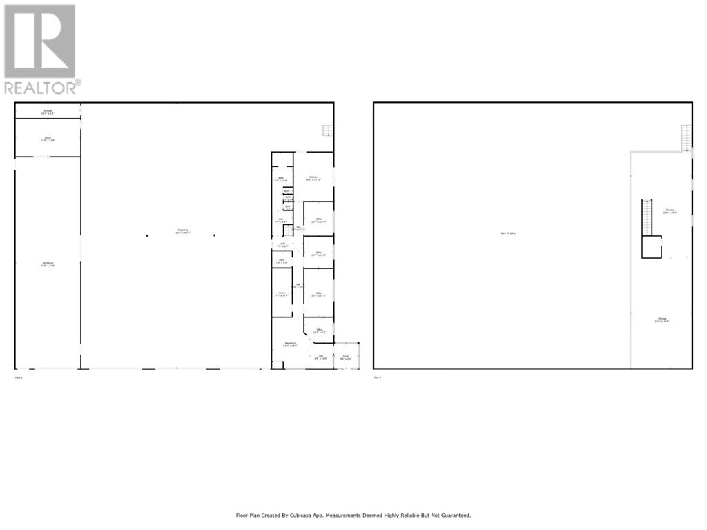
9 Regional Road 84, Capreol. This versatile commercial property offers a 12,000 sq. ft. main office/garage area, a 6,000 sq. ft. accessory building (currently tenanted month-to-month, but available vacant at commencement if required), and approximately 3.5 acres of yard space on a total of 4.85 acres. Zoned C2(2), the site provides flexibility for a wide range of commercial and industrial uses. The property is serviced by municipal water and sewer and includes above-ground fuel storage on-site. Available at $12.00 per sq. ft. fully net, plus tax & CAM(est. $3.66 per sq.ft) and utilities. This is a strong opportunity for businesses requiring a mix of building space and significant yard area. Space available for Lease for February 2026. (30959229)

Property Summary

Property Type
Industrial
Title
Freehold
Land Size
3 - 10 acres
Time on REALTOR.ca
103 days

Building

Building Features
Rental Equipment
Unknown
Utilities
Utility Sewer
Municipal sewage system
Water
Municipal water
Business
Business Type
Industrial (Warehouse)

Land

Other Property Information
Zoning Description
C2(2)
Data provided by: Sudbury Real Estate Board
Are you interested in touring this listing?
Request a showing

705-673-3000
705-673-7894
JUSTIN MUZZATTI