We use cookies and other technologies for functionality, security, and to provide you with a personalized experience on our online services. By continuing to use our online services, you agree to our Privacy Policy and Terms of Use. For information on how to adjust your privacy settings, visit our Cookie Policy.
Dismiss
Home AB Grande Prairie Division No. 19 Richmond Industrial Park
111, 8716 108 Street
Directions Print
111, 8716 108 Street $579,900
$579,900
Hide
Favourite

111, 8716 108 Street
Grande Prairie, Alberta T8V4C7

MLS® Number: A2252987

Listing Description

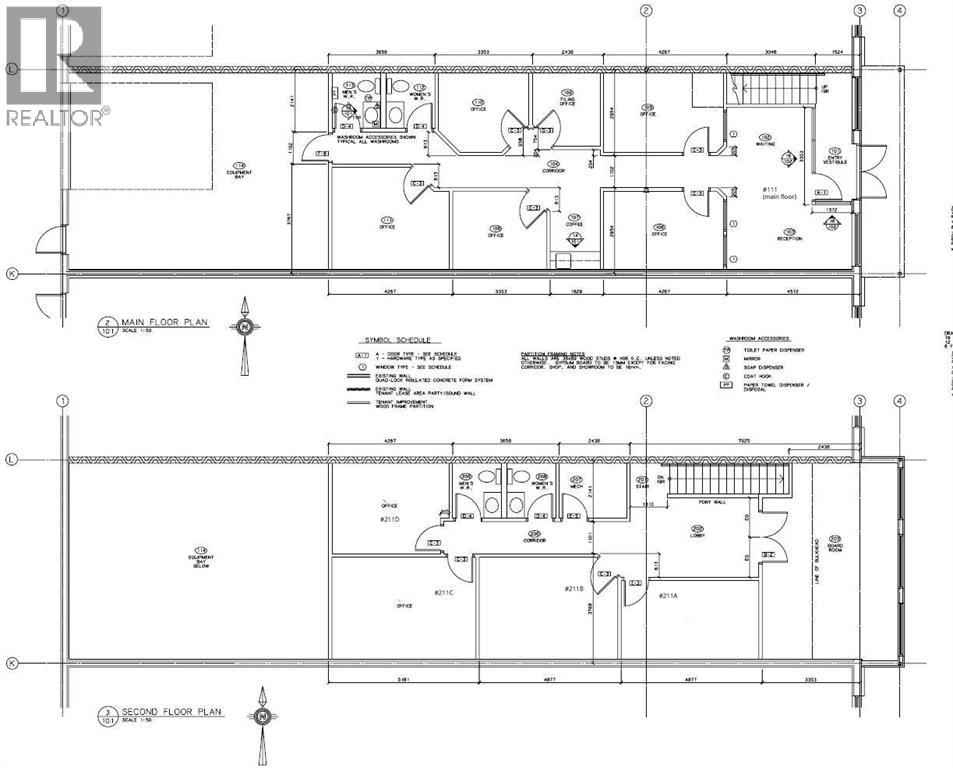
Office Condo Bay with great exposure. Features two floors of premium office space with a rear shop. Main floor office area is 1380 sqft with reception, 5 offices, two bathrooms, small kitchen and storage room. Front vestibule allows separate access upstairs to 1495 sqft of 4 offices, a large bright board room and bathroom. Also, there is a 690 sqft shop area in the rear with an over head door and small mezzanine. Currently there are tenants in two offices upstairs that have access to the board room for $775 per month gross each with two more vacant ones that could be rented, and the back shop area is rented for $1300 gross per month. All 3 current tenants would like to stay if possible. This is a great opportunity to run your office out of the main floor and have your mortgage mostly covered by the other tenants in the building and also allow you the flexibility to grow. (31063010)

Property Summary

Property Type
Office
Building Type
Offices
Community Name
Richmond Industrial Park
Subdivision Name
Richmond Industrial Park
Title
Condominium/Strata
Land Size
Unknown
Built in
2006
Annual Property Taxes
$12,282
Time on REALTOR.ca
103 days

Building

Building Features
Foundation Type
Poured Concrete
Heating & Cooling
Cooling
Central air conditioning
Heating Type
Forced air, (Natural gas)
Utilities
Utility Type
Electricity (Connected), Natural Gas (Connected), Sewer (Connected), Water (Connected)
Utility Sewer
Municipal sewage system
Water
Municipal water
Maintenance or Condo Information
Maintenance Fees
$473.76 Monthly

Measurements

Square Footage
3565 sqft
Total Finished Area
3565 sqft
Exterior Building Size
3565 sqft

Land

Other Property Information
Zoning Description
IB
Lease Type
Gross
Data provided by: Pillar 9™
Are you interested in touring this listing?
Request a showing

Mitch Koll