We use cookies and other technologies for functionality, security, and to provide you with a personalized experience on our online services. By continuing to use our online services, you agree to our Privacy Policy and Terms of Use. For information on how to adjust your privacy settings, visit our Cookie Policy.
Dismiss
Home BC Greater Victoria Capital Victoria Burnside
A 2001 Douglas St
Directions Print
A 2001 Douglas St $19/square feet
$19/square feet
Hide
Favourite

A 2001 Douglas St
Victoria, British Columbia V8T4K9

MLS® Number: 1011159

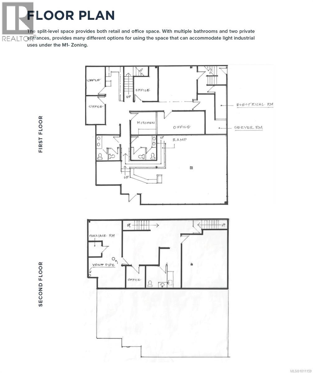
Listing Description

A great opportunity to lease a high profile space on Douglas Street, on the perifery of Downtown. This 4500 square foot space has excellent visibility and signage opportunities on Douglas Street. Large windows on the ground floor bring natural light into the open plan ground floor area. The property benefits from 4 designated parking spaces, with more available if needed. The space is split over two levels, with two private entrances and offers Industrial/Hightech/Retail and office space that can cater to a wide variety of businesses under the M1- Light Industrial Zoning which includes but not limited to: light industries, retail, high-tech, retail with accessory office, professional services, veterinarian, wholesale, and churches/clubs/schools. The space is vacant and easy to view. This property represents a great opportunity to secure high-visibility space. (29751627)

Property Summary

Property Type
Industrial
Neighbourhood Name
Downtown
Total Parking Spaces
4
Time on REALTOR.ca
127 days

Building

Maintenance or Condo Information
Maintenance Management Company
Torrent Real Estate Services Inc.
Parking
Total Parking Spaces
4

Measurements

Exterior Building Size
4500 sqft

Land

Other Property Information
Zoning Type
Unknown
Data provided by: Victoria Real Estate Board
Are you interested in touring this listing?
Request a showing

David Cayo