We use cookies and other technologies for functionality, security, and to provide you with a personalized experience on our online services. By continuing to use our online services, you agree to our Privacy Policy and Terms of Use. For information on how to adjust your privacy settings, visit our Cookie Policy.
Dismiss
Home BC Columbia-Shuswap Sicamous
222 Temple Street Unit# 3
Directions Print
222 Temple Street Unit# 3 $609,000
$609,000
Hide
Favourite

222 Temple Street Unit# 3
Sicamous, British Columbia V0E2V0

MLS® Number: 10358263
3
Bedrooms
3
Bathrooms
1486
Square Feet

Listing Description

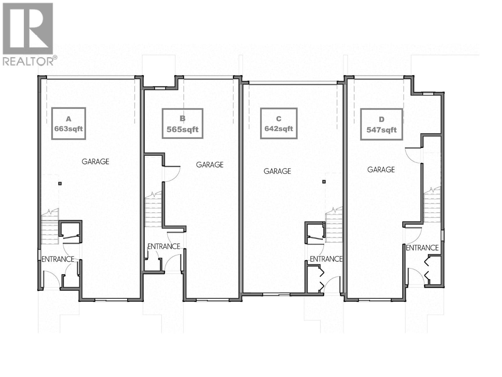
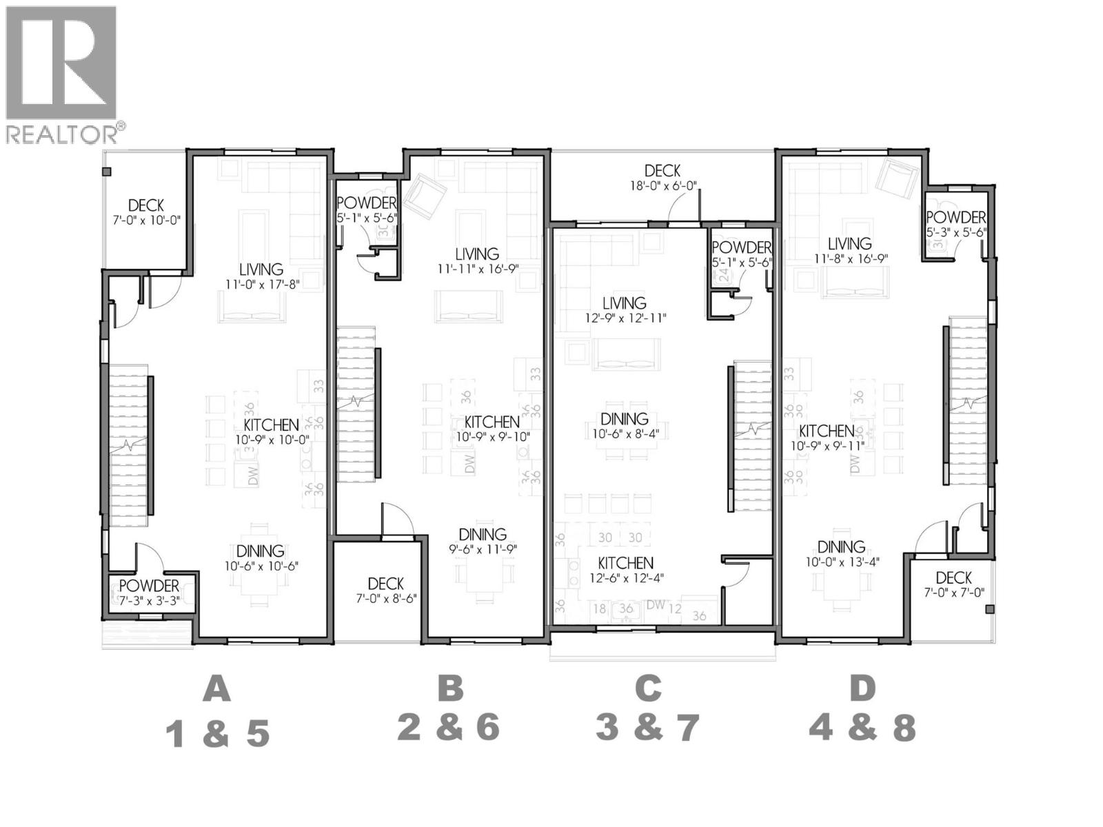
Welcome to Unit 3 at MaraVista— This layout features the largest outdoor deck in the complex, measuring 13’ x 6’, perfect for entertaining & relaxing. Inside this unit is the only floorplan offering a chef-style kitchen with three-sided counter space, a walk-in pantry, quartz countertops, white cabinetry, & matte black hardware—ideal for those who love to cook and host. The open-concept main floor has enhancements like an electric fireplace & powder room, Upstairs, you’ll find three full-size bedrooms, including a primary suite with a generous walk-in closet & private ensuite. A second full bathroom & laundry are also located on the upper level for convenience. Interior finishes include 9’ ceilings, neutral vinyl plank flooring, enhanced soundproofing, & soft white walls and trim that suit a variety of décor styles. The oversized garage is located on the lower entry level, measuring approximately 642 sq.ft. with an 8’ overhead door—39’ deep by 15’ wide (exterior)— excellent space for boat storage, a home gym, or recreational gear. Built with Hardie Plank siding, energy-efficient windows, and high-efficiency mini-split heating and cooling, MaraVista blends comfort with efficiency. Located at 222 Temple Street, just a short walk to downtown Sicamous, the beach, schools, & local amenities. Pet-friendly (with size restrictions) & limited to long-term rentals only. A $5,000 appliance credit is available for the first four units sold. Estimated occupancy is January 2026. (39060687)

Property Summary

Property Type
Single Family
Building Type
Row / Townhouse
Storeys
3
Square Footage
1486 sqft
Community Name
MaraVista
Neighbourhood Name
Sicamous
Title
Strata
Land Size
under 1 acre
Built in
2025
Annual Property Taxes
$0
Parking Type
Attached Garage (2)
Time on REALTOR.ca
129 days

Building

Bathrooms
Total
3
Partial
1
Interior Features
Flooring
Vinyl
Building Features
Features
Balcony, One Balcony
Style
Attached
Architecture Style
Contemporary
Building Amenities
Clubhouse
Structures
Clubhouse
Heating & Cooling
Cooling
Heat Pump
Fireplace
1
Fireplace Type
Unknown (Electric)
Heating Type
(Electric), Heat Pump
Utilities
Utility Sewer
Municipal sewage system
Water
Municipal water
Exterior Features
Roof Style
Asphalt shingle
Exterior Finish
Other
Neighbourhood Features
Community Features
Pets Allowed, Rentals Allowed
Maintenance or Condo Information
Maintenance Fees
$356.11 Monthly
Maintenance Fees Include
Reserve Fund Contributions, Insurance, Ground Maintenance, Property Management, Other, See Remarks, Recreation Facilities, Sewer, Water
Parking
Parking Type
Attached Garage (2)
Total Parking Spaces
3

Measurements

Square Footage
1486 sqft

Rooms

MetricImperial
Second level
Other
Partial bathroom
Living room
Dining room
Kitchen
Third level
Bedroom
Bedroom
Full bathroom
Other
Full ensuite bathroom
Primary Bedroom

Land

Lot Features
Fencing
Fence
View
Mountain view
Are you interested in touring this listing?
Request a showing

Similar Listings

Jessica Klikach