We use cookies and other technologies for functionality, security, and to provide you with a personalized experience on our online services. By continuing to use our online services, you agree to our Privacy Policy and Terms of Use. For information on how to adjust your privacy settings, visit our Cookie Policy.
Dismiss
Home AB Division No. 10 Kitscoty
4907 47 StreetClose
Directions Print
4907 47 StreetClose $393,000
$393,000
Hide
Favourite

4907 47 StreetClose
Kitscoty, Alberta T0B2P0

MLS® Number: A2243282
2
Bedrooms
2
Bathrooms
1077
Square Feet

Listing Description

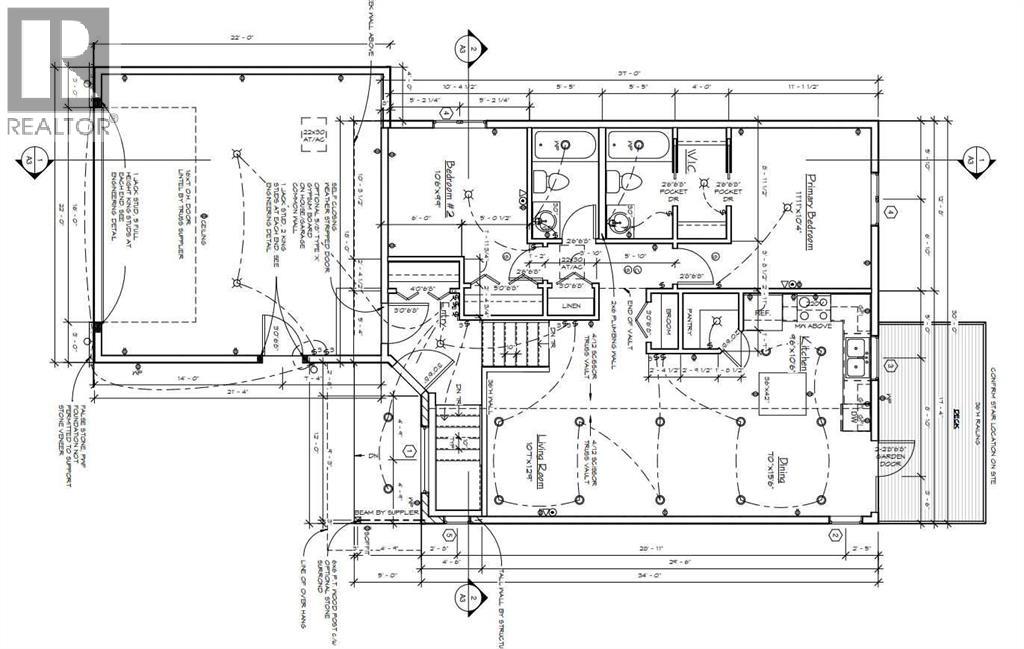
NOW PRE-SELLING One of the best opportunities in years- the most affordable opportunity to own new home in the Lloydminster and area marketplace. A short commute to the small community of Kitscoty provides HUGE opportunity to get into a new home at a substantial savings to the buyer. Kitscoty is a bustling community with all the services you are looking for in a place to call home... grocery/gas, pizza place, restaurants, specialty food/giftware business, enthusiastic hockey community, elementary/high schools, gold course... plus, so much more. You can literally be at the west side Tim Hortons in Lloydminster in under 15 minutes. Located on the TransCanada, the divided highway between Kitscoty and Lloydminster makes commuting to work a breeze. his 1077 square foot home features ICF foundation, large open concept living space, walk in pantry, two bedrooms on the main floor and 2 bathrooms on the main floor, concrete driveway, 22' by 22' attached garage plus so much more- This pre-sold opportunity is perfect for being able to choose your own finishing and color combinations for interior finish and exterior appeal. (30897534)

Property Summary

Property Type
Single Family
Building Type
House
Square Footage
1077 sqft
Community Name
Kitscoty
Subdivision Name
Kitscoty
Title
Freehold
Land Size
5659 sqft|4,051 - 7,250 sqft
Built in
2025
Annual Property Taxes
$0
Parking Type
Concrete, Attached Garage (2)
Time on REALTOR.ca
218 days

Building

Bedrooms
Above Grade
2
Bathrooms
Total
2
Partial
0
Interior Features
Appliances Included
Garage door opener
Flooring
Vinyl Plank
Basement Type
Full (Unfinished)
Building Features
Foundation Type
See Remarks
Style
Detached
Architecture Style
Bi-level
Construction Material
Wood frame
Structures
None
Heating & Cooling
Cooling
None
Heating Type
Forced air, (Natural gas)
Exterior Features
Exterior Finish
Vinyl siding
Parking
Parking Type
Concrete, Attached Garage (2)
Total Parking Spaces
4

Measurements

Square Footage
1077 sqft
Total Finished Area
1077 sqft

Rooms

MetricImperial
Main level
Primary Bedroom
4pc Bathroom
4pc Bathroom
Bedroom
Kitchen
Dining room
Living room

Land

Lot Features
Fencing
Not fenced
Frontage
12.94 m
Land Depth
32 m
Other Property Information
Zoning Description
Residential
Data provided by: Pillar 9™
Are you interested in touring this listing?
Request a showing

Similar Listings

Lane Columbine