We use cookies and other technologies for functionality, security, and to provide you with a personalized experience on our online services. By continuing to use our online services, you agree to our Privacy Policy and Terms of Use. For information on how to adjust your privacy settings, visit our Cookie Policy.
Dismiss
Home NL Division No. 1 Division No. 1, Subdivision A
1 Main Road
Directions Print
1 Main Road $400,000
$400,000
Hide
Favourite

1 Main Road
Bellevue, Newfoundland & Labrador A0B1B0

MLS® Number: 1287839

Listing Description

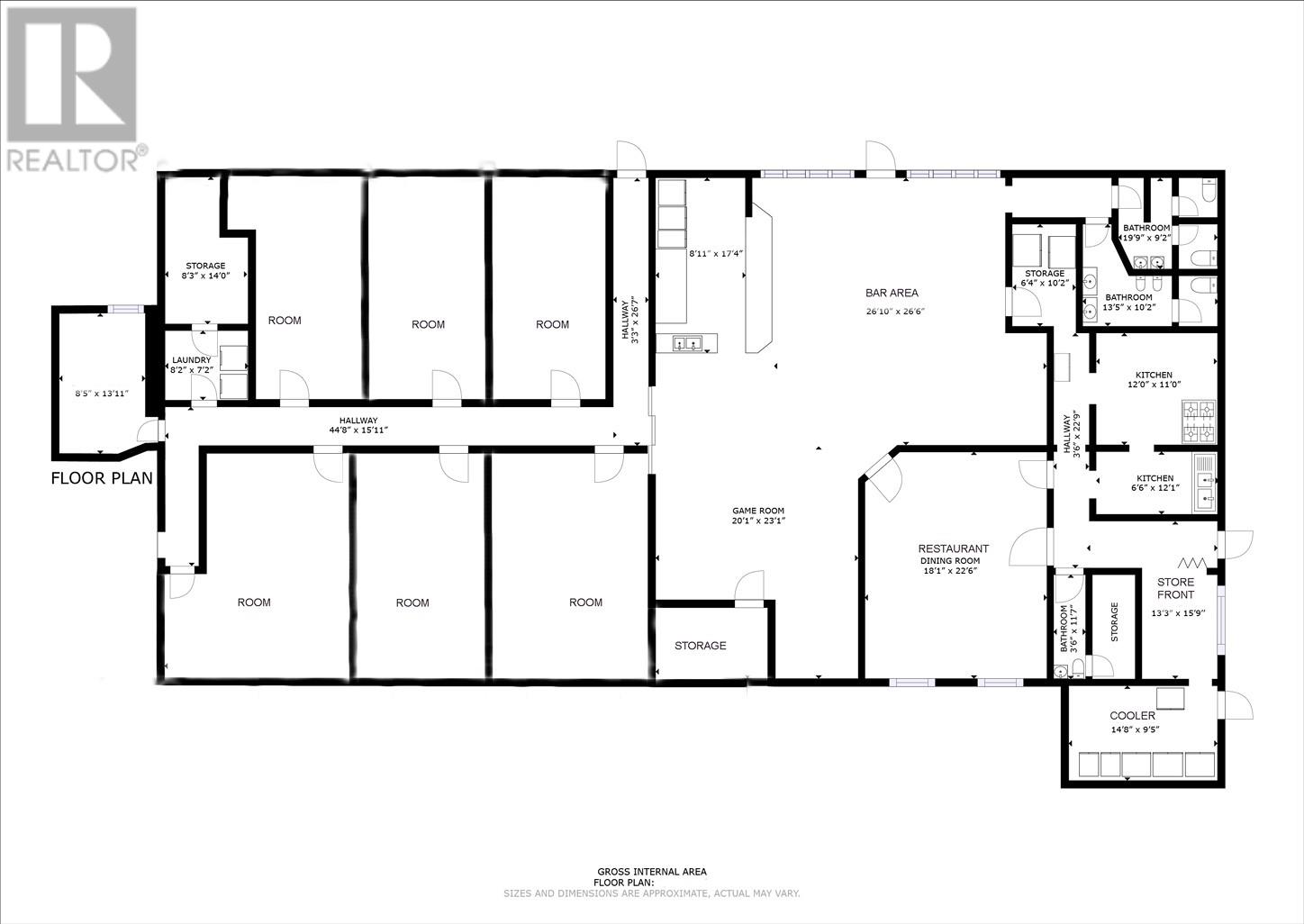
Discovering this incredible commercial property situated on Main Road in Bellevue. This spacious building spans 5500 square feet and includes a full-service restaurant, a bustling nightclub and bar, six mini suites, and a gas bar making it an exceptional opportunity. Each of the seven mini suite hotels offers around 350 square feet of space, complete with private bathrooms for comfort and privacy. The prime location on Main Road ensures high visibility and foot traffic, ideal for attracting customers. (29893338)

Property Summary

Property Type
Business
Building Type
Other
Title
Freehold
Land Size
4,051 - 7,250 sqft
Annual Property Taxes
$0
Time on REALTOR.ca
162 days

Building

Interior Features
Flooring
Mixed Flooring
Building Features
Present Use
Other, Special purpose, Motel / Hotel, Restaurant
Building Amenities
Laundry Facility
Rental Equipment
None
Heating & Cooling
Heating Type
Heat Pump, (Electric)
Business
Business Type
Accommodation (Hotel), Other (General commercial), Restaurant (Restaurant), Arts and Entertainment (Entertainment)

Measurements

Square Footage
5500 sqft

Land

Other Property Information
Access
Year-round access
Zoning Description
COMM
Data provided by: Newfoundland & Labrador Association of REALTORS®
Are you interested in touring this listing?
Request a showing

709-687-5505
709-738-6201
REALTOR® Website
WAYNE HANLON