We use cookies and other technologies for functionality, security, and to provide you with a personalized experience on our online services. By continuing to use our online services, you agree to our Privacy Policy and Terms of Use. For information on how to adjust your privacy settings, visit our Cookie Policy.
Dismiss
Home ON United Counties of Prescott and Russell The Nation
940 KATIA STREET
Directions Print
940 KATIA STREET $735,800
$735,800
Hide
Favourite

940 KATIA STREET
The Nation, Ontario K0A2M0

MLS® Number: X12272241
3 + 1
Bedrooms
4
Bathrooms
1500 - 2000
Square Feet

Listing Description

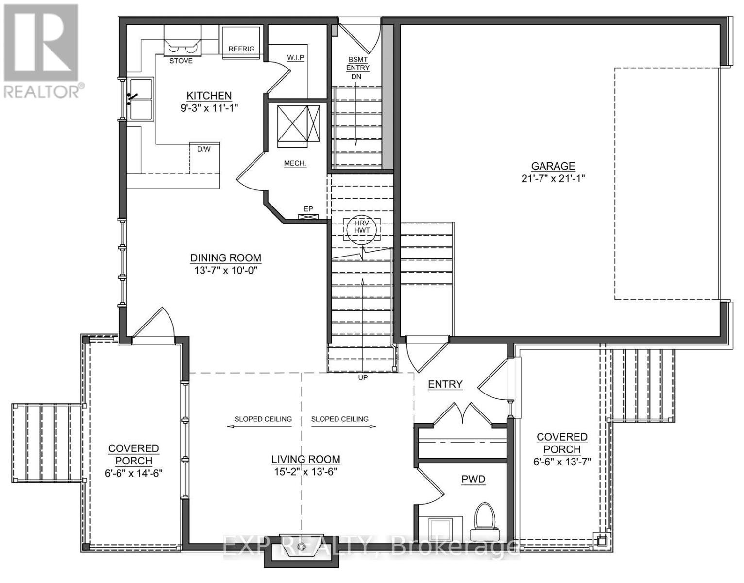
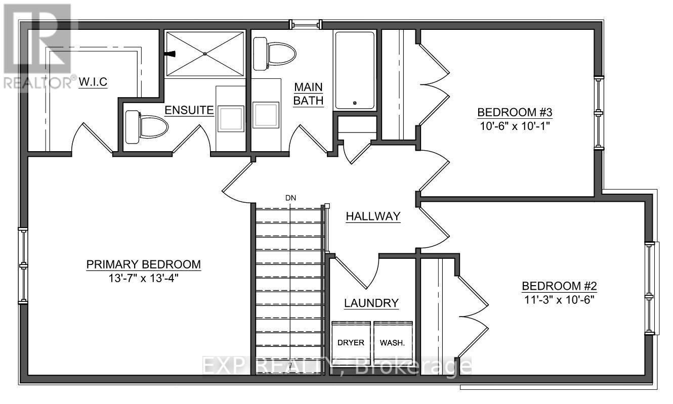
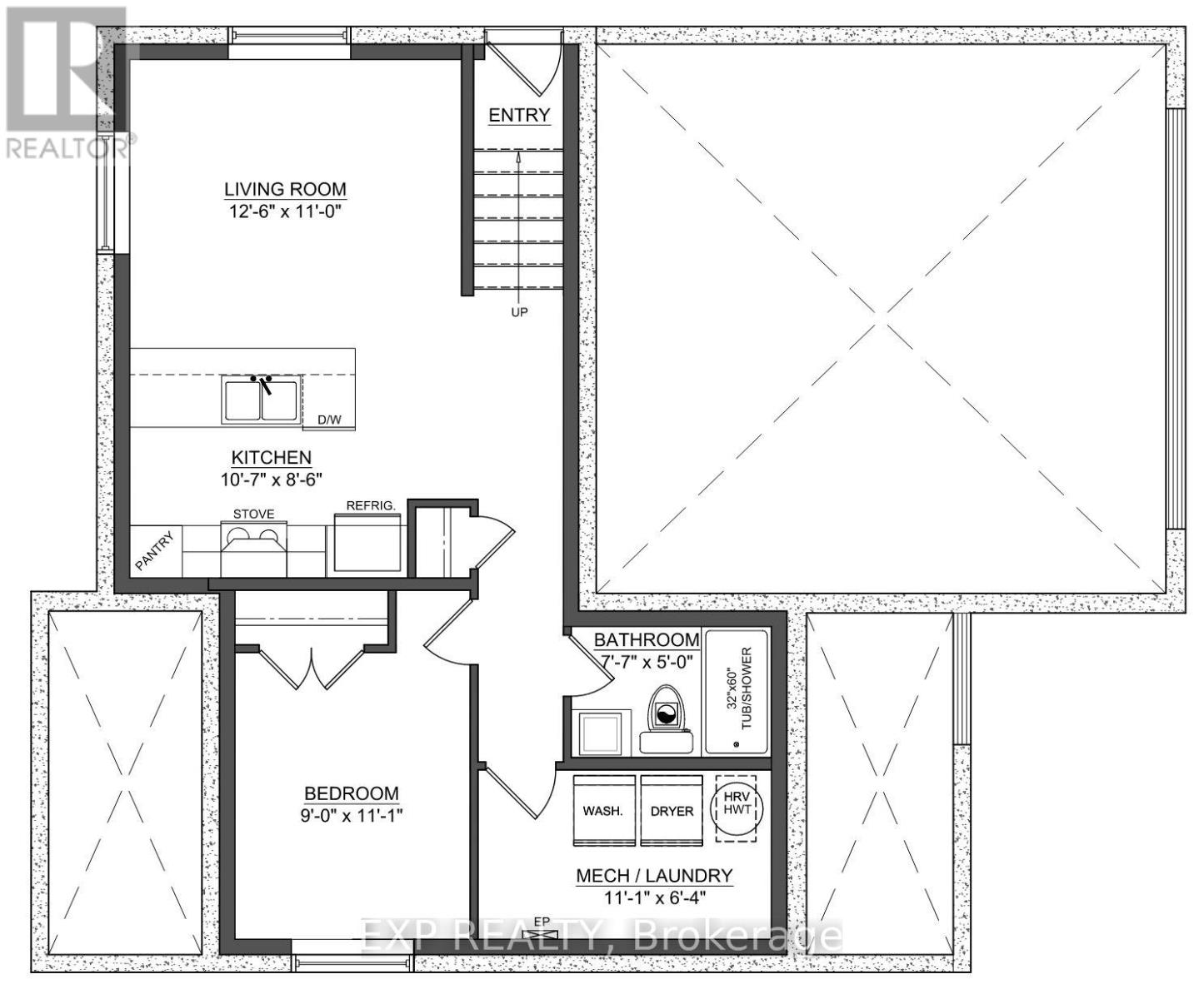
OPEN HOUSE December 18th at 4:00pm - 6:00pm 63 Chateauguay Street, Embrun. Welcome to the Emma a beautifully designed 2-storey home offering 1,555 square feet of smart, functional living space. This 3-bedroom, 2.5-bath layout is ideal for families or anyone who values efficient, stylish living. The open-concept main floor is filled with natural light, and the garage is conveniently located near the kitchen perfect for easy grocery hauls straight to the pantry. Upstairs, the spacious primary suite features a walk-in closet and private ensuite, creating a relaxing retreat at the end of the day. Every inch of the Emma is thoughtfully laid out to blend comfort, convenience, and modern design. What truly sets this model apart is its fully legal, separate metered basement unit, complete with a separate 1-bedroom layout and 4-piece bathroom. Whether you're looking to generate rental income, accommodate extended family, or create a private guest space, this built-in secondary dwelling offers flexibility and long-term value. Constructed by Leclair Homes, a trusted family-owned builder known for exceeding Canadian Builders Standards. Specializing in custom homes, two-storeys, bungalows, semi-detached homes, and now offering fully legal secondary dwellings with rental potential in mind, Leclair Homes brings detail-driven craftsmanship and long-term value to every project. (40851155)

Location Description

Cross Streets: Mayer. ** Directions: From Mayer, Turn right on katia.

Property Summary

Property Type
Multi-family
Building Type
Duplex
Storeys
2
Square Footage
1500 - 2000 sqft
Community Name
616 - Limoges
Land Size
45 x 109 FT
Age Of Building
New building
Annual Property Taxes
$0
Parking Type
Attached Garage, Garage
Time on REALTOR.ca
163 days

Building

Bedrooms
Above Grade
3
Below Grade
1
Bathrooms
Total
4
Partial
1
Interior Features
Appliances Included
Water Heater
Basement Features
Apartment in basement
Basement Type
Full
Building Features
Features
In-Law Suite
Foundation Type
Concrete
Building Amenities
Separate Electricity Meters
Heating & Cooling
Cooling
None
Heating Type
Forced air (Natural gas)
Utilities
Utility Type
Electricity (Installed), Sewer (Installed)
Utility Sewer
Sanitary sewer
Water
Municipal water
Exterior Features
Exterior Finish
Stone, Vinyl siding
Parking
Parking Type
Attached Garage, Garage
Total Parking Spaces
6

Measurements

Square Footage
1500 - 2000 sqft

Rooms

MetricImperial
Main level
Kitchen
Living room
Dining room
Primary Bedroom
Bedroom 2
Bedroom 3

Land

Lot Features
Frontage
45 ft
Land Depth
109 ft
Other Property Information
Zoning Description
Residential
Data provided by: Ottawa Real Estate Board
Are you interested in touring this listing?
Request a showing

Similar Listings

Ronald Jr. McComber-Rozon