We use cookies and other technologies for functionality, security, and to provide you with a personalized experience on our online services. By continuing to use our online services, you agree to our Privacy Policy and Terms of Use. For information on how to adjust your privacy settings, visit our Cookie Policy.
Dismiss
Home ON Greater London Middlesex County London Highbury
1500 MAX BROSE DRIVE
Directions Print
1500 MAX BROSE DRIVE $14/square feet
$14/square feet
Hide
Favourite

1500 MAX BROSE DRIVE
London South (South BB), Ontario N6N1P7

MLS® Number: X12243781

Listing Description

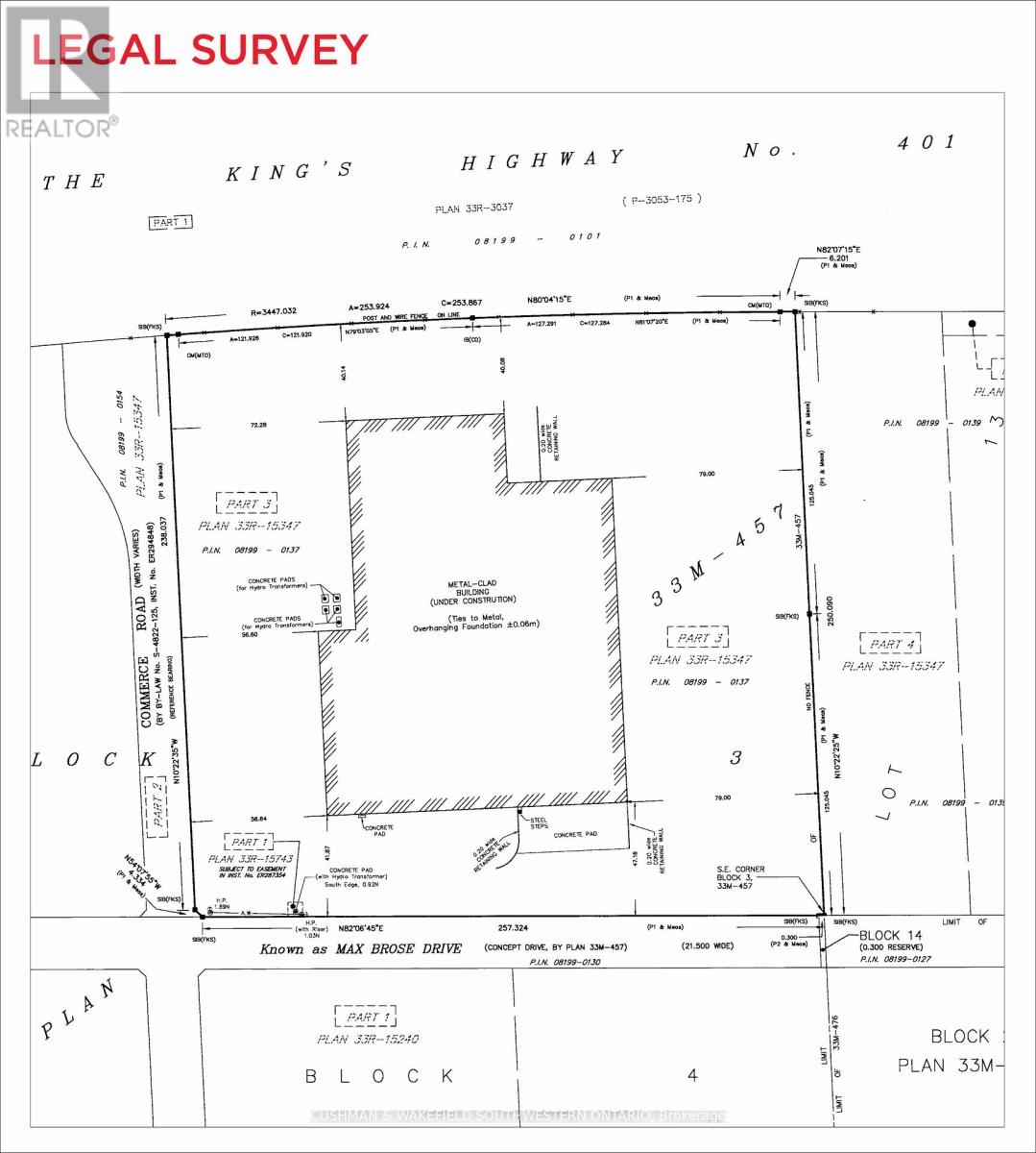
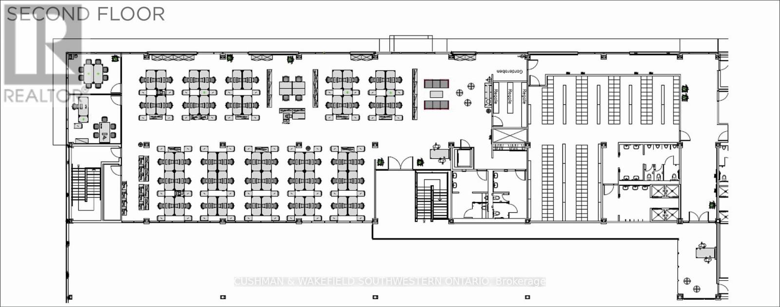
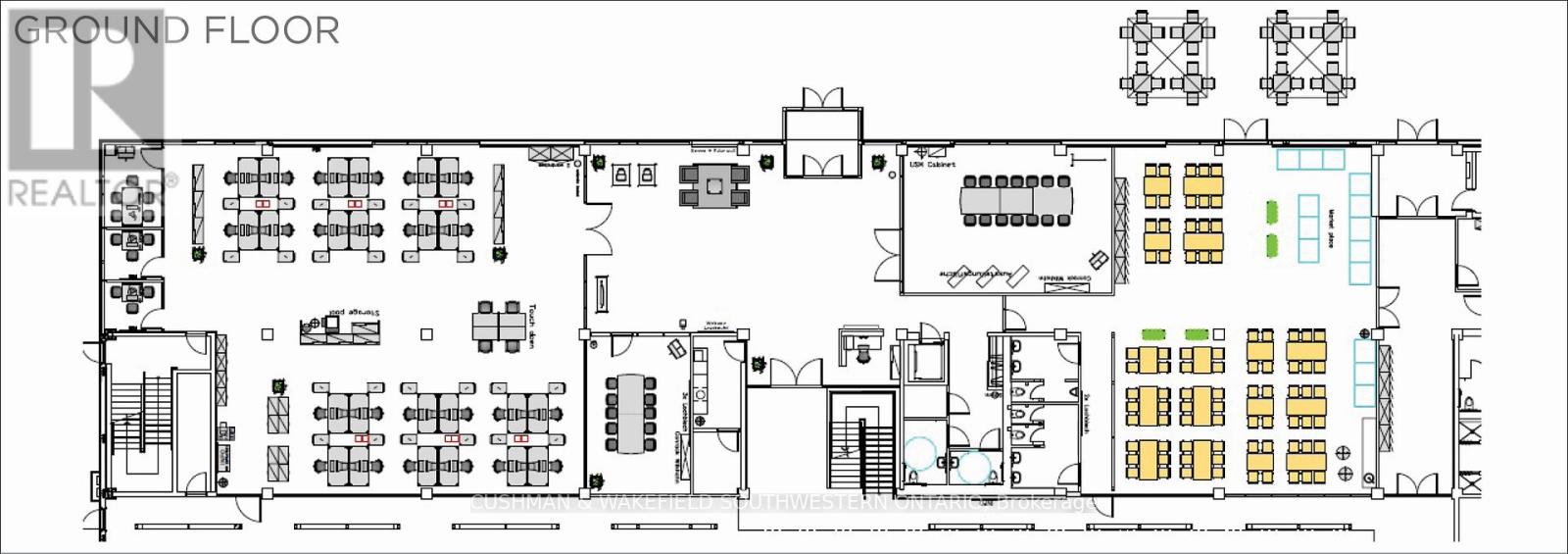
PREMIUM CLASS A INDUSTRIAL FACILITY FOR LEASE. Impeccably maintained Class A industrial facility offering approximately 162,000 square feet of versatile space for lease. This property is strategically positioned on 31.798-acre parcel with outstanding visibility and access to Highway 401. PROPERTY HIGLIGHTS: Clear Heights: 21'5"-33' throughout the facility. Loading: 7 truck-level doors. Power: 3000 amp 600 volt electrical service accommodating heavy manufacturing and high-intensity operations. Strategic Location: Prime Highway 401 frontage providing exceptional visibility and transportation advantages. Additional Rent estimated at $4 PSF. This exceptional offering represents a rare opportunity to secure premium industrial space combining state-of-the-art specifications, strategic accessibility, and long-term growth potential in a highly sought-after location. (40761398)

Location Description

Cross Streets: Max Brose Drive and Commerce Rd. ** Directions: Just north of Wilton Grove Rd.

Property Summary

Property Type
Industrial
Building Type
Multi-Tenant Industrial
Community Name
South BB
Land Size
15.969 ac
Annual Property Taxes
$374,763.40
Time on REALTOR.ca
178 days

Building

Building Features
Features
Irregular lot size, Elevator
Heating & Cooling
Cooling
Partially air conditioned
Heating Type
Other
Utilities
Water
Municipal water
Business
Business Type
Manufacturing (Manufacturing)

Measurements

Square Footage
162000 sqft

Land

Lot Features
Frontage
860 ft ,8 in
Land Depth
822 ft ,7 in
Other Property Information
Zoning Description
LI1 & LI2
Lease Type
Net
Are you interested in touring this listing?
Request a showing

ANDREW JOHNSON