We use cookies and other technologies for functionality, security, and to provide you with a personalized experience on our online services. By continuing to use our online services, you agree to our Privacy Policy and Terms of Use. For information on how to adjust your privacy settings, visit our Cookie Policy.
Dismiss
Home ON Tillsonburg Oxford County
11 SYCAMORE DRIVE
Directions Print
More Photos + 2
11 SYCAMORE DRIVE $749,900
Price Change on 12/03/2025
Next Open House
Dec
13
$749,900
-$50,000
$799,900
Hide
Favourite

11 SYCAMORE DRIVE
Tillsonburg, Ontario N4G5S3

MLS® Number: X12228095
1 + 2
Bedrooms
3
Bathrooms
1100 - 1500
Square Feet

Listing Description

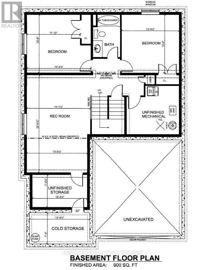
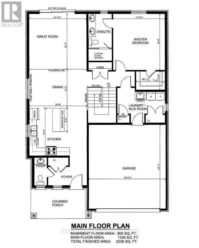
Discover the perfect blend of luxury and comfort in this stunning custom bungalow, nestled on a spacious 52' lot in Tillsonburg's prestigious new home subdivision. Built by a renowned quality home builder Trevalli Homes. This move-in ready gem features a welcoming covered front porch that invites you inside. Step into a breathtaking main floor adorned with 9 ceiling, kitchen, great room, dinette, and hallway. The gourmet kitchen is a chef's dream, boasting an Island with breakfast bar, granite counter tops, and seamless transitions to the stylish powder room and en-suite that features a frame-less glass shower. The true highlight is the finished basement, offering a spacious rec room, additional bathroom, and two cozy bedrooms perfect for guests or family. This meticulously crafted home is priced to sell, so don't miss your chance to make it yours before it's gone! (40712358)

Location Description

Quartertown Line, William St.

Open Houses

Dec 13
1-4 PM
Dec 14
1-4 PM
Add to Calendar

Property Summary

Property Type
Single Family
Building Type
House
Storeys
1
Square Footage
1100 - 1500 sqft
Community Name
Tillsonburg
Title
Freehold
Land Size
52 x 115 FT
Age Of Building
New building
Annual Property Taxes
$0
Parking Type
Attached Garage, Garage
Time on REALTOR.ca
178 days

Building

Bedrooms
Above Grade
1
Below Grade
2
Bathrooms
Total
3
Partial
1
Interior Features
Basement Type
Full (Partially finished)
Building Features
Foundation Type
Poured Concrete
Style
Detached
Architecture Style
Bungalow
Rental Equipment
Water Heater
Heating & Cooling
Cooling
Central air conditioning
Heating Type
Forced air (Natural gas)
Utilities
Utility Sewer
Sanitary sewer
Water
Municipal water
Exterior Features
Exterior Finish
Brick, Vinyl siding
Parking
Parking Type
Attached Garage, Garage
Total Parking Spaces
4

Measurements

Square Footage
1100 - 1500 sqft

Rooms

MetricImperial
Main level
Living room
Dining room
Kitchen
Bedroom
Basement
Bedroom 2
Bedroom 3
Recreational, Games room

Land

Lot Features
Frontage
52 ft
Land Depth
115 ft
Are you interested in touring this listing?
Request a showing

Similar Listings

RITU VERMA