We use cookies and other technologies for functionality, security, and to provide you with a personalized experience on our online services. By continuing to use our online services, you agree to our Privacy Policy and Terms of Use. For information on how to adjust your privacy settings, visit our Cookie Policy.
Dismiss
Home SK Division No. 11 Last Mountain Valley No. 250
78 Sunset Acres ROAD
Directions Print
78 Sunset Acres ROAD $528,800
$528,800
Hide
Favourite

78 Sunset Acres ROAD
Last Mountain Valley RM No. 250, Saskatchewan S0G0Z0

MLS® Number: SK009602
2
Bedrooms
1
Bathrooms
1092
Square Feet

Listing Description

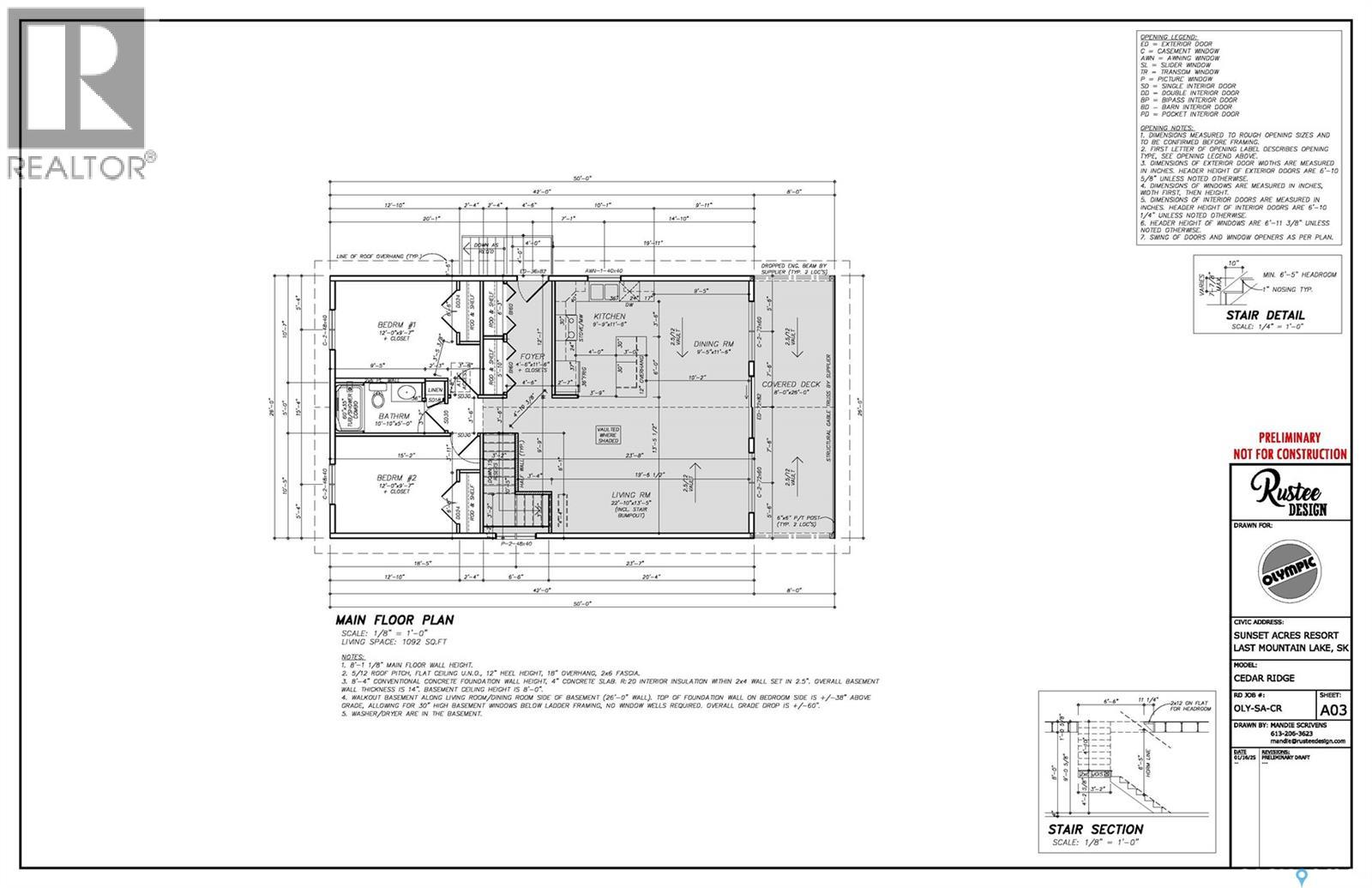
Offered at $528,800 this four-season Marina Lot bungalow is now ready for possession. You still have time to enjoy some summer at the lake this year! The price is plus GST and PST. It is possible the house will qualify for both a GST and PST reduction. Located at Sunset Acres Resort on the east shore of Last Mountain Lake, this development features a marina, 120’ concrete boat launch, a tree planting program, and a large beach area. The 1092 sq. ft. main floor features 2 bedrooms, 1 bathroom, and a huge open living space. The kitchen provides plenty of storage space. The waterfront side of the home features an impressive covered deck for a deck off of the main living space. Large windows provide sweeping views of the marina and lake beyond. This home will sit on a full concrete walk-out basement, with rough-in plumbing and ready for your personal development touch. There is plenty of space for additional bedrooms, a games room, office space, movie room, or whatever your lifestyle requires. A hi-efficient forced air natural gas furnace and water heater complete this level. With a large lot, 75’ x 269’ in size, there is plenty of room for a future garage. https://sunsetacres.com/ Contact your REALTOR® today for more information. (28488541)

Property Summary

Property Type
Single Family
Building Type
House
Storeys
1
Square Footage
1092 sqft
Neighbourhood Name
Last Mountain Lake
Subdivision Name
Sunset Acres Resort
Title
Freehold
Land Size
0.46 ac
Built in
2025
Annual Property Taxes
$1,559
Parking Type
None, Gravel, Parking Space(s) (4)
Time on REALTOR.ca
179 days

Building

Bathrooms
Total
1
Interior Features
Basement Features
Walk out
Basement Type
Full (Unfinished)
Building Features
Features
Rectangular, Recreational
Architecture Style
Bungalow
Heating & Cooling
Heating Type
Forced air, (Natural gas)
Parking
Parking Type
None, Gravel, Parking Space(s) (4)

Measurements

Square Footage
1092 sqft

Rooms

MetricImperial
Main level
Foyer
Kitchen
Dining room
Living room
Bedroom
Bedroom
4pc Bathroom
Basement
Other

Land

Lot Features
Frontage
75 ft
Waterfront Features
Waterfront
Waterfront
Waterfront Name
Last Mountain Lake
Are you interested in touring this listing?
Request a showing

Similar Listings

Carmen Bechard