We use cookies and other technologies for functionality, security, and to provide you with a personalized experience on our online services. By continuing to use our online services, you agree to our Privacy Policy and Terms of Use. For information on how to adjust your privacy settings, visit our Cookie Policy.
Dismiss
Home AB Grande Prairie Division No. 19 VLA Montrose
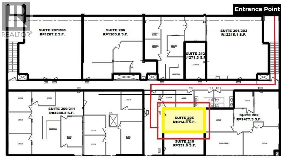
205, 11402 100 Street
Directions Print
205, 11402 100 Street $556/Monthly/square feet
$556/Monthly/square feet
Hide
Favourite

205, 11402 100 Street
Grande Prairie, Alberta T8V2N5

MLS® Number: A2225967

Listing Description

Discover an ideal office space for lease, perfectly suited for professionals seeking a private and quiet work environment. This 315 sq. ft. upstairs office space offers excellent exposure while maintaining a high level of privacy. The base rent of this unit is priced to be $14.00 per square foot with an additional cost of $7.16 making the total monthly rent come to an affordable $555.45. Ready for immediate possession, this space is perfect for solo entrepreneurs or small business owners looking to move in without delay. Don’t miss out—Book a viewing today! (30629711)

Property Summary

Property Type
Office
Building Type
Offices
Community Name
VLA Montrose
Subdivision Name
VLA Montrose
Land Size
Unknown
Built in
1980
Time on REALTOR.ca
201 days

Measurements

Square Footage
315 sqft
Total Finished Area
315 sqft
Exterior Building Size
315 sqft
Data provided by: Pillar 9™
Are you interested in touring this listing?
Request a showing

Bobbi Dawson