We use cookies and other technologies for functionality, security, and to provide you with a personalized experience on our online services. By continuing to use our online services, you agree to our Privacy Policy and Terms of Use. For information on how to adjust your privacy settings, visit our Cookie Policy.
Dismiss
Home SK Division No. 15 Lakeland No. 521
131 Jean Bay
Directions Print
131 Jean Bay $599,900
$599,900
Hide
Favourite

131 Jean Bay
Lakeland Rm No. 521, Saskatchewan S0J0N0

MLS® Number: SK007643

Listing Description

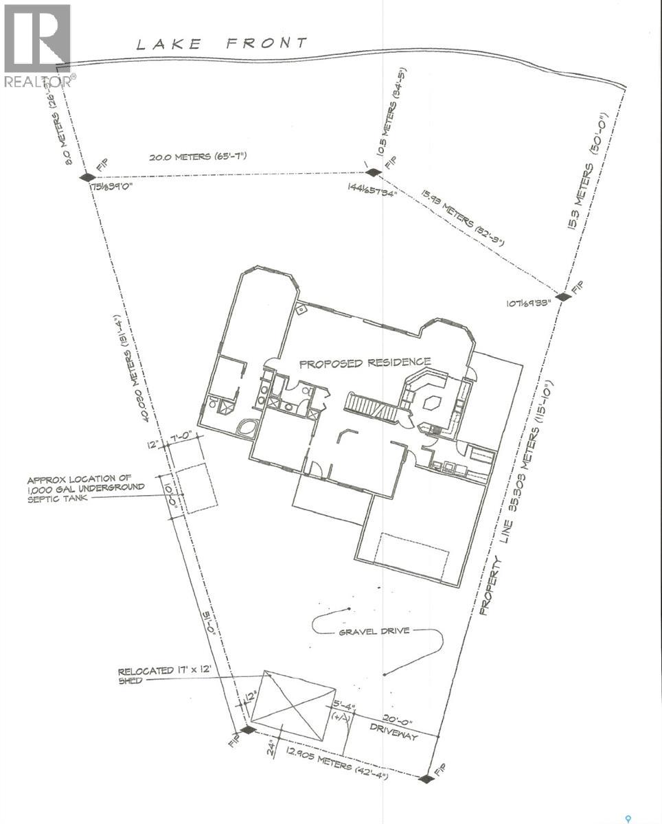
Opportunities like this exclusive lake front lot located at 131 Jean Bay, Emma Lake are extremely rare. This property is situated on the sought after east bank of the Emma Lake and is nestled into a quiet bay so there is limited drive by traffic on the backside and lakeside. Many area residents had once thought this lot was municipal reserve land as they could not believe that no cottage had ever occupied this beautiful site with all the mature trees and natural vegetation. With almost 14.000 sqft of land and 133' feet of pristine lake frontage, the opportunities & design options are endless if you are looking to build your dream cabin (there are a few renderings of what the owners vision was for a build at one time). Note: the lot dimensions are 133' x 165' x 42' x 157'. You will have to take the trip up to Emma Lake and walk this lot with your Realtor to truly appreciate the lake vistas. This bay is extremely quiet and is sheltered nicely from any of the harsh winds that roll off the lake on those windier days, so calm days are typically of the norm here. The topography of the land is pretty flat with a gentle slope rolling down towards the waters edge. There is no public reserve, which means the ownership of the lot goes pretty much right to the waters edge. As this lot has been in the family for over 30 years, the land has been undisturbed which has allowed for the growth of beautiful trees & natural vegetation. Under a lot of the vegetation was sandy beach area, but can be revitalized to bring some of its true beauty back to life so this piece of paradise can be enjoyed by you and your family. This land was professionally surveyed with majority of the lot being lined in chain link fencing that was installed a few years ago by Nordic fencing which is perfect if you have young children, grandkids, or are a dog lover. There is Power, Gas,& Telephone services just outside the property line. Life is Good, so make it great and embrace your future by starting here. (28394640)

Property Summary

Property Type
Vacant Land
Building Type
Unknown
Neighbourhood Name
Emma Lake
Subdivision Name
Emma Lake (Lakeland Rm No. 521)
Title
Freehold
Land Size
13939 sqft
Annual Property Taxes
$2,425
Time on REALTOR.ca
198 days

Building

Building Features
Features
Treed, Irregular lot size, Recreational

Land

Lot Features
Fencing
Fence, Partially fenced
Waterfront Features
Waterfront
Waterfront
Waterfront Name
Emma Lake
Are you interested in touring this listing?
Request a showing

Similar Listings

Reagan Baliski